




$850,000
120 Sweet Grass Lane
About This Property
This Property Has Been Sold
This property sold 3 years ago and is no longer available for purchase.
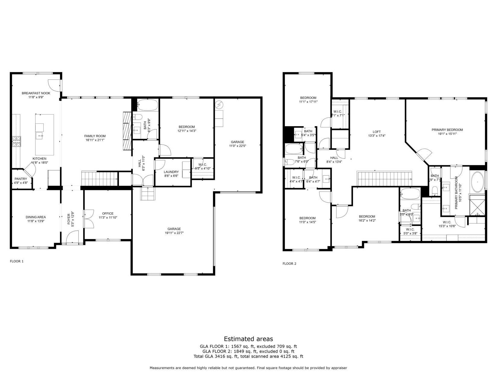
View active listings in Hollybrook →This cul-de-sac home, on large lot, is loaded with custom features and includes a pool! Hardwood floors throughout the first floor, except the main floor bedroom. Wainscoting in the dining room as well as wallpaper/new light fixture.
Crown molding throughout the first floor. Rod iron balusters on the stair railing. Office with French doors.
Custom built drop zone at garage. Laundry room has tile floors and custom-built cabinets. First floor bathroom offers tile floors, cream-colored vanity and shower.
CAR MLS # 116139043
Quick Facts
Time on Site
3 years ago
Property Type
Residential
Year Built
2019
Price/Sq.Ft.
$246
Property Details
Schools
Features & Amenities
Location & Map
Map View
Loading map...
Additional Information
Utilities
- Septic Installed
- Underground Power Lines
- Well
- Other - See Remarks
Lot And Land
- Fenced
- Gazebo
- Outbuilding
Agent Contacts
- Palmetto Park Realty Team Fort Mill: 803.548.6123
Interior Details
- Zoned
- Carpet
- Laminate
- Tile
- Main Level
- Attic Stairs Pulldown
- Drop Zone
- Kitchen Island
- Open Floorplan
- Pantry
- Walk-In Closet(s)
- Walk-In Pantry
- Security System
- Living Room
Exterior Features
- Fire Pit
- Hot Tub
- In Ground Pool
- Fiber Cement
- Stone
Parking And Garage
- Driveway
- Garage Door Opener
- Garage Faces Side
- Keypad Entry
- Tandem
Financial Information
Dwelling And Structure
- Transitional
- Two or More Access Exits
Basement And Foundation
- Crawl Space
Zoning And Restrictions
Square Footage And Levels
- Two
Additional C A R Information
IDX information is provided exclusively for consumers' personal, non-commercial use only; it may not be used for any purpose other than to identify prospective properties consumers may be interested in purchasing. Data is deemed reliable but is not guaranteed accurate by the MLS GRID. Use of this site may be subject to an end user license agreement. Based on information submitted to the MLS GRID as of Fri, Jul 28, 2023. All data is obtained from various sources and may not have been verified by broker or MLS GRID. Supplied Open House Information is subject to change without notice. All information should be independently reviewed and verified for accuracy. Properties may or may not be listed by the office/agent presenting the information. Some IDX listings have been excluded from this website. Any use by you of search facilities of data on the site, other than by a consumer looking to purchase real estate, is prohibited. DMCA Notice: Palmetto Park Realty respects the intellectual property rights of others. If you believe that your work has been copied in a way that constitutes copyright infringement, please provide our designated agent with written notice containing the following information: (1) identification of the copyrighted work claimed to have been infringed; (2) identification of the material that is claimed to be infringing; (3) your contact information; (4) a statement that you have a good faith belief that use of the material is not authorized; and (5) a statement that the information in the notification is accurate and you are authorized to act on behalf of the copyright owner. Please send DMCA notices to: [email protected]
You Might Also Like...
Interested in selling in Hollybrook?


