


$299,990
972 Diane Lane
Moore, SC 29369
About This Property
This Property Has Been Sold
This property sold 3 months ago and is no longer available for purchase.
View active listings in Pleasant Falls →*September to Remember! Fall into Savings with Move in GE Appliance Package included in your new home!* Package includes Refrigerator, Washer/Dryer and Blinds!
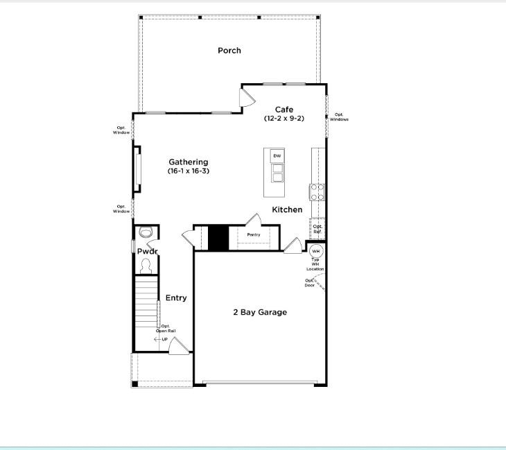
Welcome to Pleasant Falls! The only new homes in Spartanburg off of the Tyger River with James Hardie Siding. This Craftsman style Beramont home features almost 2000 square feet of living space and is a new design for DRB in Greenville.
Entering from your covered front porch, you come into your spacious entry that leads you to the open kitchen and living area, a perfect space for entertaining. Features of the kitchen include a large island for additional prep space and seating, beautiful light grey cabinetry, Quartz countertops, tiled backsplash, under cabinet lighting, and stainless steel appliances including a gas range/oven. The high ceilings and tall windows in the living room give it a open feeling and there is an electric fireplace for those cozy nights.
SPN MLS # 327332
Quick Facts
Time on Site
7 months ago
Property Type
Residential
Year Built
2025
Lot Size
10,890 sqft
Price/Sq.Ft.
$154
Property Details
Schools
Features & Amenities
Location & Map
Map View
Loading map...
Additional Information
Basement
Security
- Smoke Detector(s)
Community
- Street Lights
- Lawn
Lot & Land
- Level
Primary Suite
- Bath - Full
- Double Vanity
- Owner on 2nd level
- Shower Only
- Walk-in Closet
Interior Details
- Carpet
- Luxury Vinyl
- Range
- Dishwasher
- Disposal
- Gas Oven
- Self Cleaning Oven
- Microwave
- Gas Range
- Tilt-Out
- 2nd Floor
- Electric Dryer Hookup
- Cable Available
- Ceilings-Some 9 Ft +
- Attic Stairs Pulldown
- Fireplace
- Walk-In Closet(s)
- Ceiling - Smooth
- Solid Surface Counters
- Open Floorplan
- Pantry
- Smart Home
New Construction
Parking & Garage
- Garage Door Opener
- 2 Car Attached
Exterior Features
- Architectural
- Balcony
- Slab
- Hardboard Siding
- Porch
- Covered Patio
H O A & Association
- Lawn Service
- Street Lights
Property Overview
- Two
- Craftsman
Utilities & Systems
- Public Sewer
- Central Air
- Forced Air
- Public
Listing Agent Information
You Might Also Like...
Interested in selling in Pleasant Falls?


