


$299,990
972 Diane Lane
Moore, SC 29369
About This Property
This Property Has Been Sold
This property sold 3 months ago and is no longer available for purchase.
View active listings in Pleasant Falls →September to Remember! Fall into Savings with Move in GE Appliance Package included in your new home! Package includes Refrigerator, Washer/Dryer and Blinds!
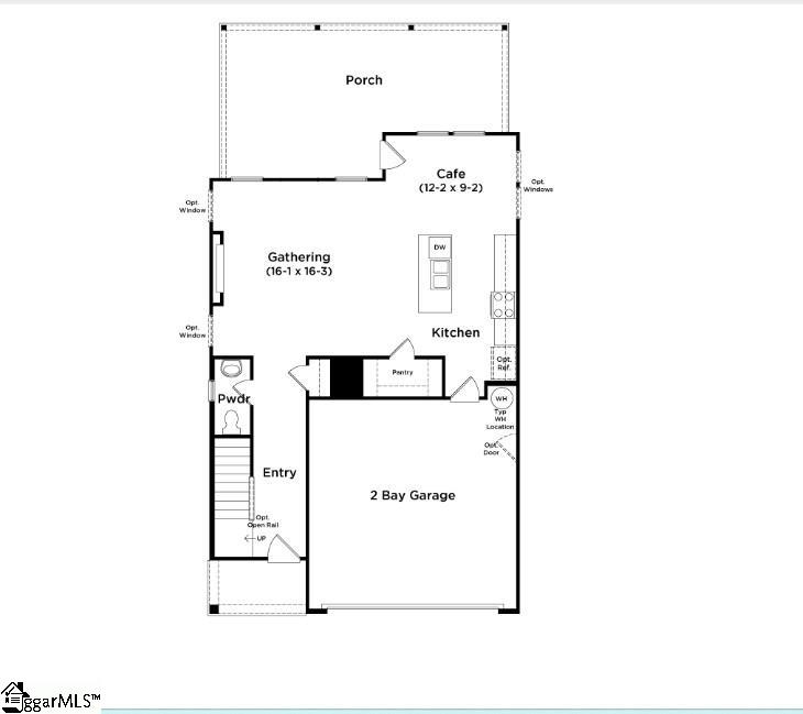
Welcome to Pleasant Falls! The only new homes in Spartanburg off of the Tyger River with James Hardie Siding. This Craftsman style Beramont home features almost 2000 square feet of living space and is a new design for DRB in Greenville.
Entering from your covered front porch, you come into your spacious entry that leads you to the open kitchen and living area, a perfect space for entertaining. Features of the kitchen include a large island for additional prep space and seating, beautiful light grey cabinetry, Quartz countertops, tiled backsplash, under cabinet lighting, and stainless steel appliances including a gas range/oven. The high ceilings and tall windows in the living room give it a open feeling and there is an electric fireplace for those cozy nights.
GVL MLS # 1565487
Quick Facts
Time on Site
7 months ago
Property Type
Residential
Lot Size
10,890 sqft
Price/Sq.Ft.
$154
Property Details
Schools
Features & Amenities
Location & Map
Map View
Loading map...
Additional Information
Agent Contacts
- Greenville: (864) 757-4000
- Simpsonville: (864) 881-2800
Community & H O A
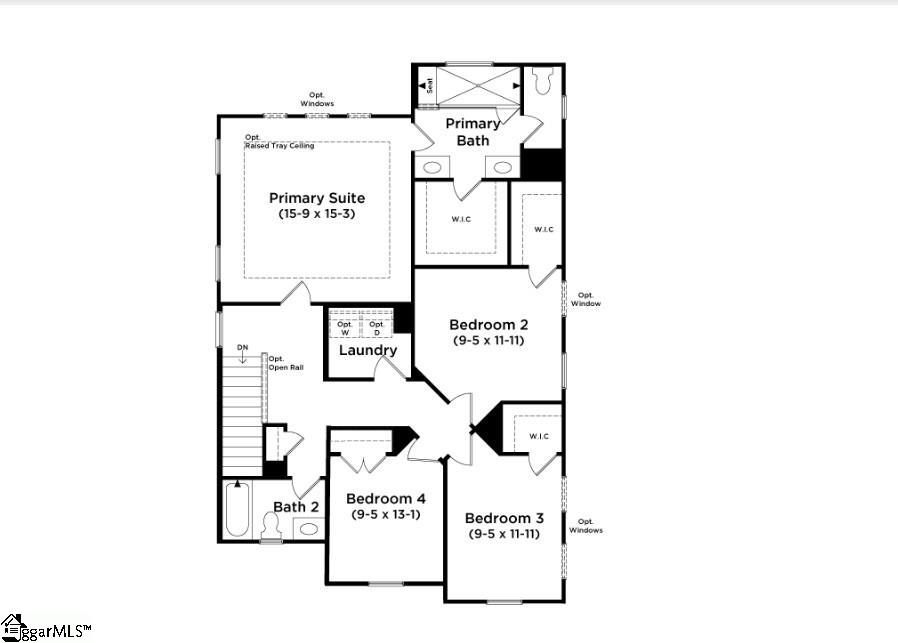
Room Dimensions
Property Details
Exterior Features
- Balcony
- Porch-Front
- Tilt Out Windows
- Porch-Covered Back
Interior Features
- 2nd Floor
- Dryer – Electric Hookup
- Carpet
- Luxury Vinyl Tile/Plank
- Dishwasher
- Disposal
- Stand Alone Range-Gas
- Oven-Self Cleaning
- Oven-Gas
- Microwave-Built In
- Attic Stairs Disappearing
- Cable Available
- Ceiling 9ft+
- Ceiling Smooth
- Open Floor Plan
- Smoke Detector
- Walk In Closet
- Countertops – Quartz
- Pantry – Closet
- Smart Systems Pre-Wiring
Systems & Utilities
Showing & Documentation
- Pre-approve/Proof of Fund
- Specified Sales Contract
The information is being provided by Greater Greenville MLS. Information deemed reliable but not guaranteed. Information is provided for consumers' personal, non-commercial use, and may not be used for any purpose other than the identification of potential properties for purchase. Copyright 2025 Greater Greenville MLS. All Rights Reserved.
You Might Also Like...
Interested in selling in Pleasant Falls?

