




$289,900
New Home in Collier Ridge: Byrnes Schools, Pool, & Easy I-26 Access
About This Property
This Property Has Been Sold
This property sold 7 months ago and is no longer available for purchase.
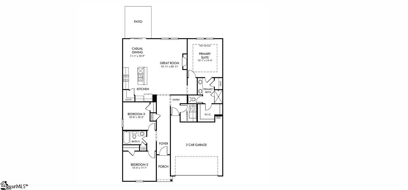
View active listings in Collier Ridge →Brand new, energy-efficient home available by Apr 2025! Prepare dinner in the open-concept kitchen while staying connected with guests in the great room. White cabinets with white quartz countertops, Bishop Ridge Wild Dune EVP flooring and carpet in our Divine (2) Package.
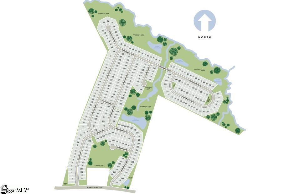
Located in the Byrnes School District, Collier Ridge is a master-planned community centered around smart choices and better living with amenities like a pool and cabana, dog park, and more, creating a community around you. Simplify your commute with easy access to I-26 and I-85. Groundbreaking energy efficiency is built seamlessly into every home in this community so you can spend less on utility bills and more on the things that matter most.
* Each of our homes is built with innovative, energy-efficient features designed to help you enjoy more savings, better health, real comfort and peace of mind.
GVL MLS # 1553611
Quick Facts
Time on Site
11 months ago
Property Type
Residential
Year Built
2025
Lot Size
6,534 sqft
Price/Sq.Ft.
$188
Property Details
Schools
Features & Amenities
Location & Map
Map View
Loading map...
Additional Information
Agent Contacts
- Greenville: (864) 757-4000
- Simpsonville: (864) 881-2800
Community & H O A
Room Dimensions
Property Details
- Contemporary
- Craftsman
- Level
- Some Trees
- Underground Utilities
Exterior Features
- Brick Veneer-Partial
- Stone
- Vinyl Siding
- Patio
- Porch-Front
- Tilt Out Windows
Interior Features
- 1st Floor
- Walk-in
- Dryer – Electric Hookup
- Carpet
- Ceramic Tile
- Laminate Flooring
- Cook Top-Gas
- Dishwasher
- Disposal
- Oven-Self Cleaning
- Oven-Gas
- Comb Liv & Din Room
- Laundry
- Attic Stairs Disappearing
- Cable Available
- Ceiling 9ft+
- Ceiling Smooth
- Countertops Granite
- Open Floor Plan
- Countertops – Quartz
- Pantry – Closet
- Pantry – Walk In
- Radon System
Systems & Utilities
Showing & Documentation
- Vacant
- Other/See Remarks
- Copy Earnest Money Check
- Pre-approve/Proof of Fund
The information is being provided by Greater Greenville MLS. Information deemed reliable but not guaranteed. Information is provided for consumers' personal, non-commercial use, and may not be used for any purpose other than the identification of potential properties for purchase. Copyright 2025 Greater Greenville MLS. All Rights Reserved.
You Might Also Like...
Interested in selling in Collier Ridge?

