




$40,000
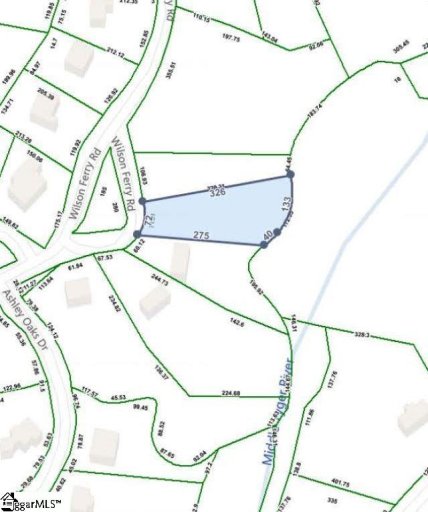
729 Wilson Ferry Road
Moore, SC 29369
About This Property
This Property Has Been Sold
This property sold 3 years ago and is no longer available for purchase.
View active listings in Wilson Ferry →Awesome +/- .77 acres buildable lot on the Tyger River in the etablished Wilson Ferry Subdivision. Zoned for District 5 Schools.
House must be a minimum of 1800 sq ft and must have a two car garage. Don't miss your chance to build your dream home overlooking the Tyger River!
GVL MLS # 1508089
Quick Facts
Time on Site
3 years ago
Property Type
Land
Lot Size
33,541 sqft
HOA Fees
$350/yr
Property Details
Schools
Features & Amenities
Location & Map
Map View
Loading map...
Additional Information
Community
- Clubhouse
- Common Areas
- Street Lights
- Pool
- Playground
- Tennis Court(s)
Lot & Land
- 1/2 - 1 Acre
- Curbs
- Wooded
Tax Information
H O A & Association
Property Overview
Utilities & Systems
- Septic Tank
- Cable Available
- Phone Available
- Public
Listing Agent Information
The information is being provided by Greater Greenville MLS. Information deemed reliable but not guaranteed. Information is provided for consumers' personal, non-commercial use, and may not be used for any purpose other than the identification of potential properties for purchase. Copyright 2025 Greater Greenville MLS. All Rights Reserved.
You Might Also Like...
Interested in selling in Wilson Ferry?


