


$209,000
516 Furman Creek Court
Moore, SC 29369
About This Property
This Property Has Been Sold
This property sold 5 years ago and is no longer available for purchase.
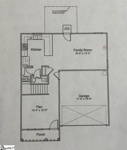
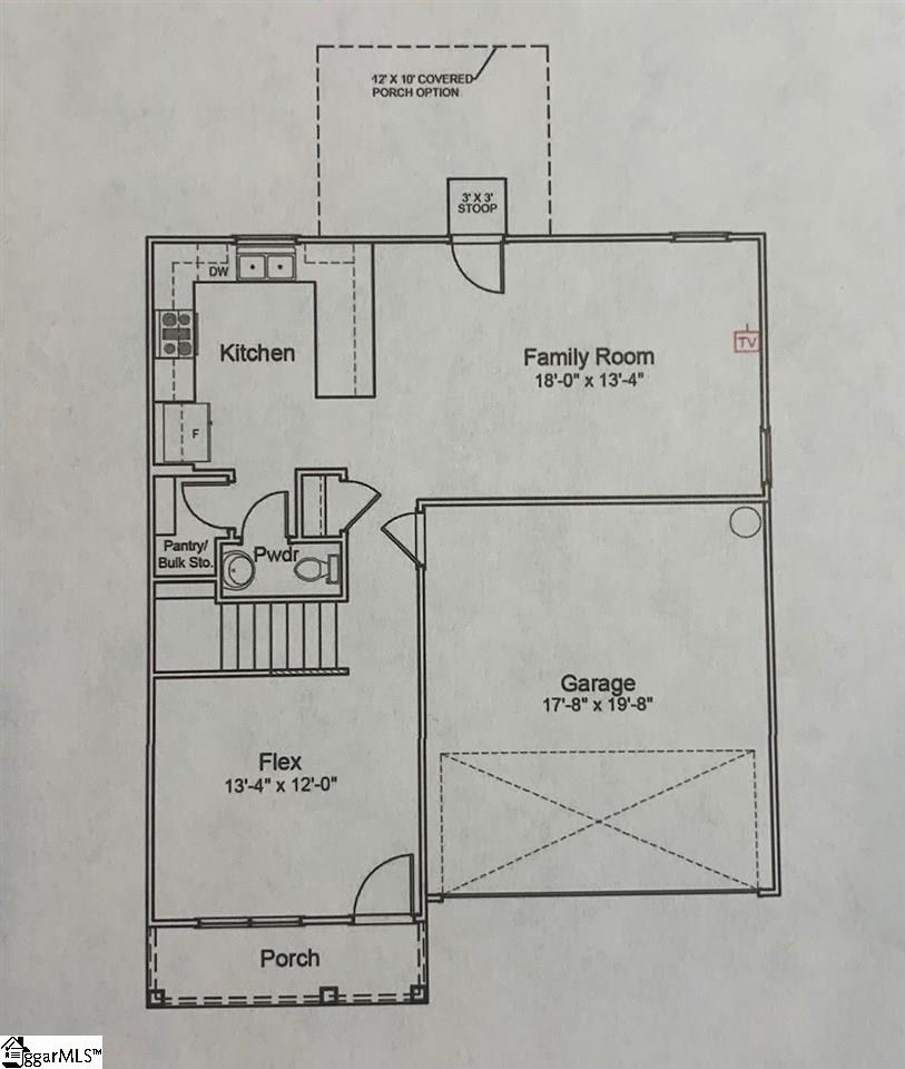
View active listings in Tyger Pointe →The Guilford C floor plan offers four bedrooms, two and one-half baths, and a two-car garage. This home enters into the flex room, just past it the kitchen leads to a walk-in pantry and the family room. In the kitchen you will find stainless steel appliances and a breakfast bar that over looks the family room.
Upstairs, a laundry room and a full bathroom are conveniently located near the three spare bedrooms. The primary bedroom features vaulted ceilings, a garden tub with separate shower, dual sinks, and a walk-in closet.
GVL MLS # 1435946
Quick Facts
Time on Site
5 years ago
Property Type
Residential
Year Built
2021
Lot Size
13,068 sqft
Property Details
Schools
Features & Amenities
Features:
- Ceiling Fan(s)
- Vaulted Ceiling(s)
- Ceiling Smooth
- Countertops-Solid Surface
Location & Map
Map View
Loading map...
Additional Information
Lot & Land
- 1/2 Acre or Less
Tax Information
Interior Details
- Carpet
- Vinyl
- Cooktop
- Dishwasher
- Disposal
- Electric Oven
- Microwave-Convection
- Electric Water Heater
- 2nd Floor
- Laundry Room
- Ceiling Fan(s)
- Vaulted Ceiling(s)
- Ceiling Smooth
- Countertops-Solid Surface
Parking & Garage
- Attached
- Paved
Exterior Features
- Composition
- Attached
- Paved
- Slab
- Vinyl Siding
Property Overview
- Two
- Craftsman
Utilities & Systems
- Public Sewer
- Central Air
- Forced Air
- Public
Listing Agent Information
The information is being provided by Greater Greenville MLS. Information deemed reliable but not guaranteed. Information is provided for consumers' personal, non-commercial use, and may not be used for any purpose other than the identification of potential properties for purchase. Copyright 2025 Greater Greenville MLS. All Rights Reserved.
You Might Also Like...
Interested in selling in Tyger Pointe?


