


$260,000
377 Prosperity Lane
Moore, SC 29369
About This Property
This Property Has Been Sold
This property sold 3 months ago and is no longer available for purchase.
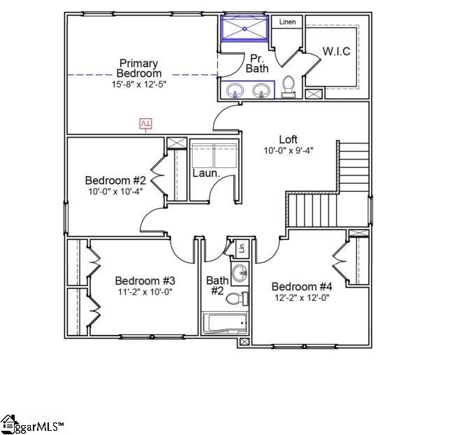
View active listings in Braxton Place →Welcome to Mungo Homes Guilford floorplan. This is a well-designed two-story home featuring four bedrooms and two-and-a-half bathrooms. As you enter, a welcoming flex room waits that is perfect for an office or dining room.
It leads you into a spacious great room, great for family gatherings, entertaining and everyday living. The open-concept kitchen includes a large island, with granite countertops, Shaker-style cabinets, and a walk-in pantry for plenty of storage. A door off the great room provides access to the back patio, ideal for outdoor activities.
Durable luxury vinyl plank flooring runs throughout the first floor, combining style and practicality. Upstairs, a centrally located loft which is a perfect for a home office, playroom, movie room or reading nook. Three secondary bedrooms share a full bathroom, while the primary suite features a vaulted ceiling, a private bathroom with double sinks, a linen closet, and an oversized walk-in closet.
GVL MLS # 1565825
Quick Facts
Time on Site
7 months ago
Property Type
Residential
Year Built
2025
Lot Size
4,791 sqft
Price/Sq.Ft.
$145
HOA Fees
$300/yr
Property Details
Schools
Features & Amenities
Features:
- Ceiling Fan(s)
- Ceiling Smooth
- Granite Counters
- Open Floorplan
- Pantry
Location & Map
Map View
Loading map...
Additional Information
Community
- Common Areas
- Street Lights
Lot & Land
- 1/2 Acre or Less
Tax Information
Interior Details
- Carpet
- Luxury Vinyl
- Dishwasher
- Disposal
- Gas Oven
- Microwave
- Gas Water Heater
- Tankless Water Heater
- 2nd Floor
- Walk-in
- Electric Dryer Hookup
- Washer Hookup
- Laundry Room
- Ceiling Fan(s)
- Ceiling Smooth
- Granite Counters
- Open Floorplan
- Pantry
Parking & Garage
- Attached
- Concrete
- Garage Door Opener
- Key Pad Entry
- Driveway
Exterior Features
- Composition
- Attached
- Concrete
- Garage Door Opener
- Key Pad Entry
- Driveway
- Slab
- Patio
- Front Porch
- Vinyl Siding
H O A & Association
Property Overview
- Two
- Craftsman
Utilities & Systems
- Public Sewer
- Central Air
- Forced Air
- Public
Listing Agent Information
The information is being provided by Greater Greenville MLS. Information deemed reliable but not guaranteed. Information is provided for consumers' personal, non-commercial use, and may not be used for any purpose other than the identification of potential properties for purchase. Copyright 2025 Greater Greenville MLS. All Rights Reserved.
You Might Also Like...
Interested in selling in Braxton Place?

