


$274,000
365 Prosperity Lane
Moore, SC 29369
About This Property
This Property Has Been Sold
This property sold 3 months ago and is no longer available for purchase.
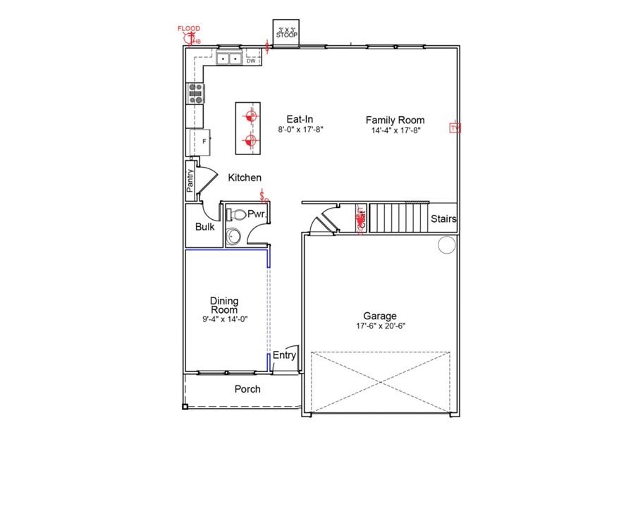
View active listings in Braxton Place →This two-story Meriweather home has 2.5 bathrooms and 3 bedrooms. The heart of this home is the kitchen, equipped with upgraded cabinets, stainless steel appliances, gas cooking, granite countertops, and an island that provides ample space for meal prep and gathering.
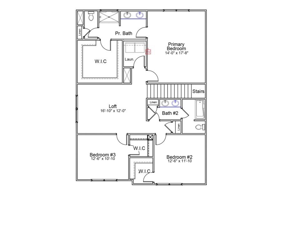
The adjacent eating area flows seamlessly into the family room, creating a spacious and inviting layout perfect for both everyday living and entertaining. The first floor has all upgraded LVP flooring and carpet upstairs. Upstairs you'll find the Primary bedroom is large and connects to a generous walk-in closet, 5-foot shower, two sinks in the large vanity.
Two other spacious bedrooms, a full bathroom with two sinks and the laundry room is located on this floor as well. Don’t miss this opportunity to own a beautiful home in a prime location! Call us today to schedule an appointment or come visit the model home today I look forward to working with you!
SPN MLS # 326679
Quick Facts
Time on Site
8 months ago
Property Type
Residential
Year Built
2025
Lot Size
4,791 sqft
Price/Sq.Ft.
$125
Property Details
Schools
Features & Amenities
Features:
- Cable Available
- Walk-In Closet(s)
- Ceiling - Smooth
- Solid Surface Counters
- Open Floorplan
- Walk-In Pantry
Location & Map
Map View
Loading map...
Additional Information
Basement
Lot & Land
- Level
Primary Suite
- Bath - Full
- Owner on 2nd level
- Shower Only
Interior Details
- Carpet
- Luxury Vinyl
- Dishwasher
- Disposal
- Microwave
- 2nd Floor
- Cable Available
- Walk-In Closet(s)
- Ceiling - Smooth
- Solid Surface Counters
- Open Floorplan
- Walk-In Pantry
New Construction
Parking & Garage
- Garage Door Opener
- 2 Car Attached
- Keypad Entry
Exterior Features
- Architectural
- Slab
- Vinyl Siding
- Patio
- Porch
H O A & Association
Property Overview
- Two
- Craftsman
Utilities & Systems
- Central Air
- Baseboard
- Forced Air
- Electricity
- Gas - Natural
- Public
Listing Agent Information
You Might Also Like...
Interested in selling in Braxton Place?


