

$223,000
364 Prosperity Lane
Moore, SC 29369
About This Property
This Property Has Been Sold
This property sold 5 months ago and is no longer available for purchase.
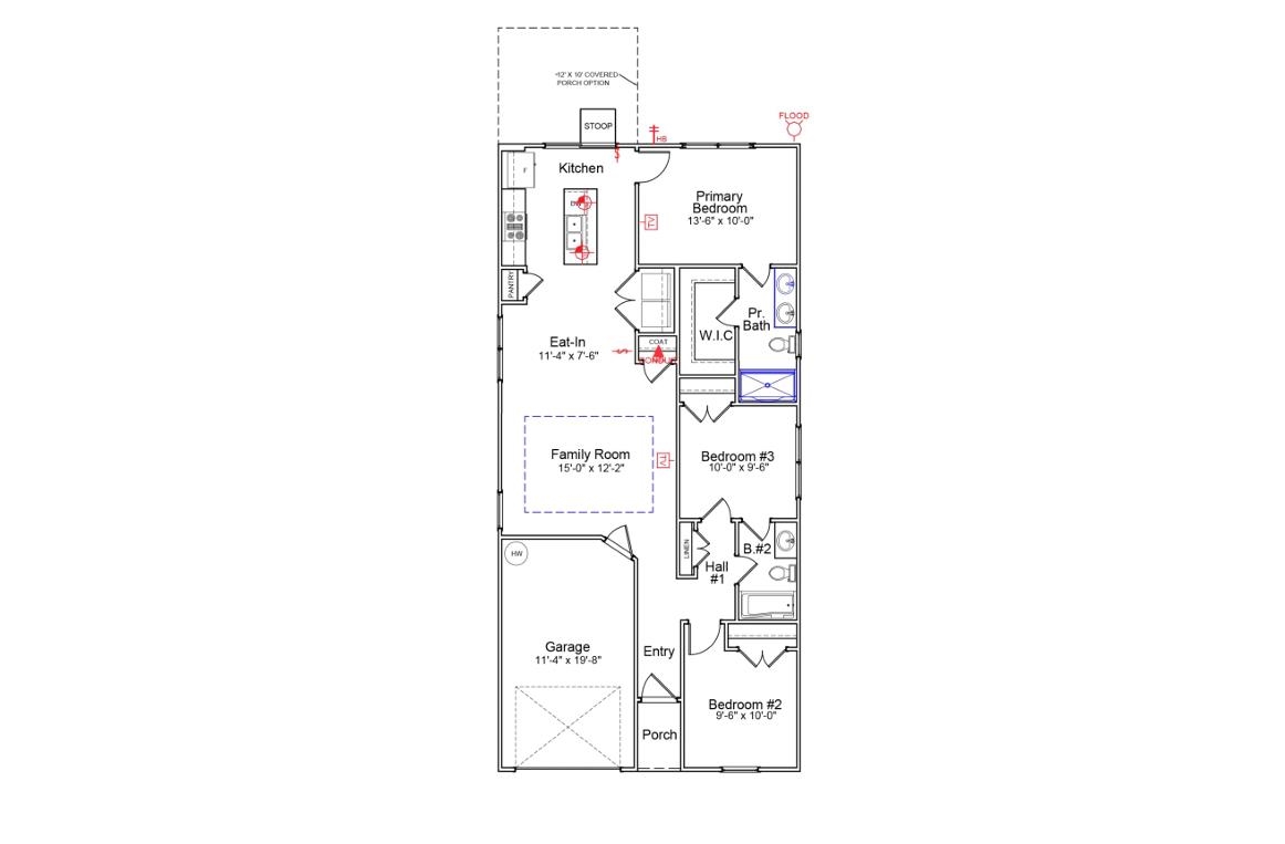
View active listings in Braxton Place →The Baker is a thoughtfully designed one-story home featuring three bedrooms and two bathrooms. Upon entering, you are greeted by two bedrooms, which share a conveniently located bathroom. The spacious family room, with a boxed ceiling, opens to the eat-in area and kitchen, creating a seamless flow between the common spaces.
The kitchen features Frigidaire Gas range and stainless steel appliances. The primary suite, situated off the kitchen, offers privacy and includes a large walk-in closet and an en-suite bathroom. Enjoy being just a stone’s throw from Linville Hills Park, surrounded by mature trees.
Located minutes from Downtown Spartanburg, this community offers the perfect balance of peaceful surroundings and easy access to shopping, schools, hospitals, and major highways, including I-26 and I-85. Residents of Braxton Place are also zoned for the highly sought-after Dorman High School and are just 1.2 miles from R.
SPN MLS # 324339
Quick Facts
Time on Site
10 months ago
Property Type
Residential
Year Built
2025
Lot Size
4,791 sqft
Price/Sq.Ft.
$194
Property Details
Schools
Features & Amenities
Features:
- Ceiling Fan(s)
- Attic Stairs Pulldown
- Ceiling - Smooth
- Open Floorplan
- Pantry
Location & Map
Map View
Loading map...
Additional Information
Basement
Security
- Smoke Detector(s)
Lot & Land
- Level
Primary Suite
- Bath - Full
- Double Vanity
- Owner on Main Level
- Walk-in Closet
Interior Details
- Carpet
- Luxury Vinyl
- Dishwasher
- Disposal
- Microwave
- Gas Oven
- Tilt-Out
- Electric Dryer Hookup
- Washer Hookup
- Ceiling Fan(s)
- Attic Stairs Pulldown
- Ceiling - Smooth
- Open Floorplan
- Pantry
New Construction
Parking & Garage
- Attached
- Garage Door Opener
- Driveway
- Garage
Exterior Features
- Architectural
- Attic
- Garage
- Slab
- Vinyl Siding
- Patio
- Porch
H O A & Association
- Common Area
- Street Lights
Property Overview
- One
- Craftsman
Utilities & Systems
- Public Sewer
- Central Air
- Forced Air
- Gas
- Tankless
- Public
Listing Agent Information
You Might Also Like...
Interested in selling in Braxton Place?


