


$274,000
New Construction 3 Bed Home with Upgrades in Moore SC
Moore, SC 29369
About This Property
This Property Has Been Sold
This property sold 4 months ago and is no longer available for purchase.
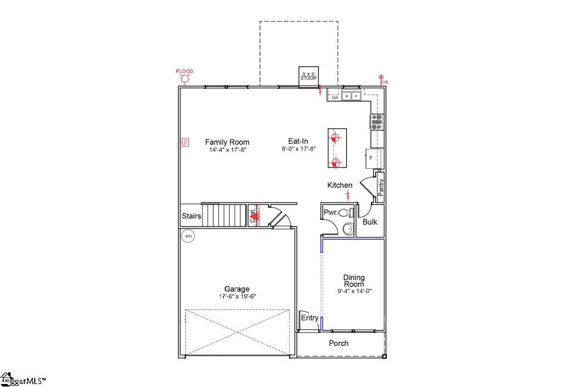
View active listings in Braxton Place →This two-story Meriweather floorplan has 2.5 bathrooms and 3 bedrooms. The kitchen features upgraded cabinets, stainless steel appliances with gas cooking, Granite counter tops an island and eating area that leads into the family room.
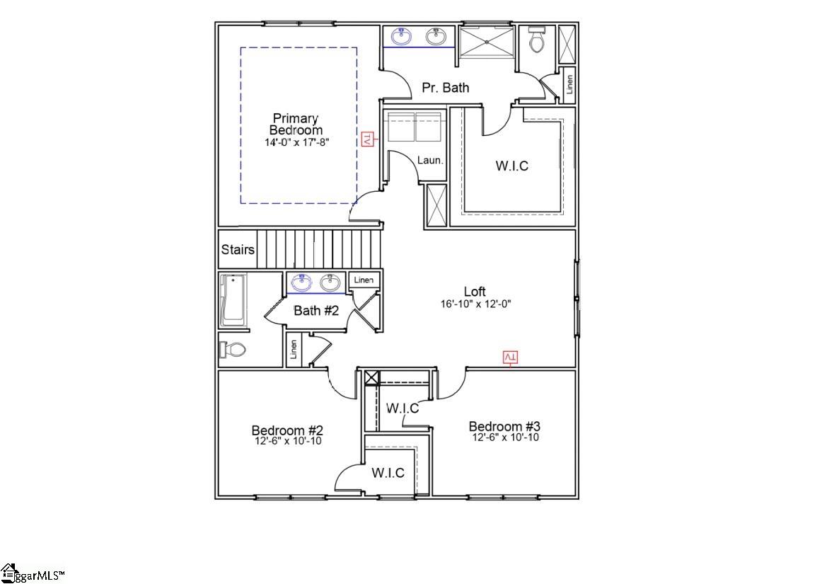
The first floor has all upgraded LVP flooring and carpet upstairs. Upstairs you'll find the large Primary bedroom that connects to a oversized walk-in closet, 5-foot shower, two sinks in the large vanity and linen closet. Two other spacious bedrooms, a full bathroom with two sinks and the laundry room is located on this floor as well.
I look forward to working with you! Show and Sell today.
GVL MLS # 1557034
Quick Facts
Time on Site
10 months ago
Property Type
Residential
Year Built
2025
Lot Size
4,791 sqft
Price/Sq.Ft.
$123
HOA Fees
$300/yr
Property Details
Schools
Features & Amenities
Features:
- Ceiling Smooth
- Granite Counters
- Open Floorplan
- Walk-In Closet(s)
- Countertops – Quartz
- Pantry
Location & Map
Map View
Loading map...
Additional Information
Lot & Land
- 1/2 Acre or Less
Tax Information
Interior Details
- Carpet
- Luxury Vinyl
- Dishwasher
- Disposal
- Microwave
- Gas Water Heater
- Tankless Water Heater
- 2nd Floor
- Ceiling Smooth
- Granite Counters
- Open Floorplan
- Walk-In Closet(s)
- Countertops – Quartz
- Pantry
Parking & Garage
- Attached
- Concrete
- Garage Door Opener
- Key Pad Entry
Exterior Features
- Composition
- Attached
- Concrete
- Garage Door Opener
- Key Pad Entry
- Slab
- Patio
- Front Porch
- Vinyl Siding
H O A & Association
- Common Area Ins.
- By-Laws
- Restrictive Covenants
Property Overview
- Two
- Craftsman
Utilities & Systems
- Public Sewer
- Central Air
- Electric
- Forced Air
- Natural Gas
- Cable Available
- Public
Listing Agent Information
The information is being provided by Greater Greenville MLS. Information deemed reliable but not guaranteed. Information is provided for consumers' personal, non-commercial use, and may not be used for any purpose other than the identification of potential properties for purchase. Copyright 2025 Greater Greenville MLS. All Rights Reserved.
You Might Also Like...
Interested in selling in Braxton Place?


