


$264,000
348 Prosperity
Moore, SC 29369
About This Property
This Property Has Been Sold
This property sold 2 months ago and is no longer available for purchase.
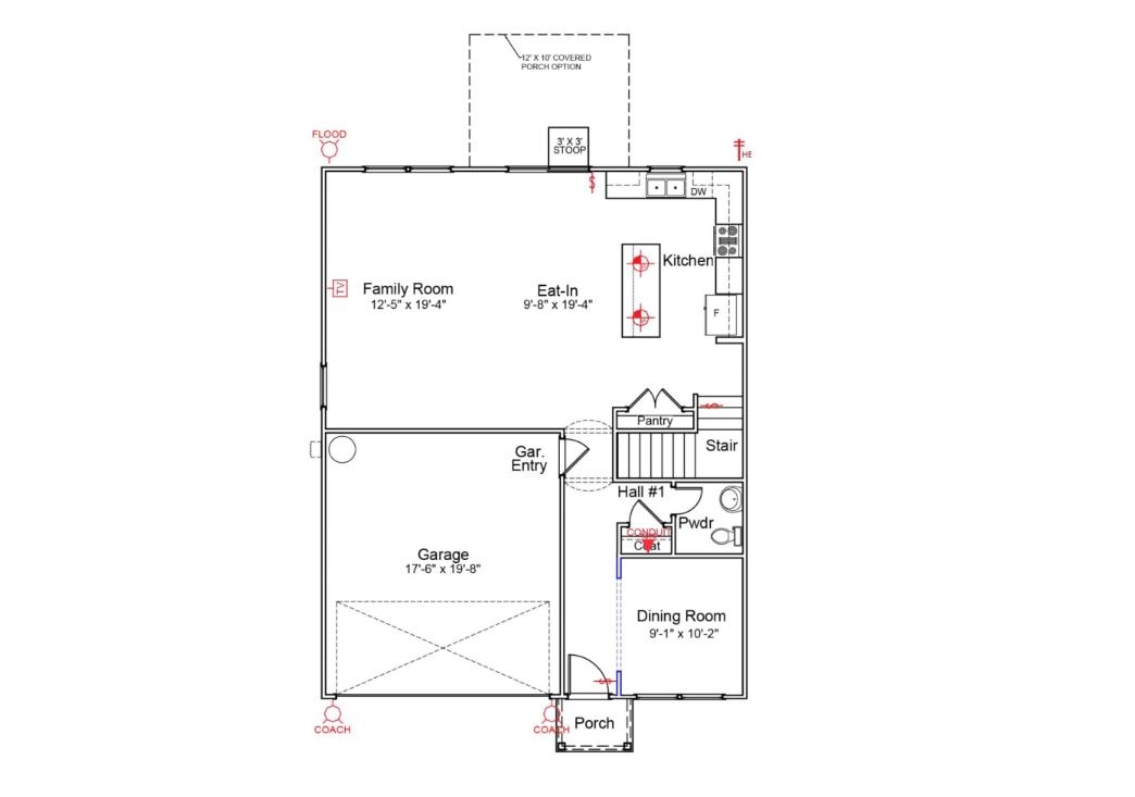
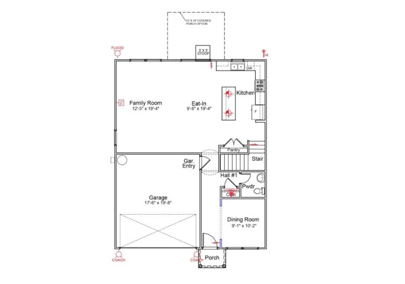
View active listings in Braxton Place →This Lancaster floorplan is a thoughtfully designed two-story home that includes 4 bedrooms and 2.5 bathrooms. Just of the entry of the home your dining room awaits and is perfect for those family meals and gatherings.
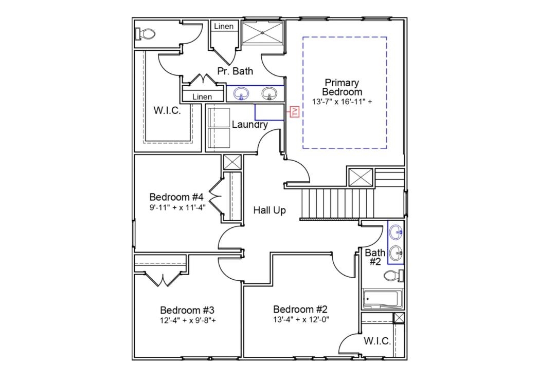
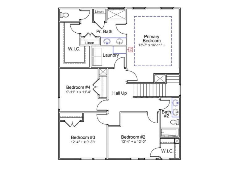
As you make your way through the home you enter the stylish kitchen, which boasts Shaker-style cabinets, granite countertops, gas range and a tile backsplash. The open-concept design connects the kitchen to the spacious great room, making it perfect for entertaining. Upstairs, the primary bedroom leads to a primary bathroom with two linen closets, access to a oversized walk-in closet.
The laundry room is conveniently located just outside the primary bedroom, close to the three spare bedrooms and their full bathroom. Nestled just a stone’s throw from Linville Hills Park and surrounded by mature trees, this home offers the perfect blend of tranquility and convenience. Located just minutes from Downtown Spartanburg, Braxton Place provides easy access to shopping, schools, hospitals, and major highways, including I-26 and I-85.
SPN MLS # 322662
Quick Facts
Time on Site
11 months ago
Property Type
Residential
Year Built
2025
Lot Size
4,791 sqft
Price/Sq.Ft.
$123
Property Details
Schools
Features & Amenities
Features:
- Cable Available
- Attic Stairs Pulldown
- Walk-In Closet(s)
- Ceiling - Smooth
- Solid Surface Counters
- Open Floorplan
- Pantry
Location & Map
Map View
Loading map...
Additional Information
Basement
Community
- Common Areas
- Street Lights
Lot & Land
- Level
- Underground Utilities
Primary Suite
- Bath - Full
- Double Vanity
- Other/See Remarks
- Owner on 2nd level
- Shower Only
- Walk-in Closet
Interior Details
- Carpet
- Luxury Vinyl
- Gas Cooktop
- Microwave
- Electric Oven
- Disposal
- Dishwasher
- Tilt-Out
- 2nd Floor
- Electric Dryer Hookup
- Walk-In
- Washer Hookup
- Cable Available
- Attic Stairs Pulldown
- Walk-In Closet(s)
- Ceiling - Smooth
- Solid Surface Counters
- Open Floorplan
- Pantry
New Construction
Parking & Garage
- Garage Door Opener
- Garage
Exterior Features
- Architectural
- Attic
- Garage
- Slab
- Vinyl Siding
- Patio
- Porch
H O A & Association
- Common Area
- Street Lights
Property Overview
- Two
- Craftsman
Utilities & Systems
- Public Sewer
- Central Air
- Gas Available
- Gas
- Tankless
- Public
Listing Agent Information
You Might Also Like...
Interested in selling in Braxton Place?


