


Hampshire Heights
1/3
$265k
Hampshire Heights
SOLD
$265k
$264,700
Sold: $264,640
2173 Davenport Court
Moore, SC 29369
4Beds
2Baths
1,533Sq Ft
2025Built
About This Property
This Property Has Been Sold
This property sold 8 months ago and is no longer available for purchase.
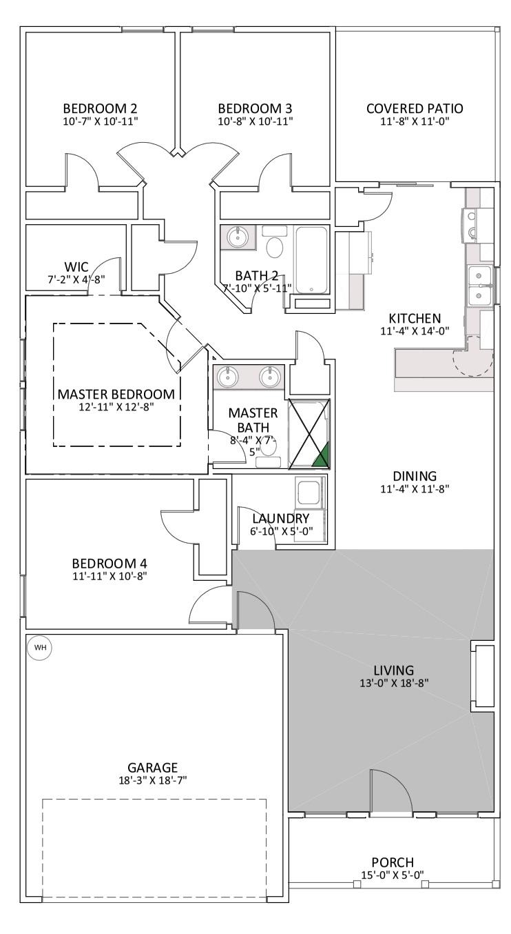
View active listings in Hampshire Heights →Preferred Lender/Attorney Closing Costs Incentive Offered! Welcome to Hampshire Heights! The Ellison plan offers an open concept living area.
4 bedroom, 2 bath. Complete with the trademark chair rail, crown molding and rope lighting.
SPN MLS # 316667
Quick Facts
Time on Site
1 year ago
Property Type
Residential
Year Built
2025
Lot Size
5,662 sqft
Price/Sq.Ft.
$173
Property Details
Bedrooms:
4
Bathrooms:
2
Living Area:
1,533 SqFt
Total Area:
1,533 SqFt
Sub-Type:
SingleFamilyResidence
Schools
Elementary:
Woodland Hg
Middle:
Dawkins Middle
High:
Dorman High
School assignments may change. Contact the school district to confirm.
Features & Amenities
Features:
- Ceiling Fan(s)
- High Ceilings
- Tray Ceiling(s)
- Attic Stairs Pulldown
- Fireplace
- Walk-In Closet(s)
- Solid Surface Counters
- Open Floorplan
Location & Map
Map View
Loading map...
Additional Information
Basement
Finished Sq Ft Below Grade
0
Lot & Land
Lot Size ( Acres)
0.13
Primary Suite
Features
- Bath - Full
- Shower-Separate
Interior Details
Flooring
- Carpet
- Luxury Vinyl
Appliances
- Dishwasher
- Disposal
- Microwave
- Cooktop
- Electric Oven
Window Features
- Tilt-Out
Interior Features
- Ceiling Fan(s)
- High Ceilings
- Tray Ceiling(s)
- Attic Stairs Pulldown
- Fireplace
- Walk-In Closet(s)
- Solid Surface Counters
- Open Floorplan
Fireplace Features
- Gas Log
New Construction
Model
Ellison
Builder
Enchanted Homes
Est. Completion
2025-06-13
Parking & Garage
Parking Type
Attached Garage
Garage Spaces
2
Parking Features
- Attached
Exterior Features
Roof
- Architectural
Storage
Attic
Driveway
Paved-Concrete
Exterior Features
- Aluminum/Vinyl Trim
Foundation Details
- Slab
Construction Materials
- Stone
- Vinyl Siding
Patio & Porch Features
- Porch
H O A & Association
Fee Frequency
Annually
Mandatory H O A
Yes
Association Fee
600
Property Overview
County
Spartanburg
Levels
- One
Subdivision
Hampshire Heights
Approximate Age
Under Construction
School District
6 Sptbg Co
Architectural Style
- Ranch
- Craftsman
Main Level Bedrooms
4
Main Level Bathrooms
2
Utilities & Systems
Sewer
- Public Sewer
Cooling
- Heat Pump
Heating
- Heat Pump
Cooling Fuel
Electricity
Heating Fuel
Electricity
Water Heater
Electric
Water Source
- Public
Water Company
Sptbg
Electric Company
Duke
Listing Agent Information
Listing Courtesy
BLAKE FLETCHER of Cornerstone Real Estate Group
Request Showing From Palmetto Park Realty Team
Spartanburg: (864) 757-4000
You Might Also Like...
Interested in selling in Hampshire Heights?


