


$255,000
197 Braxton Drive
Moore, SC 29369
About This Property
This Property Has Been Sold
This property sold 7 months ago and is no longer available for purchase.
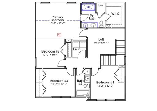
View active listings in Braxton Place →The Guilford plan is a well-designed two-story home featuring four bedrooms and two-and-a-half bathrooms. As you enter, a welcoming dining room leads into a spacious great room, perfect for gathering and everyday living. The open-concept kitchen includes a large island, granite countertops, Shaker-style cabinets, and a walk-in pantry for plenty of storage.
A door off the great room provides access to the back patio, ideal for outdoor activities. Durable luxury vinyl plank flooring runs throughout the first floor, combining style and practicality. Upstairs, a centrally located loft offers extra living space and is conveniently near the laundry room.
Three secondary bedrooms share a full bathroom, while the primary suite features a vaulted ceiling, a private bathroom with double sinks, a linen closet, and a walk-in closet. Designed for comfort and functionality, this home is a great fit for modern living. Enjoy being just a stone’s throw from Linville Hills Park, surrounded by mature trees.
SPN MLS # 322660
Quick Facts
Time on Site
1 year ago
Property Type
Residential
Year Built
2025
Lot Size
4,356 sqft
Price/Sq.Ft.
$142
Property Details
Schools
Features & Amenities
Features:
- Cable Available
- Attic Stairs Pulldown
- Walk-In Closet(s)
- Ceiling - Smooth
- Solid Surface Counters
- Open Floorplan
- Walk-In Pantry
Location & Map
Map View
Loading map...
Additional Information
Basement
Security
- Smoke Detector(s)
Lot & Land
- Level
Primary Suite
- Bath - Full
- Double Vanity
- Owner on 2nd level
- Shower Only
- Walk-in Closet
Interior Details
- Carpet
- Luxury Vinyl
- Gas Cooktop
- Dishwasher
- Disposal
- Microwave
- Comb. Living & Din Room
- Loft
- 2nd Floor
- Walk-In
- Cable Available
- Attic Stairs Pulldown
- Walk-In Closet(s)
- Ceiling - Smooth
- Solid Surface Counters
- Open Floorplan
- Walk-In Pantry
New Construction
Parking & Garage
- Attached
- 2 Car Attached
- Garage Door Opener
- Garage
- Secured
Exterior Features
- Composition
- Attic
- Garage
- Slab
- Vinyl Siding
- Patio
- Porch
H O A & Association
Property Overview
- Two
- Craftsman
Utilities & Systems
- Public Sewer
- Central Air
- Heat Pump
- Gas
- Tankless
- Available
Listing Agent Information
You Might Also Like...
Interested in selling in Braxton Place?


