


$428,990
1825 Betsy Ross Drive
About This Property
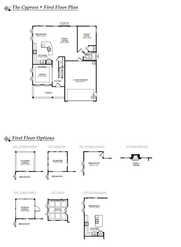
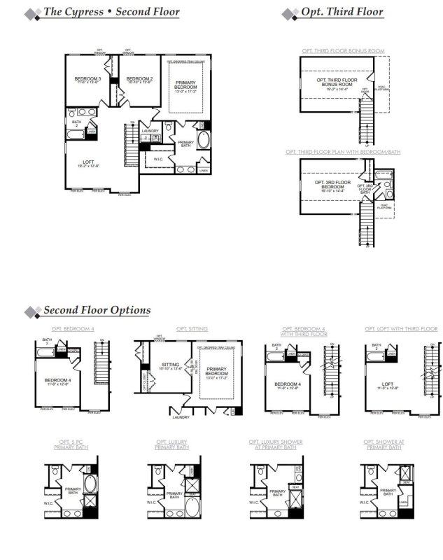
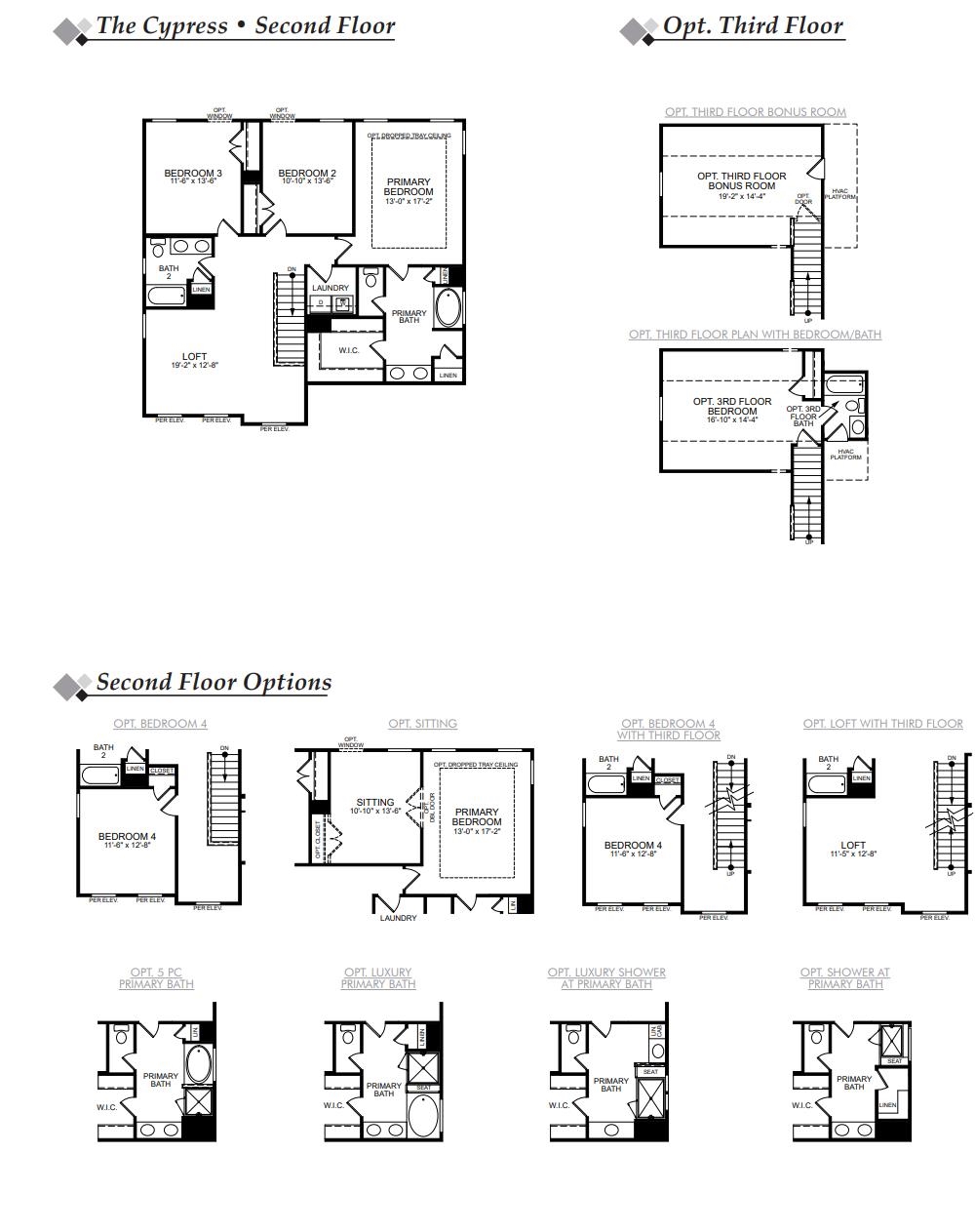
*To Be Built* Well-appointed 4-bedroom, 3-bath home featuring a guest bedroom and full bath on the main level, formal dining room, spacious loft, and open-concept living areas. The kitchen offers stainless steel appliances, granite countertops, tile backsplash, LED disc lighting, and soft-close doors on cabinetry with decorative hardware. Enhanced vinyl plank flooring is installed in the foyer, great room, kitchen/breakfast areas, and laundry room.
All bathrooms feature vinyl plank flooring, executive-height vanities with soft close doors on cabinetry, and quartz countertops. The primary bath includes a tiled walk-in shower with semi-frameless glass door and double sink vanity. Additional features include a structured wiring package, Taexx built-in pest control system, fully sodded yard, finished garage with drywall and paint, and upgraded Colonial-style trim.
Community amenities include two pickleball courts.
Quick Facts
Time on Site
6 months ago
Property Type
Residential
Year Built
2025
Lot Size
6,969 sqft
Price/Sq.Ft.
$176
Property Details
Schools
Features & Amenities
Location & Map
Map View
Loading map...
Additional Information
Basement
Security
- Smoke Detector(s)
Community
- See Remarks
- Street Lights
- Sidewalks
Lot & Land
- Level
- Underground Utilities
Primary Suite
- Bath - Full
- Double Vanity
- Owner on 2nd level
- Shower Only
- Walk-in Closet
Interior Details
- Carpet
- Luxury Vinyl
- Dishwasher
- Disposal
- Microwave
- Electric Oven
- Self Cleaning Oven
- Electric Range
- Range - Smooth Top
- Breakfast Area
- Loft
- Insulated Windows
- Tilt-Out
- 2nd Floor
- Electric Dryer Hookup
- Walk-In
- Ceilings-Some 9 Ft +
- Attic Stairs Pulldown
- Ceiling - Smooth
- Solid Surface Counters
- Open Floorplan
- Pantry
New Construction
Parking & Garage
- 2 Car Attached
- Garage Door Opener
Exterior Features
- Composition
- Aluminum/Vinyl Trim
- Slab
- HardiPlank Type
- Patio
- Porch
H O A & Association
- Street Lights
Property Overview
- Two
- Traditional
Utilities & Systems
- Public Sewer
- Central Air
- Forced Air
- Gas
- Tankless
- Available
