


$341,900
1545 Switchback Circle
Moore, SC 29369
About This Property
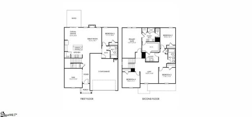
Brand new, energy-efficient home available by Mar 2026! Sip your coffee from the Chatham’s charming back patio. The impressive primary suite boasts dual sinks and a large walk-in closet.
Pebble cabinets with white quartz countertops, EVP flooring, and carpet in our Charm Package. Located in the Byrnes School District, Collier Ridge is a master-planned community centered around smart choices and better living with amenities like a pool and cabana, dog park, and more, creating a community around you. Simplify your commute with easy access to I-26 and I-85.
Groundbreaking energy efficiency is built seamlessly into every home in this community so you can spend less on utility bills and more on the things that matter most.* Each of our homes is built with innovative, energy-efficient features designed to help you enjoy more savings, better health, real comfort and peace of mind.
GVL MLS # 1585077
Quick Facts
Time on Site
1 month ago
Property Type
Residential
Year Built
2026
Lot Size
6,969 sqft
Price/Sq.Ft.
$128
HOA Fees
$500/yr
Property Details
Schools
Features & Amenities
Features:
- High Ceilings
- Ceiling Smooth
- Granite Counters
- Countertops-Solid Surface
- Open Floorplan
- Countertops – Quartz
Location & Map
Map View
Loading map...
Additional Information
Community
- Common Areas
- Street Lights
- Pool
- Dog Park
Lot & Land
- 1/2 Acre or Less
- Few Trees
Tax Information
Interior Details
- Carpet
- Ceramic Tile
- Gas Cooktop
- Dishwasher
- Disposal
- Microwave
- Tankless Water Heater
- 2nd Floor
- Walk-in
- Electric Dryer Hookup
- High Ceilings
- Ceiling Smooth
- Granite Counters
- Countertops-Solid Surface
- Open Floorplan
- Countertops – Quartz
- Gas Log
Parking & Garage
- Attached
- Paved
Exterior Features
- Composition
- Attached
- Paved
- Slab
- Patio
- Front Porch
- Brick Veneer
- Stone
- Vinyl Siding
H O A & Association
- Restrictive Covenants
Property Overview
- Two
- Contemporary
- Craftsman
Utilities & Systems
- Public Sewer
- Central Air
- Electric
- Electric
- Public
Listing Agent Information
The information is being provided by Greater Greenville MLS. Information deemed reliable but not guaranteed. Information is provided for consumers' personal, non-commercial use, and may not be used for any purpose other than the identification of potential properties for purchase. Copyright 2025 Greater Greenville MLS. All Rights Reserved.


