




$520,000
2072 Voyage Circle
Monroe, NC 28110
About This Property
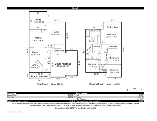
Welcome home to this beautiful open floor plan property that blends modern comfort with peaceful privacy. The home features four spacious bedrooms and two full bathrooms upstairs, each bathroom offering sleek walk-in showers. Downstairs, a dedicated office provides the perfect space for remote work or study.
The heart of the home boasts granite countertops, stainless steel appliances, and a gas range, ideal for everyday living and entertaining. Laminate wood flooring that leads to hardwood stairs flows seamlessly throughout the entire home, creating a warm and cohesive feel. A convenient drop zone just off the garage entry adds everyday functionality and organization.
Step outside to enjoy the huge flat fenced-in backyard, which extends beyond the fence into wooded surroundings—offering exceptional privacy and a tranquil natural backdrop. Situated on a generous one-third acre lot, this home is perfect for the homeowner who wants a large outdoor space to enjoy, entertain, or simply relax. This home combines style, space, and serenity in a setting you’ll love.
CAR MLS # 292742760
Quick Facts
Time on Site
4 months ago
Property Type
Residential
Year Built
2023
Price/Sq.Ft.
$232
Property Details
Schools
Features & Amenities
Features:
- Breakfast Bar
- Drop Zone
- Entrance Foyer
- Kitchen Island
- Open Floorplan
Location & Map
Map View
Loading map...
Additional Information
Utilities
- County Sewer
- County Water
Lot And Land
- Back Yard
- Fenced
- Level
- Wooded
Agent Contacts
- Palmetto Park Realty Team Fort Mill: 803.548.6123
Interior Details
- Central
- Heat Pump
- Laminate
- Electric Dryer Hookup
- Upper Level
- Washer Hookup
- Breakfast Bar
- Drop Zone
- Entrance Foyer
- Kitchen Island
- Open Floorplan
Exterior Features
- Architectural Shingle
- Vinyl
- Front Porch
- Patio
Parking And Garage
- Driveway
- Attached Garage
- Garage Door Opener
- Garage Faces Front
Financial Information
Basement And Foundation
- Slab
Zoning And Restrictions
Square Footage And Levels
- Two
Additional C A R Information
IDX information is provided exclusively for consumers' personal, non-commercial use only; it may not be used for any purpose other than to identify prospective properties consumers may be interested in purchasing. Data is deemed reliable but is not guaranteed accurate by the MLS GRID. Use of this site may be subject to an end user license agreement. Based on information submitted to the MLS GRID as of Sat, May 9, 2026. All data is obtained from various sources and may not have been verified by broker or MLS GRID. Supplied Open House Information is subject to change without notice. All information should be independently reviewed and verified for accuracy. Properties may or may not be listed by the office/agent presenting the information. Some IDX listings have been excluded from this website. Any use by you of search facilities of data on the site, other than by a consumer looking to purchase real estate, is prohibited. DMCA Notice: Palmetto Park Realty respects the intellectual property rights of others. If you believe that your work has been copied in a way that constitutes copyright infringement, please provide our designated agent with written notice containing the following information: (1) identification of the copyrighted work claimed to have been infringed; (2) identification of the material that is claimed to be infringing; (3) your contact information; (4) a statement that you have a good faith belief that use of the material is not authorized; and (5) a statement that the information in the notification is accurate and you are authorized to act on behalf of the copyright owner. Please send DMCA notices to: [email protected]