




$407,040
Brand New Moncks Corner Home: Customize Your Dream, Enjoy Resort Amenities
Moncks Corner, SC 29461
About This Property
Customize YOUR homesite on this dirt lot! We are excited to offer you the opportunity to add custom options and personalize this home to fit your lifestyle. From selecting finishes and features to designing spaces that suit your needs, you can truly make this home your own before construction begins.
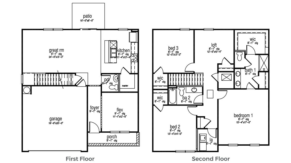
Introducing the Penwell, a thoughtfully designed two-story home offering the perfect combination of style, space, and functionality. This home features 4 bedrooms, 2.5 bathrooms, and a two-car garage.
This Penwell is located a short walk away from the stunning resort style amenity center. Step into a welcoming foyer that flows into an expansive great room, creating the perfect space for entertaining or relaxing. The heart of the home is the kitchen, which features stainless steel appliances, elegant quartz countertops, a walk-in pantry, and a beautiful island ideal for preparing meals and hosting gatherings.
Quick Facts
Time on Site
6 months ago
Property Type
Residential
Year Built
2025
Lot Size
6,534 sqft
Property Details
Schools
Features & Amenities
Location & Map
Map View
Loading map...
Additional Information
Lot And Land
Agent Contacts
Green Features
Community & H O A
Room Dimensions
Property Details
Exterior Features
Interior Features
Systems & Utilities
Financial Information
Additional Information
- IDX
- -80.024959
- 33.158651
- Slab
- Handicapped Equipped


