




Oakley Pointe
1/6
$316k
Oakley Pointe
$316k
$315,990
327 Blue Oak Drive
Moncks Corner, SC 29461
3Beds
2Baths
2024Built
About This Property
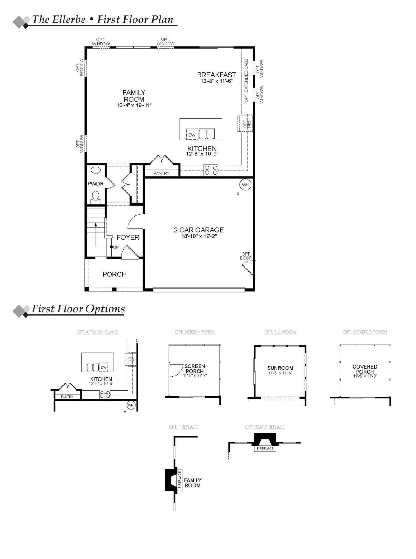
**PROPOSED CONSTRUCTION LISTING - List price includes base price and homesite premium and included features ONLY. Buyer will have opportunity for personalized design appointment** The Ellerbe is a 3 bedroom, 2.5 bath home with an open concept through your family room, kitchen and breakfast area.
On your second level, you have a loft, primary suite and bath, two secondary rooms w/ full bath and laundry room. Primary bath offers garden tub and shower. Many Options to personalize your new home.
Quick Facts
Time on Site
2 years ago
Property Type
Residential
Year Built
2024
Lot Size
5,662 sqft
Property Details
Bedrooms:
3
Bathrooms:
2
Total Area:
1,913 SqFt
Sub-Type:
SingleFamilyResidence
Stories:
2
Schools
Elementary:
Whitesville
Middle:
Berkeley
High:
Berkeley
School assignments may change. Contact the school district to confirm.
Features & Amenities
Location & Map
Map View
Loading map...
Additional Information
Lot And Land
Lot Features
0 - .5 Acre
Lot Size Area
0.13
Lot Size Acres
0.13
Lot Size Units
Acres
Agent Contacts
List Agent Mls Id
5602
List Office Name
Eastwood Homes
List Office Mls Id
7877
List Agent Full Name
Melissa Guggisberg
Green Features
Green Building Verification Type
HERS Index Score
Community & H O A
Community Features
Pool, RV/Boat Storage
Room Dimensions
Bathrooms Half
1
Room Master Bedroom Level
Upper
Property Details
Directions
On Hwy 52, Coming From Goose Creek Going Toward Moncks Corner, You're Going To Pass Cypress Gardens Road On Your Left. A Few Miles Up On Your Right Is Oakley Pointe. You'll Turn In On Oakley Pointe Blvd. Take A Right On Silk Oak Drive, Pass Burr Oak Street On Your Left And Continue To The Stop Sign. Take A Left On Blue Oak Drive, Your Destination Will Be On Your Right.
M L S Area Major
76 - Moncks Corner Above Oakley Rd
Tax Map Number
1811301018
County Or Parish
Berkeley
Property Sub Type
Single Family Detached
Architectural Style
Traditional
Construction Materials
Vinyl Siding
Exterior Features
Roof
Fiberglass
Other Structures
No
Parking Features
2 Car Garage, Attached
Exterior Features
Lawn Irrigation, Rain Gutters
Interior Features
Cooling
Central Air
Heating
Natural Gas
Flooring
Carpet, Vinyl
Room Type
Eat-In-Kitchen, Family, Laundry, Loft
Laundry Features
Laundry Room
Interior Features
Eat-in Kitchen, Family, Loft
Systems & Utilities
Sewer
Public Sewer
Utilities
BCW & SA, Berkeley Elect Co-Op, Dominion Energy
Water Source
Public
Financial Information
Listing Terms
Cash, Conventional, FHA, USDA Loan, VA Loan
Additional Information
Stories
2
Garage Y N
true
Carport Y N
false
Cooling Y N
true
Feed Types
- IDX
Heating Y N
true
Listing Id
24002204
Mls Status
Pending
Listing Key
fc2b5d664e12964e3f67130721cdb6d0
Coordinates
- -80.029477
- 33.129303
Fireplace Y N
false
Parking Total
2
Carport Spaces
0
Covered Spaces
2
Co List Agent Key
31d5f6d83a80d8ae4d6b1b0bc66d34f1
Home Warranty Y N
true
Standard Status
Pending
Co List Office Key
95466c492c994eb3fba22562107c7ebc
Source System Key
20240122154302966235000000
Attached Garage Y N
true
Co List Agent Mls Id
40345
Co List Office Name
Eastwood Homes
Building Area Units
Square Feet
Co List Office Mls Id
7877
Foundation Details
- Slab
Property Attached Y N
false
Co List Agent Full Name
Kenia Aguilera
Originating System Name
CHS Regional MLS
Special Listing Conditions
10 Yr Warranty
Co List Agent Preferred Phone
843-568-7418
Showing & Documentation
Internet Address Display Y N
true
Internet Consumer Comment Y N
true
Internet Automated Valuation Display Y N
true

