



$903,930
7411 Purple Martin Way
Mint Hill, NC 28227
About This Property
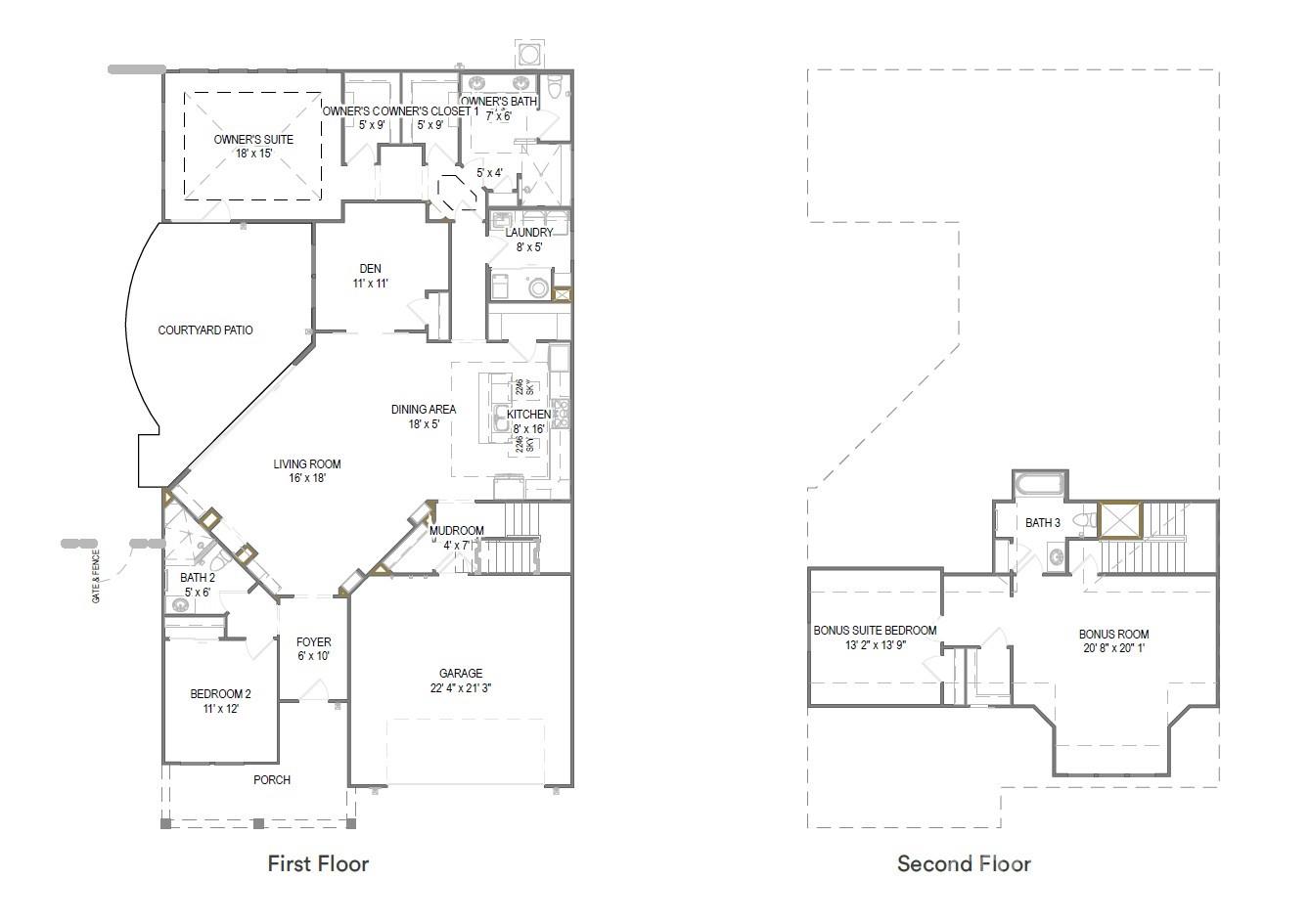
QUICK MOVE-IN HOME IS COMPLETE - This thoughtfully designed Promenade plan is perfect for entertaining! Featuring a deluxe owners suite with zero entry shower, vaulted ceiling and access to private garden courtyard, gourmet kitchen and den. This beautiful home also includes a bonus suite with large living area, bed/bath that is completely private and perfect for guest/family on an extended stay!
The Courtyards at Quail Park is a boutique neighborhood featuring luxury ranch homes designed for effortless living. Enjoy thoughtfully planned amenities that enrich everyday living--Community clubhouse with a fitness facility, a resort-style pool and pickleball court for fun and relaxation and scenic walking trails and a pedestrian connection to Mint Hill Veterans Memorial Park. Epcon Communities are intentionally designed to bring people together.
Whether you're gathering at the clubhouse, enjoying the walking trails, or relaxing in your private courtyard.
CAR MLS # 282309804
Quick Facts
Time on Site
8 months ago
Property Type
Residential
Year Built
2025
Price/Sq.Ft.
$304
Property Details
Schools
Features & Amenities
Location & Map
Address
7411 Purple Martin Way, Mint Hill, NC 28227
Community
The Courtyards at Quail Park
Map View
Loading map...
Additional Information
Utilities
- County Sewer
- County Water
Lot And Land
- Cleared
Agent Contacts
- Palmetto Park Realty Team Fort Mill: 803.548.6123
Interior Details
- Forced Air
- Natural Gas
- Zoned
- Laundry Room
- Main Level
- Sink
- Washer Hookup
- Gas
- Gas Log
- Great Room
Exterior Features
- Fiber Cement
Parking And Garage
- Driveway
- Attached Garage
- Garage Door Opener
Financial Information
Dwelling And Structure
- Farmhouse
- Ranch
- Traditional
Basement And Foundation
- Slab
Zoning And Restrictions
Square Footage And Levels
- One and One Half
Additional C A R Information
IDX information is provided exclusively for consumers' personal, non-commercial use only; it may not be used for any purpose other than to identify prospective properties consumers may be interested in purchasing. Data is deemed reliable but is not guaranteed accurate by the MLS GRID. Use of this site may be subject to an end user license agreement. Based on information submitted to the MLS GRID as of Mon, Mar 2, 2026. All data is obtained from various sources and may not have been verified by broker or MLS GRID. Supplied Open House Information is subject to change without notice. All information should be independently reviewed and verified for accuracy. Properties may or may not be listed by the office/agent presenting the information. Some IDX listings have been excluded from this website. Any use by you of search facilities of data on the site, other than by a consumer looking to purchase real estate, is prohibited. DMCA Notice: Palmetto Park Realty respects the intellectual property rights of others. If you believe that your work has been copied in a way that constitutes copyright infringement, please provide our designated agent with written notice containing the following information: (1) identification of the copyrighted work claimed to have been infringed; (2) identification of the material that is claimed to be infringing; (3) your contact information; (4) a statement that you have a good faith belief that use of the material is not authorized; and (5) a statement that the information in the notification is accurate and you are authorized to act on behalf of the copyright owner. Please send DMCA notices to: [email protected]