




$371,505
360 Abington Street
Matthews, NC 28104
About This Property
This Property Has Been Sold
This property sold 3 years ago and is no longer available for purchase.
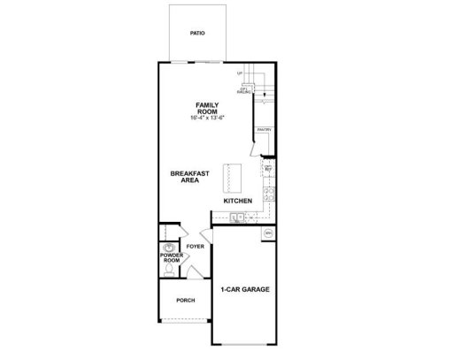
View active listings in Harpers Run →This new 2-story townhome offers 3 bedrooms, 2.5 bathrooms, and a 1-car garage. The powder room is located inside as you enter the foyer.
It’s then a straight shot to the interior of your home where you’ll find the breakfast area, kitchen, and family room. The kitchen features an island that comfortably seats 2–4 people. There is also a large closet pantry and plenty of cabinet space.
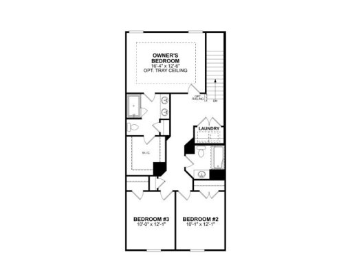
Hardwood flooring that extends throughout the first floor is the perfect way to finish off a modern and upbeat style. Upstairs you’ll find a convenient laundry room at the top of the stairs, eliminating the need to carry laundry loads up and down the stairs. The secondary bedrooms at the front of your townhome are suitable for guests, or you can turn one or both into a home office, arts and crafts space, or a workout studio.
CAR MLS # 115316519
Quick Facts
Time on Site
3 years ago
Property Type
Residential
Year Built
2023
Price/Sq.Ft.
$232
Property Details
Schools
Features & Amenities
Features:
- Attic Stairs Pulldown
- Cable Prewire
- Kitchen Island
- Open Floorplan
- Pantry
- Tray Ceiling(s)
- Walk-In Closet(s)
- Walk-In Pantry
Location & Map
Map View
Loading map...
Additional Information
Utilities
- Public Sewer
- Cable Available
- Gas
- Underground Power Lines
- Underground Utilities
- City
Lot And Land
- Level
- None
Agent Contacts
- Palmetto Park Realty Team Fort Mill: 803.548.6123
Interior Details
- Forced Air
- Natural Gas
- Zoned
- Carpet
- Hardwood
- Sliding Doors
- Electric Dryer Hookup
- In Hall
- Laundry Closet
- Upper Level
- Attic Stairs Pulldown
- Cable Prewire
- Kitchen Island
- Open Floorplan
- Pantry
- Tray Ceiling(s)
- Walk-In Closet(s)
- Walk-In Pantry
- Carbon Monoxide Detector(s)
- Smoke Detector(s)
Exterior Features
- Fiberglass
- Lawn Maintenance
- Fiber Cement
- Stone Veneer
- Front Porch
- Patio
Parking And Garage
- Driveway
- Attached Garage
- Garage Door Opener
- Garage Faces Front
Waterfront And View
- None
Financial Information
Dwelling And Structure
- Traditional
Basement And Foundation
- Slab
Zoning And Restrictions
Square Footage And Levels
- Two
Additional C A R Information
IDX information is provided exclusively for consumers' personal, non-commercial use only; it may not be used for any purpose other than to identify prospective properties consumers may be interested in purchasing. Data is deemed reliable but is not guaranteed accurate by the MLS GRID. Use of this site may be subject to an end user license agreement. Based on information submitted to the MLS GRID as of Thu, Jun 22, 2023. All data is obtained from various sources and may not have been verified by broker or MLS GRID. Supplied Open House Information is subject to change without notice. All information should be independently reviewed and verified for accuracy. Properties may or may not be listed by the office/agent presenting the information. Some IDX listings have been excluded from this website. Any use by you of search facilities of data on the site, other than by a consumer looking to purchase real estate, is prohibited. DMCA Notice: Palmetto Park Realty respects the intellectual property rights of others. If you believe that your work has been copied in a way that constitutes copyright infringement, please provide our designated agent with written notice containing the following information: (1) identification of the copyrighted work claimed to have been infringed; (2) identification of the material that is claimed to be infringing; (3) your contact information; (4) a statement that you have a good faith belief that use of the material is not authorized; and (5) a statement that the information in the notification is accurate and you are authorized to act on behalf of the copyright owner. Please send DMCA notices to: [email protected]
You Might Also Like...
Interested in selling in Harpers Run?