




$360,000
2065 Gable Way Lane
About This Property
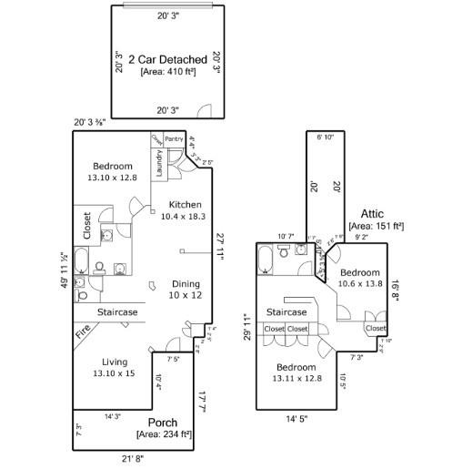
Seller is offering a $5,000 concession to help with whatever you need-new flooring, fresh paint, or even a rate buy down to lower your monthly payment. ** Welcome to 2065 Gable Way Lane, an inviting end-unit townhome in the desirable Chestnut Oaks community. This 3-bedroom, 2.
5-bathroom home offers a smart and functional layout designed for comfort and convenience. The main floor features a spacious primary bedroom with an ensuite bath, offering the ease of one-level living without sacrificing space. The open living and dining areas are perfect for relaxing or entertaining, complete with a cozy gas fireplace.
Upstairs, you'll find two additional bedrooms and a full bathroom. A detached two-car garage adds extra storage and parking flexibility. Neighborhood amenities include a pool, clubhouse, and walking trails, all with the benefit of low Union County taxes.
Quick Facts
Time on Site
7 months ago
Property Type
Residential
Year Built
2002
Price/Sq.Ft.
$214
Property Details
Schools
Features & Amenities
Location & Map
Map View
Loading map...
Additional Information
Utilities
- County Sewer
- Cable Available
- Electricity Connected
- Natural Gas
- Wired Internet Available
- County Water
Lot And Land
Agent Contacts
- Palmetto Park Realty Team Fort Mill: 803.548.6123
Interior Details
- Central
- Forced Air
- Natural Gas
- Carpet
- Linoleum
- Laundry Closet
- Main Level
- Attic Stairs Pulldown
- Pantry
- Walk-In Closet(s)
- Gas Log
- Living Room
Exterior Features
- Architectural Shingle
- Vinyl
- Covered
- Front Porch
Parking And Garage
- Detached Garage
Financial Information
Basement And Foundation
- Slab
Zoning And Restrictions
Square Footage And Levels
- Two
Additional C A R Information
IDX information is provided exclusively for consumers' personal, non-commercial use only; it may not be used for any purpose other than to identify prospective properties consumers may be interested in purchasing. Data is deemed reliable but is not guaranteed accurate by the MLS GRID. Use of this site may be subject to an end user license agreement. Based on information submitted to the MLS GRID as of Tue, Oct 14, 2025. All data is obtained from various sources and may not have been verified by broker or MLS GRID. Supplied Open House Information is subject to change without notice. All information should be independently reviewed and verified for accuracy. Properties may or may not be listed by the office/agent presenting the information. Some IDX listings have been excluded from this website. Any use by you of search facilities of data on the site, other than by a consumer looking to purchase real estate, is prohibited. DMCA Notice: Palmetto Park Realty respects the intellectual property rights of others. If you believe that your work has been copied in a way that constitutes copyright infringement, please provide our designated agent with written notice containing the following information: (1) identification of the copyrighted work claimed to have been infringed; (2) identification of the material that is claimed to be infringing; (3) your contact information; (4) a statement that you have a good faith belief that use of the material is not authorized; and (5) a statement that the information in the notification is accurate and you are authorized to act on behalf of the copyright owner. Please send DMCA notices to: [email protected]