




$470,000
104 Glenhaven Drive
Marion, NC 28752
About This Property
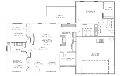
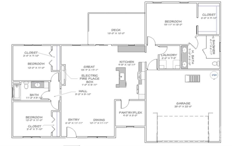
Located on a generous 1.5-acre lot in the Glenhaven community, this proposed new-construction home blends modern comfort with a thoughtfully designed, single-level layout. The open floor plan creates a bright, spacious feel, with clear sightlines through the kitchen, dining area, and great room.
Vaulted ceilings enhance the sense of openness, while the kitchen features a central island and connects seamlessly to the dining space for easy everyday living and entertaining. A split-bedroom layout provides privacy, with the primary suite positioned on one side of the home and two additional bedrooms and a full bath located on the opposite side. The primary suite offers a private retreat with an en-suite bath and walk-in closet.
A two-car garage and rear deck add both functionality and outdoor living space. Offered during the pre-construction phase, buyers have the opportunity to select finishes and personalize the home to their style. Photos are renderings & examples of interior possibilities.
CAR MLS # 292596309
Quick Facts
Time on Site
5 months ago
Property Type
Residential
Year Built
2026
Price/Sq.Ft.
$276
Property Details
Schools
Features & Amenities
Location & Map
Map View
Loading map...
Additional Information
Utilities
- Septic Needed
- Well Needed
Lot And Land
Agent Contacts
- Palmetto Park Realty Team Fort Mill: 803.548.6123
Interior Details
- Heat Pump
- Vinyl
- Electric Dryer Hookup
- Inside
- Washer Hookup
- Electric
- Living Room
Exterior Features
- Architectural Shingle
- Fiber Cement
- Covered
- Deck
- Front Porch
Parking And Garage
- Attached Garage
- Garage Door Opener
- Garage Faces Front
Financial Information
Dwelling And Structure
- No Interior Steps
Basement And Foundation
- Crawl Space
Zoning And Restrictions
Square Footage And Levels
- One
Additional C A R Information
IDX information is provided exclusively for consumers' personal, non-commercial use only; it may not be used for any purpose other than to identify prospective properties consumers may be interested in purchasing. Data is deemed reliable but is not guaranteed accurate by the MLS GRID. Use of this site may be subject to an end user license agreement. Based on information submitted to the MLS GRID as of Sun, Dec 28, 2025. All data is obtained from various sources and may not have been verified by broker or MLS GRID. Supplied Open House Information is subject to change without notice. All information should be independently reviewed and verified for accuracy. Properties may or may not be listed by the office/agent presenting the information. Some IDX listings have been excluded from this website. Any use by you of search facilities of data on the site, other than by a consumer looking to purchase real estate, is prohibited. DMCA Notice: Palmetto Park Realty respects the intellectual property rights of others. If you believe that your work has been copied in a way that constitutes copyright infringement, please provide our designated agent with written notice containing the following information: (1) identification of the copyrighted work claimed to have been infringed; (2) identification of the material that is claimed to be infringing; (3) your contact information; (4) a statement that you have a good faith belief that use of the material is not authorized; and (5) a statement that the information in the notification is accurate and you are authorized to act on behalf of the copyright owner. Please send DMCA notices to: [email protected]