




$899,900
Mountain Retreat w/ 3 Main-Level Suites & Wooded Setting
Marietta, SC 29661
About This Property
Mountain Retreat with 3 Main-Level Suites - Garden Gate Community Nestled in the scenic foothills of Marietta, SC, this thoughtfully designed home in the Garden Gate community features over 3,000 sq ft under roof, crafted for comfort and style. The main level includes 2,484 sq ft with three spacious bedroom suites, each with a private bath, plus a half bath for guests. A vaulted great room with a fireplace, formal dining area, and large kitchen with an island, walk-in pantry, and breakfast nook form the heart of the home-ideal for daily living and entertaining.
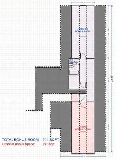
The upper-level space-an additional finished 544 sq ft with a full bath-offers flexible options for a fourth bedroom, home office, or guest retreat. Enjoy multiple outdoor living spaces, including a covered rear porch and two open decks that take full advantage of the peaceful, wooded setting. The inviting front porch creates a timeless Southern welcome.
Additional features include a rear-entry two-car garage, spacious laundry with utility sink, and upscale finishes throughout. Located in a private, gated neighborhood with underground utilities and wooded lots, the setting is both tranquil and convenient-within easy reach of Greenville, Travelers Rest, and nearby state parks and trails. A perfect blend of refined craftsmanship, natural beauty, and modern convenience-ideal for those seeking a quiet mountain lifestyle without sacrificing access to everyday essentials.
WUM MLS # 1118772097
Quick Facts
Time on Site
10 months ago
Property Type
Residential
Lot Size
1.10 acres
Property Details
Schools
Features & Amenities
Location & Map
Map View
Loading map...
Additional Information
Lot & Land
- OutsideCityLimits
- Subdivision
Community & H O A
Tax Information
Parking & Garage
- Attached
- Garage
- Driveway
Property Details
- Craftsman
- Ranch
Exterior Features
- Architectural
- Shingle
Interior Features
- Dishwasher
- ElectricOven
- ElectricRange
- Microwave
- Refrigerator
- BonusRoom
- Laundry
- Fireplace
- BathInPrimaryBedroom
- MainLevelPrimary
- Other
- SeparateShower
- WalkInClosets
Listing Information
Systems & Utilities
- CentralAir
- Electric
- Central
- Electric
- Private
- Well
Listing Agent Information
This information is deemed reliable, but not guaranteed. Neither, the Western Upstate Association of REALTORS®, Inc. or Western Upstate Multiple Listing Service of South Carolina Inc., nor the listing broker, nor their agents or subagents are responsible for the accuracy of the information. The buyer is responsible for verifying all information. This information is provided by the Western Upstate Association of REALTORS®, Inc. and Western Upstate Multiple Listing Service of South Carolina, Inc. for use by its members and is not intended for the use for any other purpose. Information is provided for consumers' personal, non-commercial use, and may not be used for any purpose other than the identification of potential properties for purchase. The data relating to real estate for sale on this Web site comes in part from the Broker Reciprocity Program of the Western Upstate Association of REALTORS®, Inc. and the Western Upstate Multiple Listing Service, Inc.


