




$475,130
135 Eagles Crest Drive
Marietta, SC 29661
About This Property
This Property Has Been Sold
This property sold 3 years ago and is no longer available for purchase.
View active listings in Pointe Summit →Beautiful views of the Blue Ridge mountains are calling you to Pointe Summit! A 96-acre luxury, gated community with large lots and spectacular mountain views! It’s an easy drive to downtown Greenville AND Hendersonville.
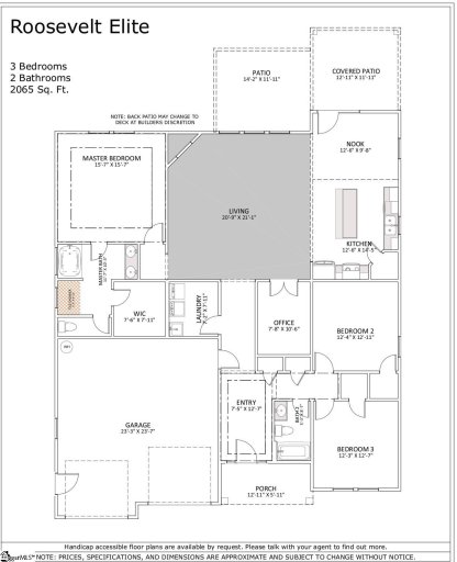
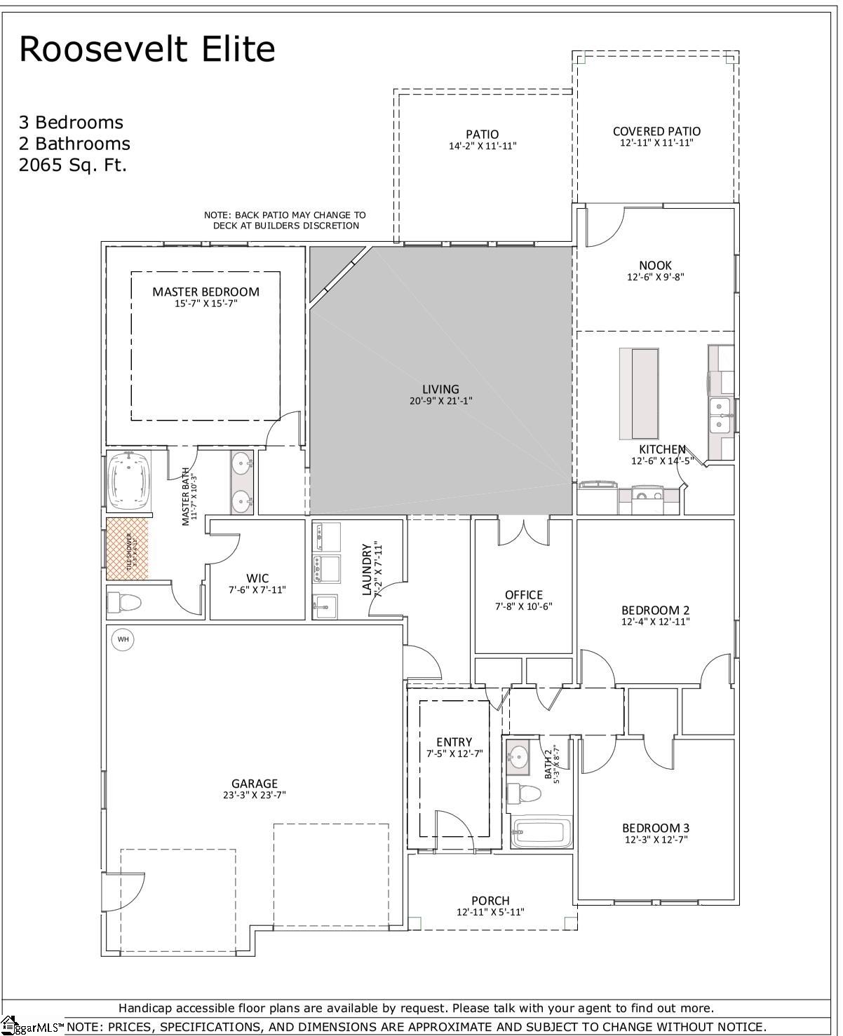
This popular Roosevelt Elite floor plan is an open concept home featuring 3 bedrooms, 2 bathrooms, walk-in pantry, office/study and large kitchen, backsplash, under counter lighting with breakfast nook. Features in this home include concrete plank and stone exterior, architectural shingles, soffit exterior lighting, nine to 11 foot ceilings, crown molding with rope lighting in the primary bedroom and living room, large tiled shower in the primary bathroom, electric water heater, covered patio with fireplace. Additional features include 2ox2o clerestory windows, larger sink and cabinet plus upper cabinets in laundry, beadboard in entry, radiant barrier to roof, farmhouse sink in kitchen, increased home insulation, exterior flood lights and specialized blinds and more!
GVL MLS # 1480464
Quick Facts
Time on Site
4 years ago
Property Type
Residential
Year Built
2023
Lot Size
36,154 sqft
HOA Fees
$625/yr
Property Details
Schools
Features & Amenities
Features:
- High Ceilings
- Ceiling Fan(s)
- Tray Ceiling(s)
- Granite Counters
- Open Floorplan
- Soaking Tub
- Walk-In Closet(s)
- Split Floor Plan
- Pantry
Location & Map
Map View
Loading map...
Additional Information
Lot & Land
- 1/2 - Acre
- Sloped
- Few Trees
- Sprklr In Grnd-Partial Yd
Tax Information
Interior Details
- Carpet
- Ceramic Tile
- Laminate
- Dishwasher
- Disposal
- Free-Standing Gas Range
- Gas Oven
- Microwave
- Electric Water Heater
- Sink
- 1st Floor
- Walk-in
- Laundry Room
- High Ceilings
- Ceiling Fan(s)
- Tray Ceiling(s)
- Granite Counters
- Open Floorplan
- Soaking Tub
- Walk-In Closet(s)
- Split Floor Plan
- Pantry
- Gas Log
- Ventless
Parking & Garage
- Attached
- Paved
- Garage Door Opener
- Yard Door
Exterior Features
- Architectural
- Attached
- Paved
- Garage Door Opener
- Yard Door
- Crawl Space
- Deck
- Front Porch
- Concrete
- Stone
H O A & Association
Property Overview
- One
- Craftsman
Utilities & Systems
- Septic Tank
- Central Air
- Electric
- Electric
- Forced Air
- Cable Available
- Public
Listing Agent Information
The information is being provided by Greater Greenville MLS. Information deemed reliable but not guaranteed. Information is provided for consumers' personal, non-commercial use, and may not be used for any purpose other than the identification of potential properties for purchase. Copyright 2025 Greater Greenville MLS. All Rights Reserved.
You Might Also Like...
Interested in selling in Pointe Summit?


