




$369,000
6 N Lake Circle
Manning, SC 29102
About This Property
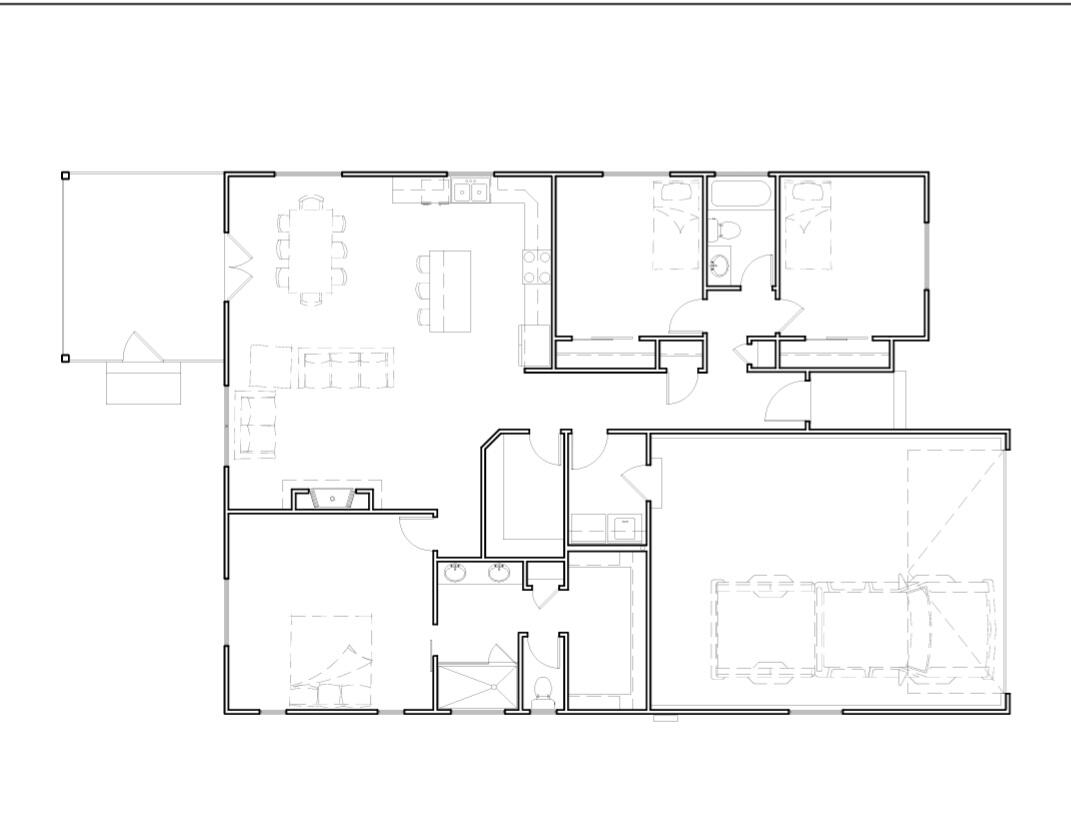
This under construction 3 bedroom, 2 full bathroom brick patio home delivers a high quality layout, thoughtful finishes, and an unbeatable setting in the gated community of Wyboo Plantation, just minutes from Lake Marion. From the moment you enter the foyer, the home feels open and comfortable with 9' ceilings and natural light flowing through large windows and the back patio door. To the right, two spacious guest bedrooms share a full bathroom with a tub/shower combo, both finished with soft carpet while the rest of the home features durable luxury vinyl plank flooring.The main living area opens into a wide, airy space ideal for everyday comfort and entertaining. The kitchen offers generous cabinet storage, granite countertops, a tiled backsplash, stainless steel appliances, brushed nickel fixtures, and a large walk in pantry. The oversized island creates a natural gathering point and connects seamlessly to the dining area and living room centered around a fireplace. Just off the dining area, the screened-in back porch provides peaceful golf course views and an easy extension of your living space.
The primary suite is privately tucked on the opposite side of the home in a true split bedroom design. It features a spacious bedroom, a tiled walk in shower, dual sink granite vanity, and a large walk in closet. The oversized two-car garage, deep enough for two full size vehicles plus a golf cart, enters into a convenient laundry/mudroom for dropping jackets and shoes as you come inside.Wyboo Plantation offers a lifestyle built around recreation and community, with access to a pool, pickleball courts, tennis courts, and a community center. Lake Marion, known for excellent boating, fishing, and miles of scenic shoreline, sits just minutes away along with golf, outdoor trails, and the relaxed charm of the surrounding area.
Opportunities to secure a brand-new home with this combination of features, location, and amenities are rare, don't miss your chance.
Quick Facts
Time on Site
3 months ago
Property Type
Residential
Year Built
2026
Lot Size
10,454 sqft
Property Details
Schools
Features & Amenities
Location & Map
Map View
Loading map...
Additional Information
Lot And Land
Agent Contacts
Community & H O A
Room Dimensions
Property Details
Exterior Features
Interior Features
Systems & Utilities
Financial Information
Additional Information
- IDX
- -80.214316
- 33.576776
- Slab


