




$359,900
Lot 48 Twinbrook Lane
Maggie Valley, NC 28751
About This Property
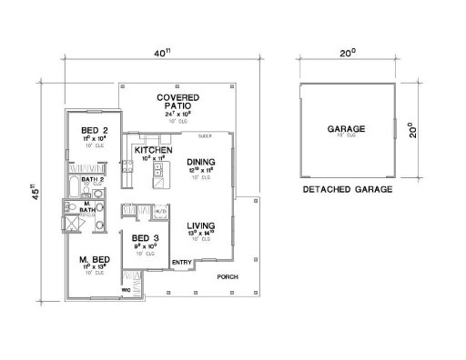
Is there a new construction cottage in Maggie Valley with porches, a creek, and resort perks? Yes—this 2026 proposed build in Twinbrook Resort blends timeless mountain style with updated comfort. Offering 1,155 sq ft on one level, the home features 3 bedrooms, 2 full baths, and a spacious open living plan with 10’ ceilings, LVP flooring, stainless steel appliances, and granite countertops.
The kitchen includes a large island, breakfast nook, and eating bar, and flows out to a covered rear patio with views toward the creek-lined backyard. Set on a .25-acre lot bordered by a mountain stream, this plan also includes a charming covered front porch and optional 20x20 detached garage (available at added cost).
Perfect for empty nesters, vacationers, or STR buyers looking for low-maintenance living with a premium feel. HOA is $1,200/year and includes access to the clubhouse, indoor pool, and hot tub. Zoned for Jonathan Valley Elementary, Waynesville Middle, and Tuscola High, and located just minutes from shops, dining, and the Blue Ridge Parkway.
CAR MLS # 292183288
Quick Facts
Time on Site
4 months ago
Property Type
Residential
Year Built
2026
Price/Sq.Ft.
$321
Property Details
Schools
Features & Amenities
Location & Map
Map View
Loading map...
Additional Information
Utilities
- Public Sewer
- Cable Available
- Underground Power Lines
- Underground Utilities
- Wired Internet Available
- City
Lot And Land
- Creek Front
- Creek/Stream
Agent Contacts
- Palmetto Park Realty Team Fort Mill: 803.548.6123
Interior Details
- Central
- Heat Pump
- Vinyl
- Insulated Door(s)
- Insulated Window(s)
- Laundry Room
Exterior Features
- Architectural Shingle
- Fiber Cement
- Covered
- Front Porch
Parking And Garage
- Driveway
- Attached Garage
Waterfront And View
- Winter
- Other - See Remarks
Financial Information
Dwelling And Structure
- Cottage
Basement And Foundation
- Crawl Space
Zoning And Restrictions
Square Footage And Levels
- One
Additional C A R Information
- Architectural Review
- Deed
- Short Term Rental Allowed
IDX information is provided exclusively for consumers' personal, non-commercial use only; it may not be used for any purpose other than to identify prospective properties consumers may be interested in purchasing. Data is deemed reliable but is not guaranteed accurate by the MLS GRID. Use of this site may be subject to an end user license agreement. Based on information submitted to the MLS GRID as of Wed, Feb 18, 2026. All data is obtained from various sources and may not have been verified by broker or MLS GRID. Supplied Open House Information is subject to change without notice. All information should be independently reviewed and verified for accuracy. Properties may or may not be listed by the office/agent presenting the information. Some IDX listings have been excluded from this website. Any use by you of search facilities of data on the site, other than by a consumer looking to purchase real estate, is prohibited. DMCA Notice: Palmetto Park Realty respects the intellectual property rights of others. If you believe that your work has been copied in a way that constitutes copyright infringement, please provide our designated agent with written notice containing the following information: (1) identification of the copyrighted work claimed to have been infringed; (2) identification of the material that is claimed to be infringing; (3) your contact information; (4) a statement that you have a good faith belief that use of the material is not authorized; and (5) a statement that the information in the notification is accurate and you are authorized to act on behalf of the copyright owner. Please send DMCA notices to: [email protected]