



$349,900
Lot 44 Twinbrook Lane
Maggie Valley, NC 28751
About This Property
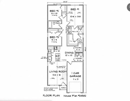
Is there a 3-bed cottage in Maggie Valley with resort amenities, a creek, and energy-efficient design? Yes—and it's a proposed 2026 build in the Twinbrook Resort subdivision. With 1,120 sq ft on one level, this 3-bed, 2-bath cottage features 9’ ceilings throughout, a granite kitchen with stainless appliances, a walk-in pantry, a breakfast nook, and LVP flooring.
The primary suite offers a walk-in closet, and the laundry room is conveniently located on the main floor. Thoughtfully designed for a narrow lot (24’ wide), this home includes a covered front porch, a front-entry 1-car garage (231 sq ft), and a rear-facing creek view. The .
22-acre lot sits in a wooded, walkable neighborhood just minutes from Maggie Valley shops, restaurants, and the Blue Ridge Parkway. Twinbrook Resort’s $1,200/year HOA includes a clubhouse, indoor pool, and hot tub. Additional features: energy-efficient construction, 8:12 roof pitch, and economical build plan.
CAR MLS # 292182666
Quick Facts
Time on Site
4 months ago
Property Type
Residential
Year Built
2026
Price/Sq.Ft.
$312
Property Details
Schools
Features & Amenities
Location & Map
Map View
Loading map...
Additional Information
Utilities
- Public Sewer
- Cable Available
- Underground Power Lines
- Underground Utilities
- Wired Internet Available
- City
Lot And Land
- Creek Front
- Creek/Stream
Agent Contacts
- Palmetto Park Realty Team Fort Mill: 803.548.6123
Interior Details
- Central
- Heat Pump
- Vinyl
- Insulated Door(s)
- Insulated Window(s)
- Laundry Room
Exterior Features
- Architectural Shingle
- Fiber Cement
- Covered
- Front Porch
Parking And Garage
- Driveway
- Attached Garage
Waterfront And View
- Winter
- Other - See Remarks
Financial Information
Dwelling And Structure
- Cottage
Basement And Foundation
- Crawl Space
Zoning And Restrictions
Square Footage And Levels
- One
Additional C A R Information
- Architectural Review
- Deed
- Short Term Rental Allowed
IDX information is provided exclusively for consumers' personal, non-commercial use only; it may not be used for any purpose other than to identify prospective properties consumers may be interested in purchasing. Data is deemed reliable but is not guaranteed accurate by the MLS GRID. Use of this site may be subject to an end user license agreement. Based on information submitted to the MLS GRID as of Wed, Feb 18, 2026. All data is obtained from various sources and may not have been verified by broker or MLS GRID. Supplied Open House Information is subject to change without notice. All information should be independently reviewed and verified for accuracy. Properties may or may not be listed by the office/agent presenting the information. Some IDX listings have been excluded from this website. Any use by you of search facilities of data on the site, other than by a consumer looking to purchase real estate, is prohibited. DMCA Notice: Palmetto Park Realty respects the intellectual property rights of others. If you believe that your work has been copied in a way that constitutes copyright infringement, please provide our designated agent with written notice containing the following information: (1) identification of the copyrighted work claimed to have been infringed; (2) identification of the material that is claimed to be infringing; (3) your contact information; (4) a statement that you have a good faith belief that use of the material is not authorized; and (5) a statement that the information in the notification is accurate and you are authorized to act on behalf of the copyright owner. Please send DMCA notices to: [email protected]