


$214,900
855 Ernest Lane
Lyman, SC 29365
About This Property
Make the most of Advantage Key Week—each home holds its own deal, unlocked by scanning inside. Brand new, energy-efficient home available by Aug 2025! .
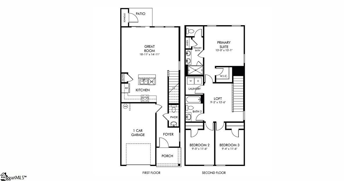
04 acres, Radiant Package. Kick your feet up after a long day on the back patio. Inside, the kitchen island overlooks the open-concept great room.
The primary suite features a spacious ensuite bath with dual sinks. Avalon Townes offers two-story floorplans that feature open-concept designs ranging from 1,276 to 1,480 square feet. Located minutes away from an abundance of restaurants and shops, convenience can be at your fingertips.
GVL MLS # 1563309
Quick Facts
Time on Site
8 months ago
Property Type
Residential
Year Built
2025
Lot Size
1,742 sqft
Price/Sq.Ft.
$145
HOA Fees
$160/mo
Property Details
Schools
Features & Amenities
Features:
- High Ceilings
- Ceiling Smooth
- Countertops-Solid Surface
- Open Floorplan
- Walk-In Closet(s)
- Pantry
Location & Map
Map View
Loading map...
Additional Information
Community
- Dog Park
Lot & Land
- 1/2 Acre or Less
Tax Information
Interior Details
- Carpet
- Vinyl
- Dishwasher
- Disposal
- Dryer
- Free-Standing Gas Range
- Refrigerator
- Washer
- Microwave
- Tankless Water Heater
- 2nd Floor
- Walk-in
- High Ceilings
- Ceiling Smooth
- Countertops-Solid Surface
- Open Floorplan
- Walk-In Closet(s)
- Pantry
Parking & Garage
- Attached
- Paved
Exterior Features
- Composition
- Attached
- Paved
- Slab
- Patio
- Front Porch
- Vinyl Siding
H O A & Association
- Common Area Ins.
- Street Lights
- Trash
- Termite Contract
Property Overview
- Two
- Craftsman
Utilities & Systems
- Public Sewer
- Electric
- Electric
- Public
Listing Agent Information
The information is being provided by Greater Greenville MLS. Information deemed reliable but not guaranteed. Information is provided for consumers' personal, non-commercial use, and may not be used for any purpose other than the identification of potential properties for purchase. Copyright 2025 Greater Greenville MLS. All Rights Reserved.


