



Kenmare
1/4
$281k
Kenmare
SOLD
$281k
$280,700
Sold: $280,700
852 Brennan Way
Lyman, SC 29365
3Beds
2Baths
1,780Sq Ft
About This Property
This Property Has Been Sold
This property sold 3 years ago and is no longer available for purchase.
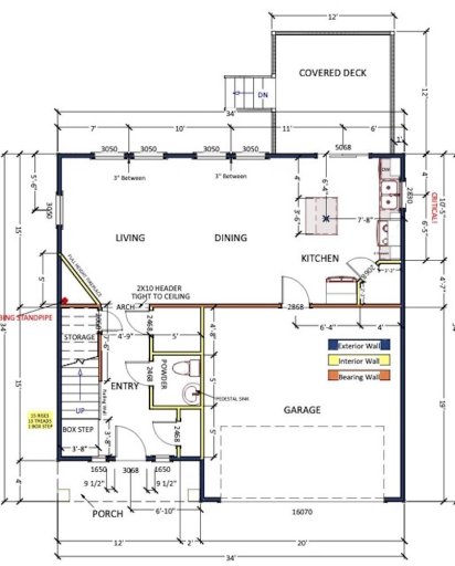
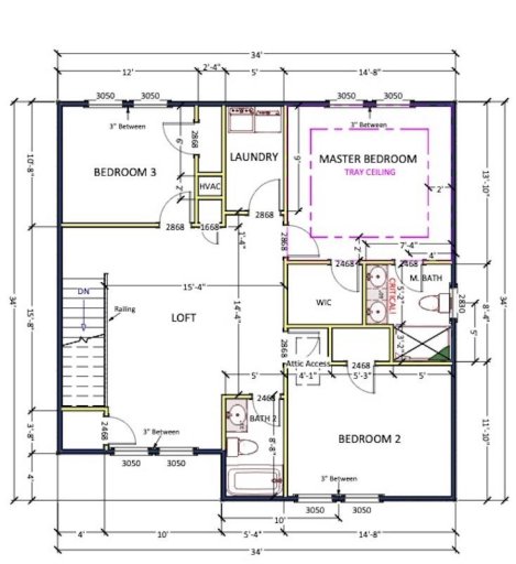
View active listings in Kenmare →This Custom Heatherwood Plan is a two story plan with 3 bedrooms, 2.5 bathrooms and a loft. Standard features include trey ceilings with rope lighting in living room and master bedroom, a half stone fireplace, granite countertops throughout, and a covered back deck.
|
Situated on a large lot in Lyman, just minutes from Lyman Lake and downtown Greer. Preferred Lender/Attorney Closing Costs Incentive Offered! Call today to schedule your showing!
SPN MLS # 292400
Quick Facts
Time on Site
4 years ago
Property Type
Residential
Lot Size
42,253 sqft
Price/Sq.Ft.
$158
Property Details
Bedrooms:
3
Bathrooms:
2
Living Area:
1,780 SqFt
Total Area:
1,780 SqFt
Sub-Type:
SingleFamilyResidence
Schools
Elementary:
Lyman Elem
Middle:
Dr Hill Middle
High:
Byrnes High
School assignments may change. Contact the school district to confirm.
Features & Amenities
Features:
- Ceiling Fan(s)
- Cable Available
- Tray Ceiling(s)
- Attic Stairs Pulldown
- Fireplace
- Walk-In Closet(s)
- Solid Surface Counters
Location & Map
Map View
Loading map...
Additional Information
Basement
Finished Sq Ft Below Grade
0
Security
Security Features
- Smoke Detector(s)
Lot & Land
Lot Features
- Sloped
- Underground Utilities
Lot Size ( Acres)
0.97
Primary Suite
Features
- Bath - Full
- Double Vanity
- Owner on 2nd level
- Shower Only
- Walk-in Closet
Interior Details
Flooring
- Carpet
- Vinyl
Appliances
- Range
- Dishwasher
- Disposal
- Microwave
- Cooktop
- Electric Cooktop
- Electric Oven
- Self Cleaning Oven
Specialty Rooms
Attic
Window Features
- Tilt-Out
Interior Features
- Ceiling Fan(s)
- Cable Available
- Tray Ceiling(s)
- Attic Stairs Pulldown
- Fireplace
- Walk-In Closet(s)
- Solid Surface Counters
Fireplace Features
- Gas Log
New Construction
Builder
Enchanted Homes
Parking & Garage
Garage Spaces
2
Parking Features
- Attached
- Garage Door Opener
- Garage
Exterior Features
Roof
- Architectural
Storage
- Attic
- Garage
Driveway
Paved-Concrete
Exterior Features
- Aluminum/Vinyl Trim
Foundation Details
- Crawl Space
Construction Materials
- Stone
- Vinyl Siding
Patio & Porch Features
- Deck
- Porch
H O A & Association
Mandatory H O A
Yes
Association Fee
385
Property Overview
County
Spartanburg
Levels
- Two
Subdivision
Kenmare
Approximate Age
To Be Built
School District
5 Sptbg Co
Architectural Style
- Craftsman
Utilities & Systems
Sewer
- Septic Tank
Cooling
- Central Air
Heating
- Heat Pump
Cooling Fuel
Electricity
Heating Fuel
Electricity
Water Heater
Electric
Water Source
- Public
Water Company
SJWD
Garbage Pickup
Private
Electric Company
Duke
Listing Agent Information
Listing Courtesy
Dylan Morris of Cornerstone Real Estate Group
Request Showing From Palmetto Park Realty Team
Spartanburg: (864) 757-4000
You Might Also Like...
Interested in selling in Kenmare?


