


$225,900
835 Ernest Lane
Lyman, SC 29365
About This Property
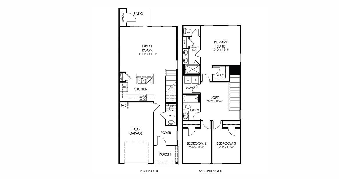
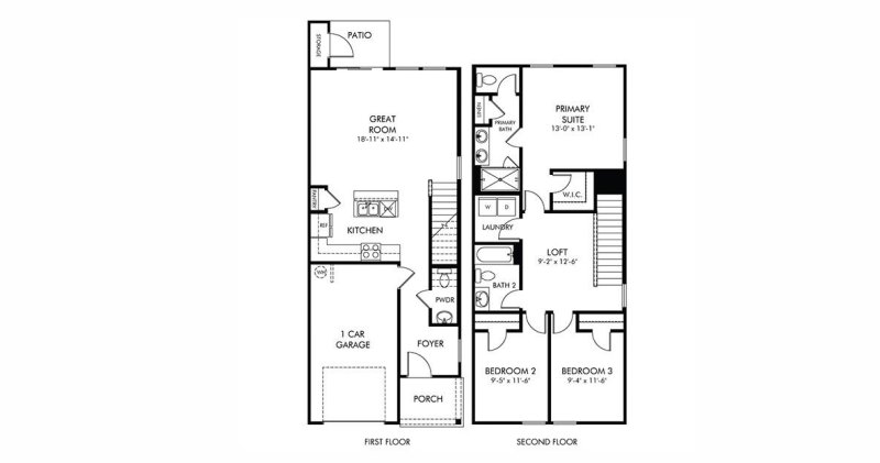
Brand new, energy-efficient home available by Jun 2025! Upstairs, the spacious primary suite features dual sinks and a walk-in closet. A convenient second-story laundry simplifies the chore.
Pebble cabinets with white quartz countertops, EVP flooring, and carpet in our Fresh Package. The Avalon Townes community is bringing energy-efficient living to Lyman. Featuring two unique floorplans, a dog park, and a walking trail, homeowners can enjoy a welcome environment for relaxation and recreation.
This community will be located just 5 minutes from W Wade Hampton Blvd, which offers an abundance of shopping, dining, and activities for you to enjoy, and it's only 10 minutes from the airport. Join the interest list today. Each of our homes is built with innovative, energy-efficient features designed to help you enjoy more savings, better health, real comfort and peace of mind.
SPN MLS # 324223
Quick Facts
Time on Site
10 months ago
Property Type
Residential
Year Built
2025
Lot Size
2,613 sqft
Price/Sq.Ft.
$153
Property Details
Schools
Features & Amenities
Features:
- Attic Stairs Pulldown
- Walk-In Closet(s)
- Ceiling - Smooth
- Solid Surface Counters
Location & Map
Map View
Loading map...
Additional Information
Basement
Security
- Smoke Detector(s)
Community
- Walking Trails
Lot & Land
- Level
Primary Suite
- Bath - Full
- Double Vanity
- Shower Only
- Walk-in Closet
Interior Details
- Carpet
- Vinyl
- Dishwasher
- Disposal
- Dryer
- Microwave
- Gas Oven
- Free-Standing Range
- Range
- Refrigerator
- Washer
- Attic Stairs Pulldown
- Walk-In Closet(s)
- Ceiling - Smooth
- Solid Surface Counters
New Construction
Parking & Garage
Exterior Features
- Composition
- Slab
- Vinyl Siding
- Patio
- Porch
H O A & Association
- Common Area
- Street Lights
- Trash
Property Overview
- Two
- Craftsman
Utilities & Systems
- Public Sewer
- Central Air
- Heat Pump
- Public

