


$221,990
306 Durango Trail
Lyman, SC 29365
About This Property
Proposed Construction Opportunity! Customize the home by visiting the design center to pick colors and options. Price listed is before options are added.
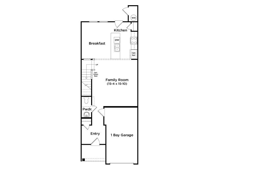
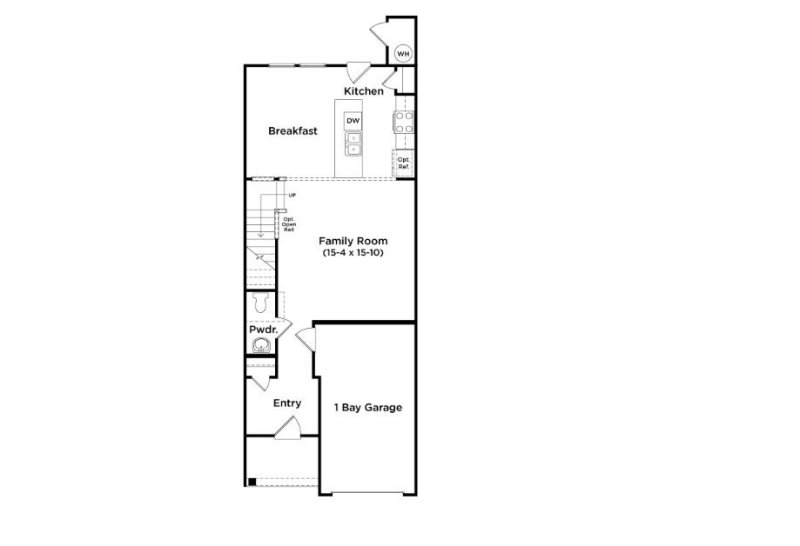
Welcome to Aspen Ridge! The most prestigious and conveniently located new homes just 6 miles from Downtown Greer, SC. Step inside this beautifully designed home featuring an open-concept layout perfect for everyday living and entertaining.
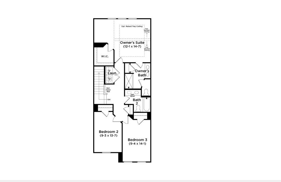
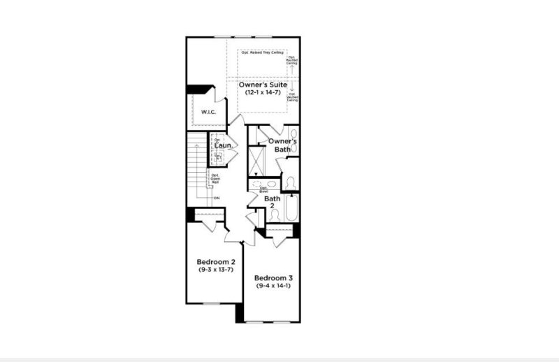
The heart of the home is the stunning kitchen with a 9-foot center island, seamlessly flowing into the bright family room and cozy breakfast area—ideal for gatherings or quiet mornings. Other features of the kitchen include dark cabinets, granite countertops and stainless steel electric appliances. Upstairs you’ll find three generously sized bedrooms, two full bathrooms, and a convenient laundry room.
SPN MLS # 330040
Quick Facts
Time on Site
5 months ago
Property Type
Residential
Year Built
2026
Lot Size
1,742 sqft
Price/Sq.Ft.
$140
Property Details
Schools
Features & Amenities
Features:
- Cable Available
- Ceilings-Some 9 Ft +
- Attic Stairs Pulldown
- Walk-In Closet(s)
- Ceiling - Smooth
- Solid Surface Counters
- Open Floorplan
- Split Bedroom Plan
- Pantry
Location & Map
Map View
Loading map...
Additional Information
Basement
Security
- Smoke Detector(s)
Community
- Street Lights
- Lawn
Lot & Land
- Level
Primary Suite
- Bath - Full
- Owner on 2nd level
- Shower Only
- Walk-in Closet
Interior Details
- Carpet
- Vinyl
- Dishwasher
- Disposal
- Microwave
- Electric Oven
- Electric Range
- Range
- Tilt-Out
- 2nd Floor
- Laundry Closet
- Electric Dryer Hookup
- Cable Available
- Ceilings-Some 9 Ft +
- Attic Stairs Pulldown
- Walk-In Closet(s)
- Ceiling - Smooth
- Solid Surface Counters
- Open Floorplan
- Split Bedroom Plan
- Pantry
New Construction
Parking & Garage
- Attached
Exterior Features
- Architectural
- Garage
- Other/See Remarks
- Extra Pad
- Paved
- Slab
- Vinyl Siding
- Porch
H O A & Association
- Lawn Service
- Street Lights
Property Overview
- Two
- Craftsman
Utilities & Systems
- Public Sewer
- Central Air
- Forced Air
- Public

