




$231,990
125 Aspen Ridge Lane
Lyman, SC 29365
About This Property
Welcome to Aspen Ridge! The most prestigious and conveniently located new homes just 6 miles from Downtown Greer, SC. SIMPLIFY YOUR MOVE!
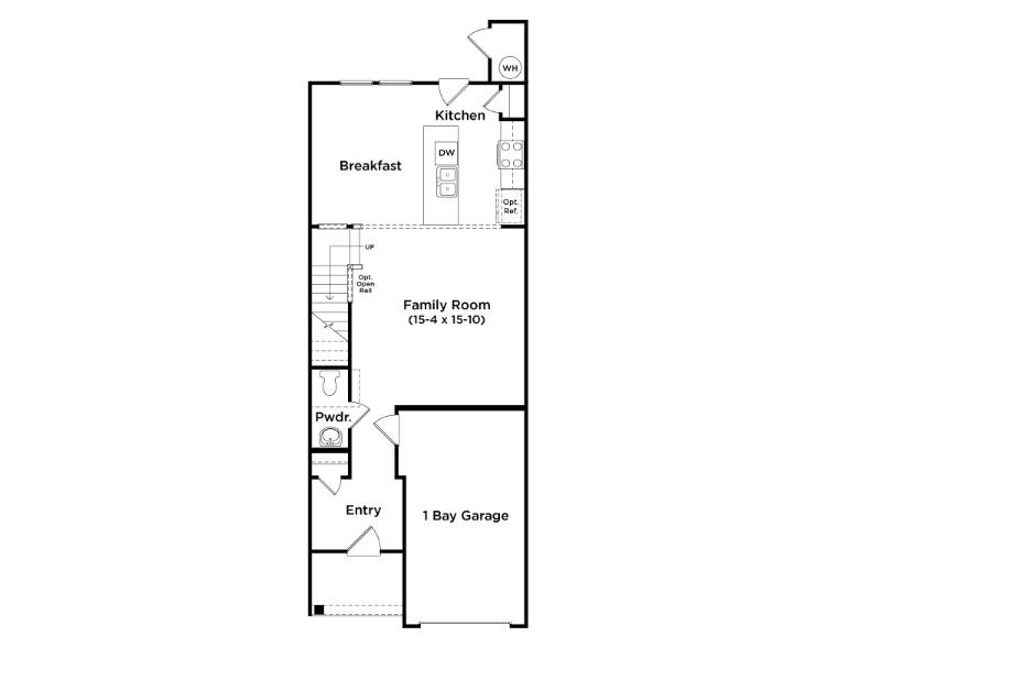
All homes feature the move-in package boasting a refrigerator, washer, dryer, dishwasher, microwave, in-sink disposal and white faux wood blinds. Step inside this beautifully designed home featuring an open-concept layout perfect for everyday living and entertaining. The heart of the home is the stunning kitchen with a 9-foot center island, seamlessly flowing into the bright family room and cozy breakfast area—ideal for gatherings or quiet mornings.
Other features of the kitchen include white cabinetry, white Quartz countertops, tiled backsplash and stainless steel appliances including a gas range/oven and refrigerator. Upstairs you’ll find three generously sized bedrooms, two full bathrooms, and a convenient laundry room with washer/dryer included. The spacious Primary suite offers a large walk-in closet and a private bath with dual vanities and step in shower for a touch of luxury.
SPN MLS # 334517
Quick Facts
Time on Site
8 days ago
Property Type
Residential
Year Built
2026
Lot Size
1,742 sqft
Price/Sq.Ft.
$145
Property Details
Schools
Features & Amenities
Features:
- Cable Available
- Ceilings-Some 9 Ft +
- Attic Stairs Pulldown
- Walk-In Closet(s)
- Ceiling - Smooth
- Solid Surface Counters
- Open Floorplan
- Split Bedroom Plan
- Pantry
- Smart Home
Location & Map
Map View
Loading map...
Additional Information
Basement
Security
- Smoke Detector(s)
Community
- Street Lights
- Lawn
- Dog Park
Lot & Land
- Level
Primary Suite
- Bath - Full
- Double Vanity
- Owner on 2nd level
- Shower Only
- Walk-in Closet
Interior Details
- Carpet
- Luxury Vinyl
- Dishwasher
- Disposal
- Dryer
- Microwave
- Gas Oven
- Self Cleaning Oven
- Gas Range
- Range
- Refrigerator
- Washer
- Tilt-Out
- 2nd Floor
- Laundry Closet
- Electric Dryer Hookup
- Cable Available
- Ceilings-Some 9 Ft +
- Attic Stairs Pulldown
- Walk-In Closet(s)
- Ceiling - Smooth
- Solid Surface Counters
- Open Floorplan
- Split Bedroom Plan
- Pantry
- Smart Home
New Construction
Parking & Garage
- Attached
- Garage Door Opener
Exterior Features
- Architectural
- Garage
- Other/See Remarks
- Extra Pad
- Paved
- Slab
- Vinyl Siding
- Patio
- Porch
H O A & Association
- Lawn Service
- Street Lights
Property Overview
- Two
- Craftsman
Utilities & Systems
- Public Sewer
- Central Air
- Forced Air
- Public


