




$231,990
123 Aspen Ridge Lane
Lyman, SC 29365
About This Property
Welcome to Aspen Ridge! The most prestigious and conveniently located new homes just 6 miles from Downtown Greer, SC. SIMPLIFY YOUR MOVE!
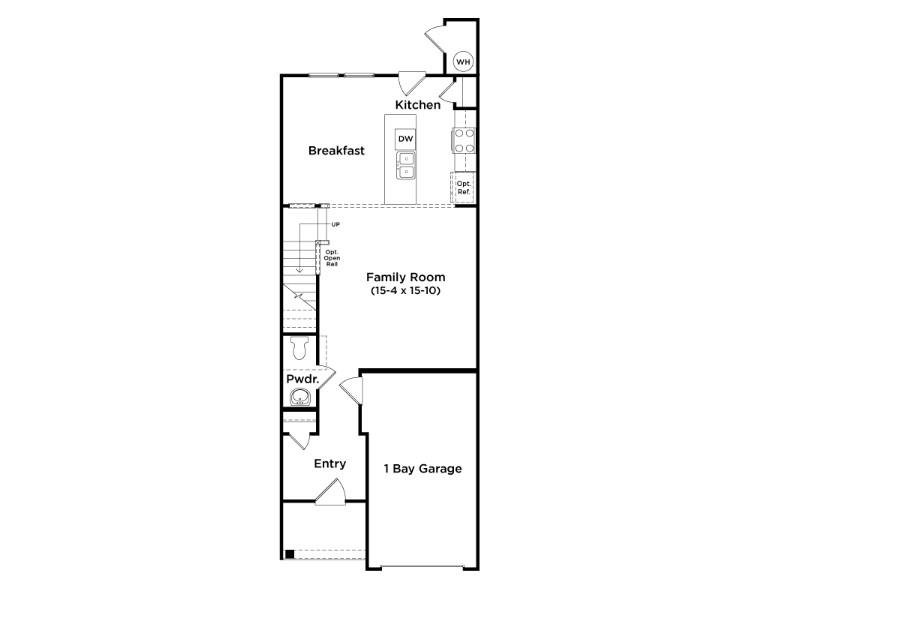
All homes feature the move-in package boasting a refrigerator, washer, dryer, dishwasher, microwave, in-sink disposal and white faux wood blinds. With over 1,600 sq ft across two levels, this stylish modern home offers a welcoming foyer leading into a light-filled open floorplan. The kitchen centers on a large island and connects seamlessly to the living and dining areas—perfect for entertaining.
Features of the kitchen include light grey cabinetry, Quartz countertops, tiled backsplash, and stainless steel appliances including a gas range/oven and refrigerator! The patio off the kitchen allows for outdoor living and also offers extra storage in the outdoor closet. Up the Oak staircase you will find 3 generous bedrooms and 2 baths, including a luxurious Primary suite with walk-in closet and spa-like bath with double sinks and step in shower with glass door.
SPN MLS # 334154
Quick Facts
Time on Site
18 days ago
Property Type
Residential
Year Built
2026
Lot Size
1,742 sqft
Price/Sq.Ft.
$145
Property Details
Schools
Features & Amenities
Features:
- Cable Available
- Ceilings-Some 9 Ft +
- Attic Stairs Pulldown
- Walk-In Closet(s)
- Ceiling - Smooth
- Solid Surface Counters
- Open Floorplan
- Split Bedroom Plan
- Pantry
- Smart Home
Location & Map
Map View
Loading map...
Additional Information
Basement
Security
- Smoke Detector(s)
Community
- Street Lights
- Lawn
- Dog Park
Lot & Land
- Level
Primary Suite
- Bath - Full
- Double Vanity
- Owner on 2nd level
- Shower Only
- Walk-in Closet
Interior Details
- Carpet
- Luxury Vinyl
- Dishwasher
- Disposal
- Dryer
- Microwave
- Gas Oven
- Self Cleaning Oven
- Gas Range
- Range
- Refrigerator
- Washer
- Tilt-Out
- 2nd Floor
- Laundry Closet
- Electric Dryer Hookup
- Cable Available
- Ceilings-Some 9 Ft +
- Attic Stairs Pulldown
- Walk-In Closet(s)
- Ceiling - Smooth
- Solid Surface Counters
- Open Floorplan
- Split Bedroom Plan
- Pantry
- Smart Home
New Construction
Parking & Garage
- Attached
- Garage Door Opener
Exterior Features
- Architectural
- Garage
- Other/See Remarks
- Extra Pad
- Paved
- Slab
- Vinyl Siding
- Patio
- Porch
H O A & Association
- Lawn Service
- Street Lights
Property Overview
- Two
- Craftsman
Utilities & Systems
- Public Sewer
- Central Air
- Forced Air
- Public


