




$293,000
7016 Maria Eden Road
Lincolnville, SC 29485
About This Property
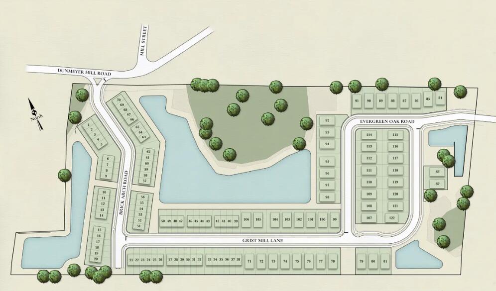
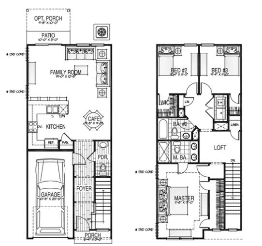
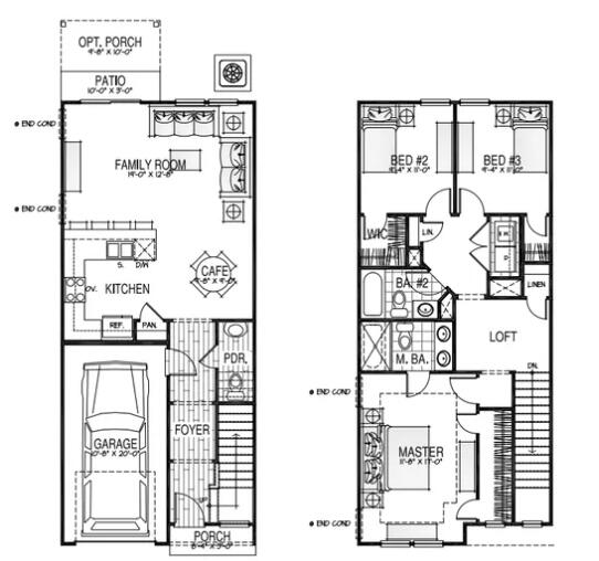
End Unit!! Brand new, under construction, the Foster II Plan offers a versatile open floor plan with a large kitchen peninsula, separate dining area, and an open living area, ideally situated for entertaining. Unwind in the spacious primary suite with its naturally lit walk-in closet and owners en-suite .
A covered patio, second story laundry, spacious foyer, finished garage, and so much more are included in the AWARD WINNING Foster II floor plan. Home includes walk-in shower in the primary bathroom, tile flooring in primary and secondary bathrooms, upgraded white kitchen cabinets and quartz countertops and much more!All lawn maintenance and power washing will be taken care of by the HOA.
This is a great opportunity to get into a brand new homebefore the prices go up! For a limited time, all Samsung base appliances are included!
Quick Facts
Time on Site
3 months ago
Property Type
Residential
Year Built
2026
Lot Size
871 sqft
Property Details
Schools
Features & Amenities
Location & Map
Map View
Loading map...
Additional Information
Lot And Land
Agent Contacts
Green Features
Community & H O A
Room Dimensions
Property Details
Exterior Features
Interior Features
Systems & Utilities
Financial Information
Additional Information
- IDX
- -80.152043
- 33.007804
- Slab


