




$255,000
631 Glacier Road
About This Property
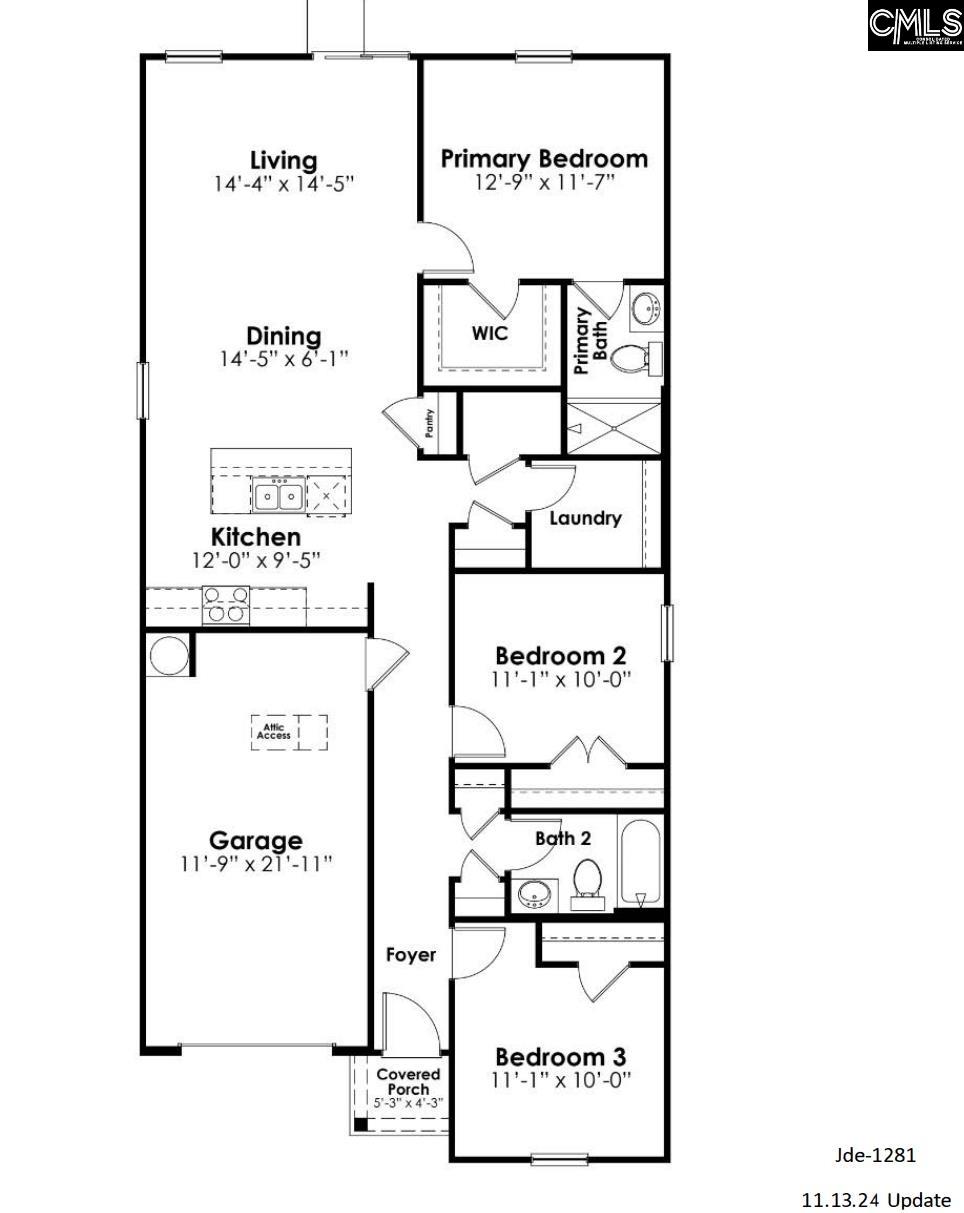
Welcome to the Devon at 631 Glacier Road! The Devon at Ferry Grove welcomes you with a warm, inviting single-story design that perfectly balances comfort and style. From the moment you step inside, the open-concept layout creates an easy flow that feels both spacious and welcoming.
Featuring 3 bedrooms and 2 full bathrooms, this floorplan is ideal for many different stages of life. The spacious living area flows seamlessly into the dining space and kitchen, creating an inviting environment for everyday living and entertaining. The kitchen offers lots of counter space, a floating island, quartz countertops, and easy access to the eat-in dining area.
A private primary suite is tucked away from the secondary bedrooms and includes a walk-in closet and an en-suite bath for added comfort and privacy. The Devon also includes a one-car garage and 2 secondary bedrooms that share a full bath, perfect for guests or home office flexibility. With its smart use of space, single-level living, and desirable layout, this Ferry Grove home appeals to buyers searching for new construction, energy-efficient homes, and functional floorplans in a peaceful neighborhood setting.
COL MLS # 624941
Quick Facts
Time on Site
2 months ago
Property Type
Residential
Year Built
2026
Lot Size
9,147 sqft
Price/Sq.Ft.
$199
Property Details
Schools
Features & Amenities
Location & Map
Map View
Loading map...
Additional Information
Lot & Land
Room Details
- Eat In
- Island
- Pantry
- Floors-Vinyl
- Cabinets-Painted
- Counter Tops-Quartz
Miscellaneous
Primary Suite
- Bath-Private
- Closet-Walk in
- Closet-Private
- Floors - Carpet
Interior Details
- Free-standing
- Gas
- Dishwasher
- Microwave Above Stove
- Tankless H20
- Gas Water Heater
Parking & Garage
- Garage Attached
- Front Entry
Exterior Features
- Brick-Partial-AbvFound
- Vinyl
H O A & Association
- Common Area Maintenance
- Playground
- Pool
- Green Areas
Property Overview
Utilities & Systems
Listing Agent Information
Details provided by Consolidated MLS and may not match the public record. Learn more. The information is being provided by Consolidated Multiple Listing Service, Inc. Information deemed reliable but not guaranteed. Information is provided for consumers' personal, non-commercial use, and may not be used for any purpose other than the identification of potential properties for purchase. © 2025 Consolidated Multiple Listing Service, Inc. All Rights Reserved.
