




$255,382
3376 Matrim Way
Lexington, SC 29073
About This Property
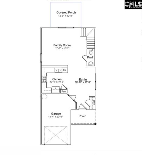
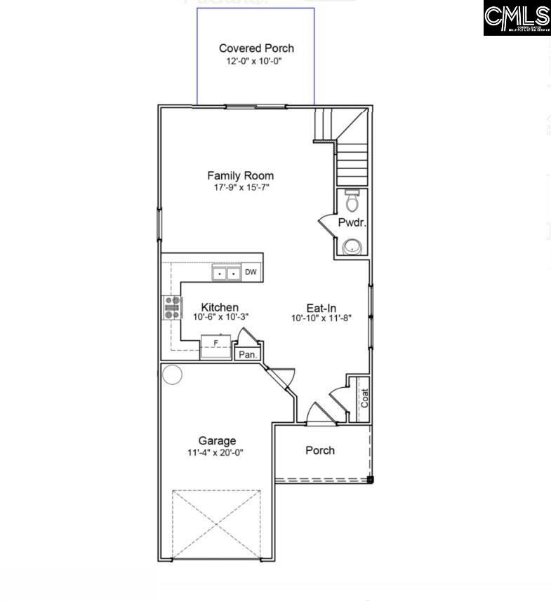
***UP TO $8,500 IN CLOSING COSTS WITH PARTNER LENDER AND ATTORNEY* *Experience a luxurious lifestyle in Bluefield—the only community in Lexington with a lazy river! This two-story Bartow features three bedrooms and two-and-one-half bathrooms. Just off the entryway, an eat-in area leads into the kitchen and great room, creating an open and inviting space.
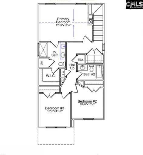
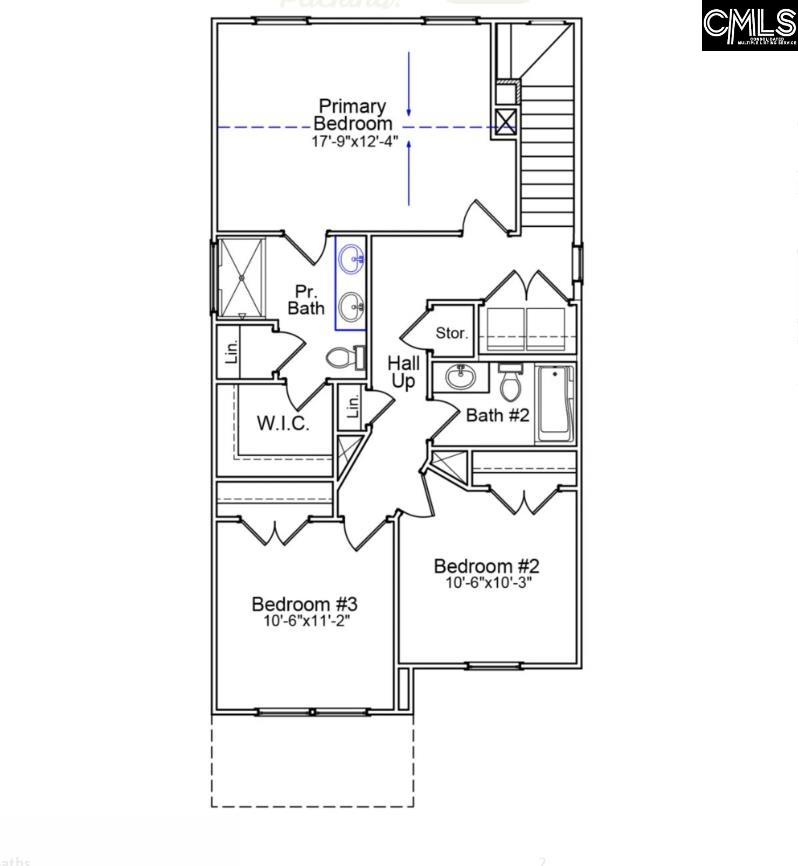
Outside, you'll find a covered porch—perfect for relaxing or entertaining. Upstairs, the laundry room is conveniently located near the bedrooms, with storage and linen closets available in the hallway. The primary bedroom includes a walk-in closet and a primary bathroom with a large shower.
Call today for more information! Disclaimer: CMLS has not reviewed and, therefore, does not endorse vendors who may appear in listings.
COL MLS # 623705
Quick Facts
Time on Site
4 months ago
Property Type
Residential
Year Built
2025
Lot Size
5,227 sqft
Price/Sq.Ft.
$173
Property Details
Schools
Features & Amenities
Features:
- Smoke Detector
- Attic Pull-Down Access
Location & Map
Map View
Loading map...
Additional Information
Lot & Land
Room Details
- Eat In
- Island
- Counter Tops-Granite
- Recessed Lights
- Floors-Luxury Vinyl Plank
Miscellaneous
- Cable TV Available
- Community Pool
- Warranty (New Const) Bldr
Primary Suite
- Double Vanity
- Separate Shower
- Closet-Private
Interior Details
- Dishwasher
- Disposal
- Dryer
- Refrigerator
- Washer
- Microwave Above Stove
- Tankless H20
- Smoke Detector
- Attic Pull-Down Access
Parking & Garage
- Garage Attached
- Front Entry
Exterior Features
- Patio
- Sprinkler
- Front Porch - Covered
- Brick-Partial-AbvFound
- Vinyl
H O A & Association
- Common Area Maintenance
- Playground
- Pool
- Street Light Maintenance
Property Overview
Utilities & Systems
- Central
- Split System
- Zoned
- Gas 1st Lvl
- Gas 2nd Lvl
- Split System
- Zoned
Listing Agent Information
Details provided by Consolidated MLS and may not match the public record. Learn more. The information is being provided by Consolidated Multiple Listing Service, Inc. Information deemed reliable but not guaranteed. Information is provided for consumers' personal, non-commercial use, and may not be used for any purpose other than the identification of potential properties for purchase. © 2025 Consolidated Multiple Listing Service, Inc. All Rights Reserved.


