




$339,879
1119 Nazareth Road
Lexington, SC 29073
About This Property
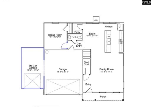
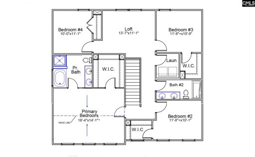
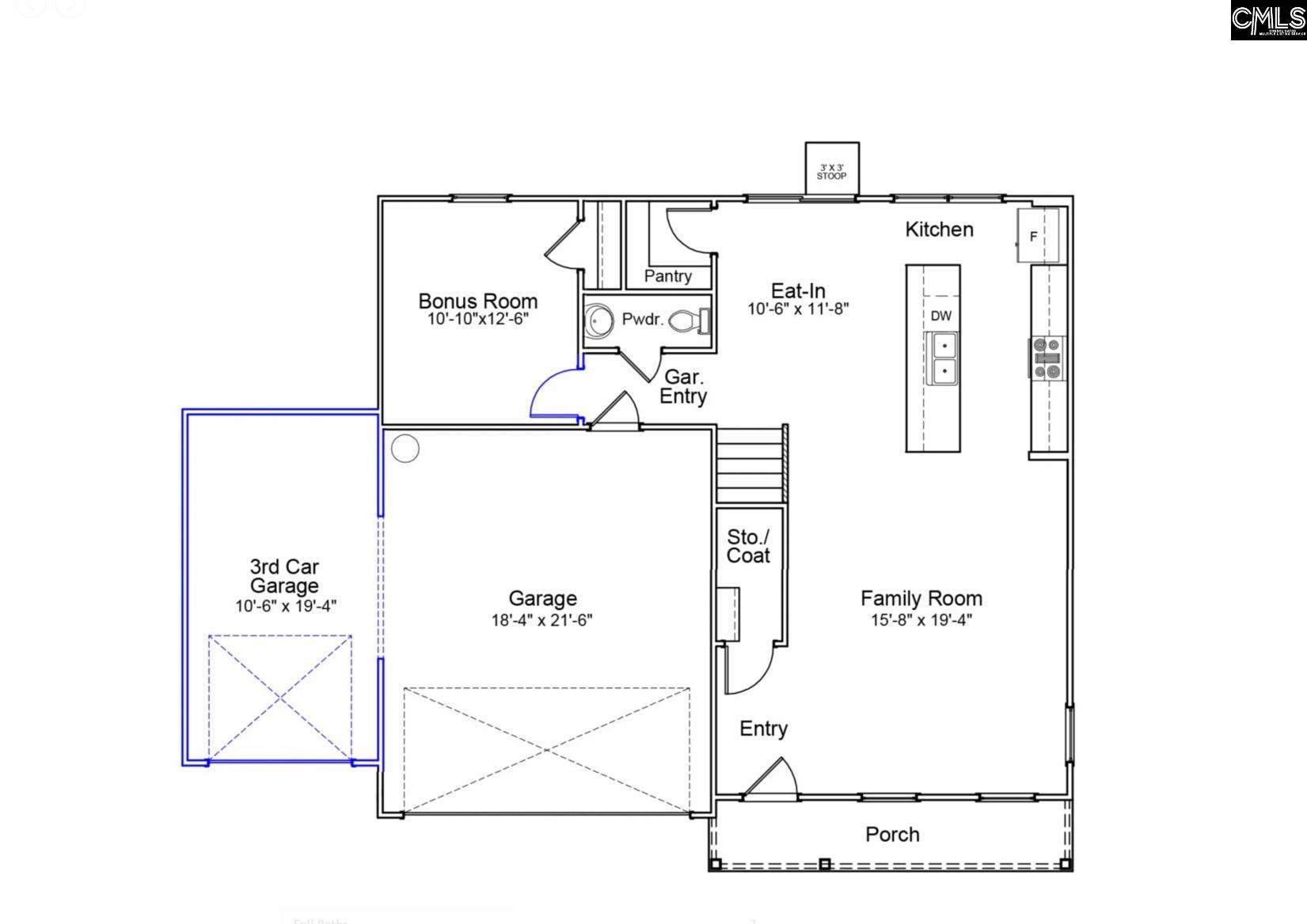
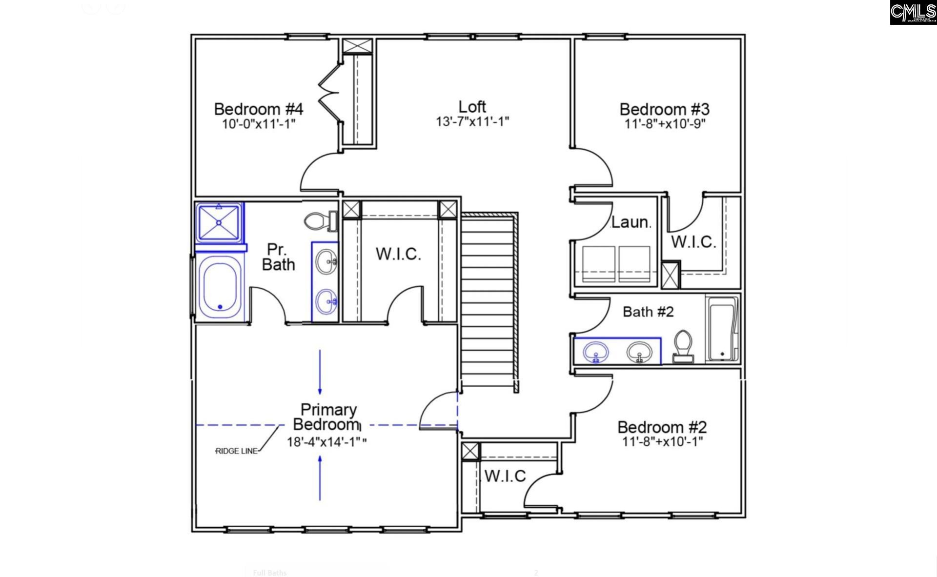
Welcome to Nazareth, Lexington’s exclusive three-car garage community, featuring some of the largest homesites in the area. This two-story McDowell floor plan offers four bedrooms and two-and-a-half bathrooms. Just inside the entryway, the great room flows seamlessly into the kitchen and eating area, where you’ll enjoy a large island that opens to the great room and eat-in space.
An additional area behind the eating space has been converted into a bonus room, making it a great option for formal dining or a home office. Upstairs, three secondary bedrooms—two with walk-in closets—share a full bathroom, along with a conveniently located laundry room. The primary bedroom connects to a spacious primary bathroom with walk-in linen and clothes closets and features a tiled separate tub and shower, creating a luxurious retreat to unwind after a long day.
Step outside to enjoy your spacious lot from the back patio, and call for more information. *$8500 in closing costs available when using partner lender and preferred attorney* Disclaimer: CMLS has not reviewed and, therefore, does not endorse vendors who may appear in listings.
COL MLS # 625109
Quick Facts
Time on Site
3 months ago
Property Type
Residential
Year Built
2026
Lot Size
32,234 sqft
Price/Sq.Ft.
$152
Property Details
Schools
Features & Amenities
Features:
- Ceiling Fan
- Smoke Detector
- Attic Pull-Down Access
Location & Map
Map View
Loading map...
Additional Information
Laundry
Lot & Land
Room Details
- Island
- Counter Tops-Quartz
- Floors-Luxury Vinyl Plank
- Bonus-Finished
- Loft
Miscellaneous
- Cable TV Available
- Warranty (New Const) Bldr
Primary Suite
- Double Vanity
- Tub-Garden
- Separate Shower
- Ceilings-Box
- Closet-Private
- Separate Water Closet
- Floors-Luxury Vinyl Plank
Interior Details
- Self Clean
- Smooth Surface
- Dishwasher
- Disposal
- Electric Water Heater
- Ceiling Fan
- Smoke Detector
- Attic Pull-Down Access
Parking & Garage
- Garage Attached
- Front Entry
Exterior Features
H O A & Association
Property Overview
Utilities & Systems
- Central
- Zoned
- Electric
- Heat Pump 2nd Lvl
- Split System
- Zoned
Listing Agent Information
Details provided by Consolidated MLS and may not match the public record. Learn more. The information is being provided by Consolidated Multiple Listing Service, Inc. Information deemed reliable but not guaranteed. Information is provided for consumers' personal, non-commercial use, and may not be used for any purpose other than the identification of potential properties for purchase. © 2025 Consolidated Multiple Listing Service, Inc. All Rights Reserved.


