




$360,764
1111 Nazareth Road
Lexington, SC 29073
About This Property
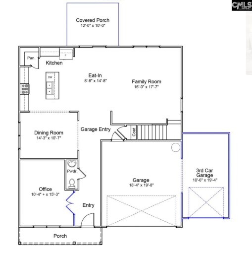
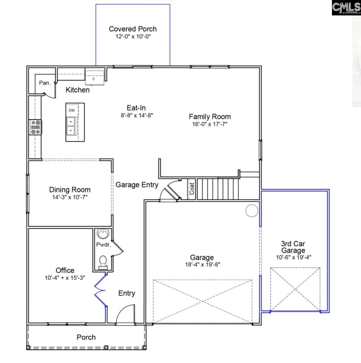
Welcome to Nazareth, Lexington’s exclusive three-car garage community, featuring some of the largest homesites in the area. This two-story Telfair features four bedrooms and two and a half bathrooms, with a covered porch in the back overlooking a .7-acre homesite.
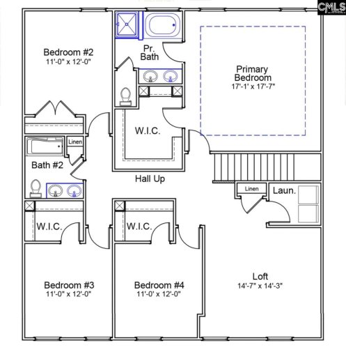
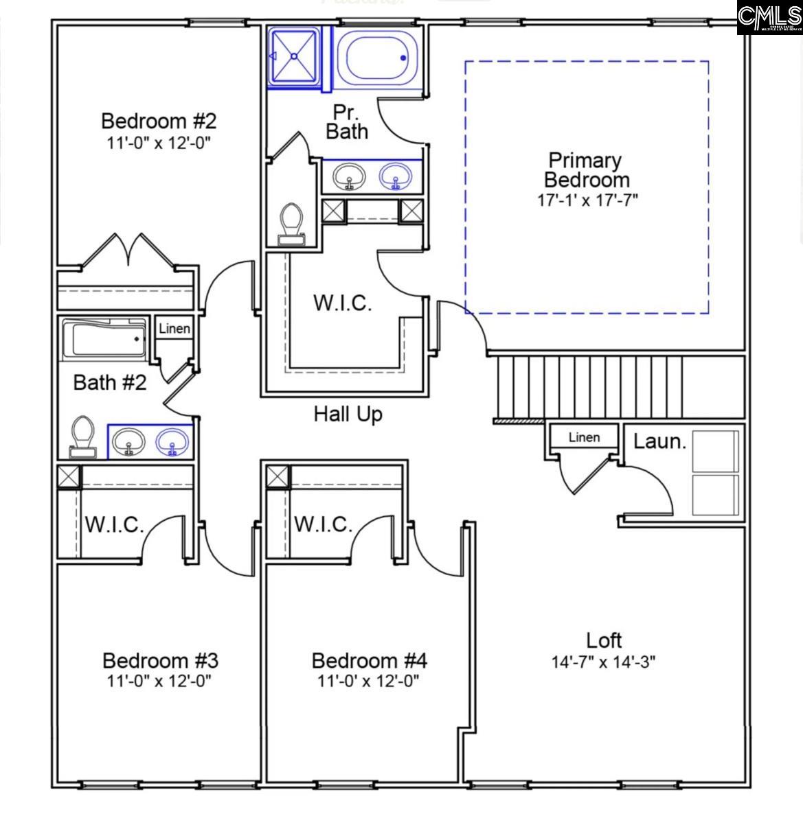
An office is located toward the front of the home, adjacent to a formal dining area. The kitchen includes a spacious pantry and a large island that opens to the great room. Upstairs, the primary bedroom offers a roomy walk-in closet and an en-suite bathroom with a separate tiled tub and shower, dual vanities, and a private water closet.
Three additional bedrooms share a full bathroom, and a loft provides extra living space. Call today for more information on the Telfair! may appear in listings.
COL MLS # 625110
Quick Facts
Time on Site
3 months ago
Property Type
Residential
Year Built
2026
Lot Size
30,491 sqft
Price/Sq.Ft.
$130
Property Details
Schools
Features & Amenities
Features:
- Smoke Detector
- Attic Pull-Down Access
Location & Map
Map View
Loading map...
Additional Information
Lot & Land
Room Details
- Island
- Counter Tops-Quartz
- Floors-Luxury Vinyl Plank
- Bonus-Finished
- Office
Primary Suite
- Double Vanity
- Tub-Garden
- Separate Shower
- Ceilings-Box
- Closet-Private
- Separate Water Closet
- Floors-Luxury Vinyl Plank
Interior Details
- Dishwasher
- Disposal
- Microwave Above Stove
- Electric Water Heater
- Smoke Detector
- Attic Pull-Down Access
Parking & Garage
- Garage Attached
- Front Entry
Exterior Features
- Front Porch - Covered
- Back Porch - Covered
- Stone
- Vinyl
H O A & Association
Property Overview
Utilities & Systems
- Central
- Zoned
- Electric
- Heat Pump 1st Lvl
- Heat Pump 2nd Lvl
- Split System
- Zoned
Listing Agent Information
Details provided by Consolidated MLS and may not match the public record. Learn more. The information is being provided by Consolidated Multiple Listing Service, Inc. Information deemed reliable but not guaranteed. Information is provided for consumers' personal, non-commercial use, and may not be used for any purpose other than the identification of potential properties for purchase. © 2025 Consolidated Multiple Listing Service, Inc. All Rights Reserved.


