




$378,003
1107 Nazareth Road
Lexington, SC 29073
About This Property
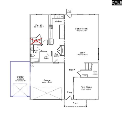
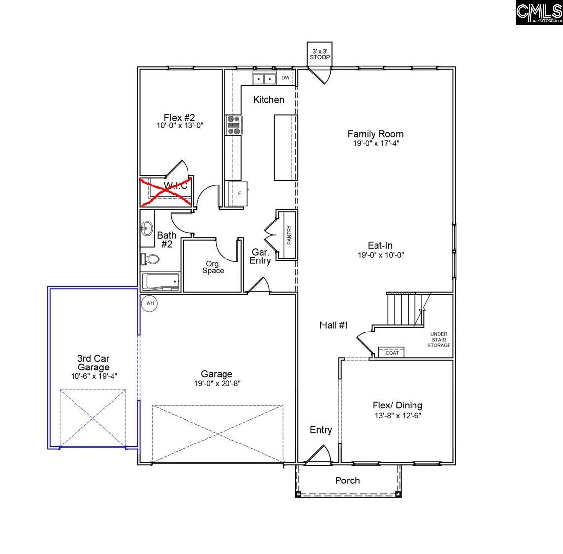
Welcome to Nazareth, Lexington's exclusive three-car garage community that sits on some of the largest homesites in the area! The Warren is a two-story plan featuring five bedrooms, three bathrooms, and a spacious loft. Immediately upon entry, you are greeted by an open flex/dining space that welcomes in natural light.
Further down the hallway is the open-concept eat-in area and great room that flows into the kitchen. There is also a flex room downstairs! Upstairs, the primary suite features a walk-in closet, boxed ceiling, dual vanities, a tiled garden tub, and a separate shower.
Four additional bedrooms upstairs each include private walk-in closets and share a conveniently located full bathroom. All bedrooms can enjoy extra living space in the upstairs loft.**Photos shown are stock photos and may not reflect specific options in home being sold** *$8500 in closing costs available when using partner lender and preferred attorney* Disclaimer: CMLS has not reviewed and, therefore, does not endorse vendors who may appear in listings.
COL MLS # 625148
Quick Facts
Time on Site
3 months ago
Property Type
Residential
Year Built
2026
Lot Size
34,412 sqft
Price/Sq.Ft.
$113
Property Details
Schools
Features & Amenities
Features:
- Smoke Detector
- Attic Pull-Down Access
Location & Map
Map View
Loading map...
Additional Information
Laundry
Lot & Land
Room Details
- Eat In
- Island
- Cabinets-Stained
- Cabinets-Painted
- Recessed Lights
- Counter Tops-Quartz
- Floors-Luxury Vinyl Plank
- Bonus-Finished
- Office
Miscellaneous
- Cable TV Available
- Warranty (New Const) Bldr
Primary Suite
- Double Vanity
- Tub-Garden
- Separate Shower
- Ceilings-Box
- Closet-Private
- Separate Water Closet
- Floors-Luxury Vinyl Plank
Interior Details
- Dishwasher
- Disposal
- Microwave Above Stove
- Electric Water Heater
- Smoke Detector
- Attic Pull-Down Access
Parking & Garage
- Garage Attached
- Front Entry
Exterior Features
- Sprinkler
- Gutters - Full
- Front Porch - Covered
- Back Porch - Covered
- Brick-Partial-AbvFound
- Vinyl
H O A & Association
Property Overview
Utilities & Systems
- Central
- Zoned
- Electric
- Heat Pump 2nd Lvl
- Split System
- Zoned
Listing Agent Information
Details provided by Consolidated MLS and may not match the public record. Learn more. The information is being provided by Consolidated Multiple Listing Service, Inc. Information deemed reliable but not guaranteed. Information is provided for consumers' personal, non-commercial use, and may not be used for any purpose other than the identification of potential properties for purchase. © 2025 Consolidated Multiple Listing Service, Inc. All Rights Reserved.


