




$395,914
1103 Nazareth Road
Lexington, SC 29073
About This Property
Welcome to Nazareth, Lexington's newest community with large lots, beautiful homes, and an exceptional location. The Durham II is a MAINLY one-story home featuring four bedrooms and three bathrooms. The kitchen is open to the great room and eat-in, and includes an island with breakfast bar.
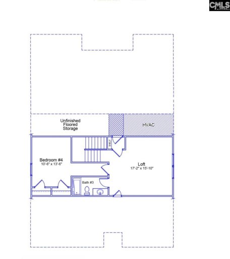
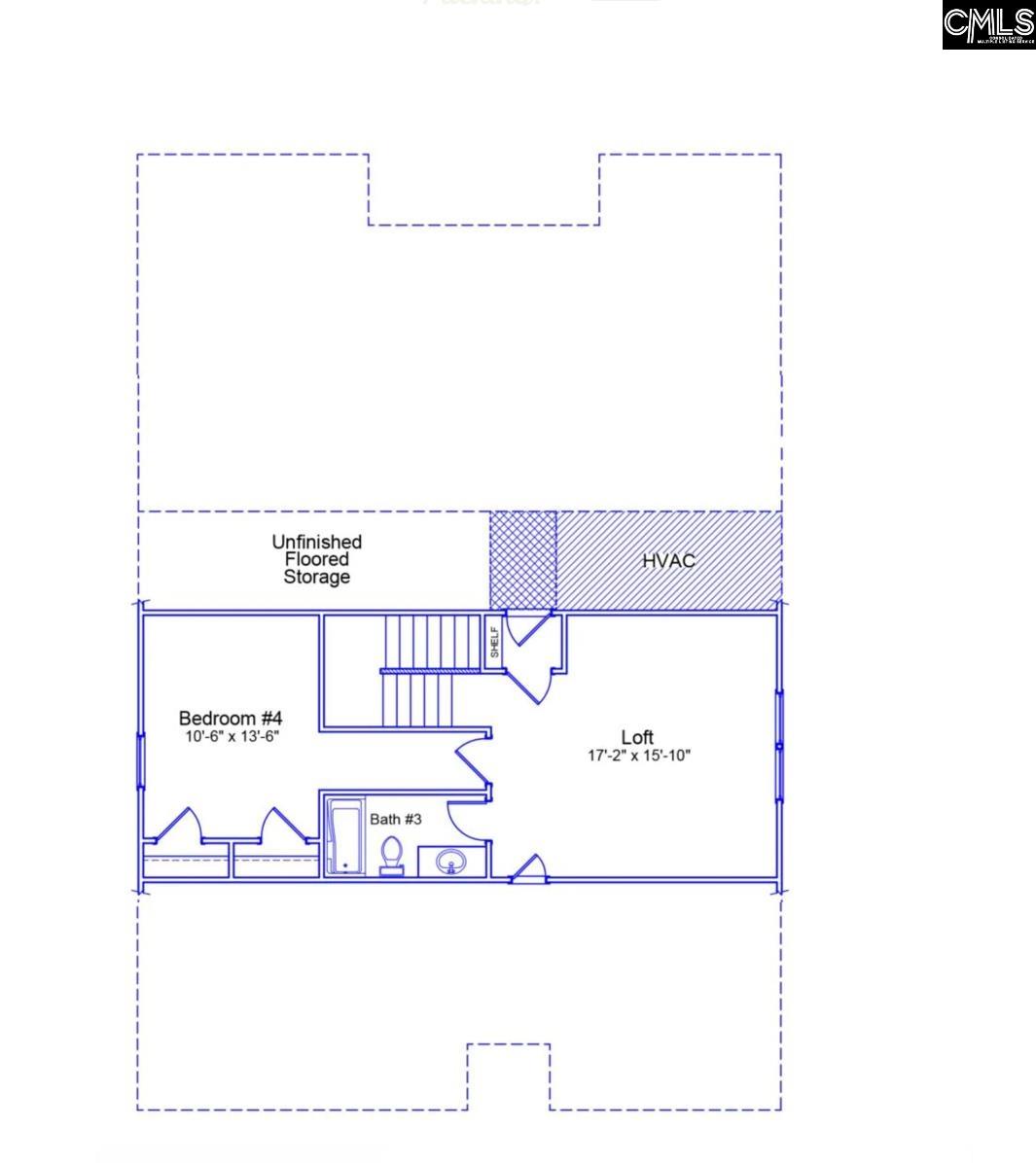
The primary suite is just off the great room and features a linen closet, water closet, and large walk-in closet. Two secondary bedrooms are located at the front of the home and each have a walk-in closet. An upstairs guest room has a private closet and ensuite bathroom with a loft for a roomy second living area!
The garage entry is tucked away with a conveniently located coat closet, giving easy access to the full garage and third bay. A covered porch has been added in back for enjoying those nice Carolina evenings. Call for more information!
COL MLS # 625162
Quick Facts
Time on Site
3 months ago
Property Type
Residential
Year Built
2026
Lot Size
33,541 sqft
Price/Sq.Ft.
$166
Property Details
Schools
Features & Amenities
Features:
- Smoke Detector
- Attic Pull-Down Access
Location & Map
Map View
Loading map...
Additional Information
Fireplace
Lot & Land
Room Details
- Island
- Counter Tops-Quartz
- Floors-Luxury Vinyl Plank
Miscellaneous
- Cable TV Available
- Warranty (New Const) Bldr
Primary Suite
- Double Vanity
- Separate Shower
- Ceilings-Box
- Closet-Private
- Separate Water Closet
- Floors-Luxury Vinyl Plank
Interior Details
- Self Clean
- Smooth Surface
- Dishwasher
- Disposal
- Microwave Countertop
- Electric Water Heater
- Smoke Detector
- Attic Pull-Down Access
Parking & Garage
- Garage Attached
- Front Entry
Exterior Features
- Sprinkler
- Gutters - Partial
- Front Porch - Covered
- Back Porch - Covered
- Stone
- Vinyl
H O A & Association
Property Overview
Utilities & Systems
- Central
- Zoned
- Electric
- Heat Pump 2nd Lvl
- Split System
- Zoned
Listing Agent Information
Details provided by Consolidated MLS and may not match the public record. Learn more. The information is being provided by Consolidated Multiple Listing Service, Inc. Information deemed reliable but not guaranteed. Information is provided for consumers' personal, non-commercial use, and may not be used for any purpose other than the identification of potential properties for purchase. © 2025 Consolidated Multiple Listing Service, Inc. All Rights Reserved.


