




$402,365
1091 Nazareth Road
Lexington, SC 29073
About This Property
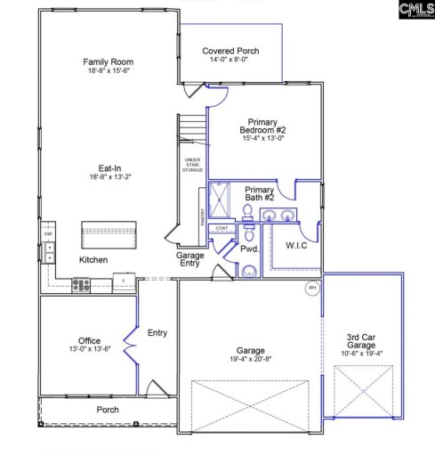
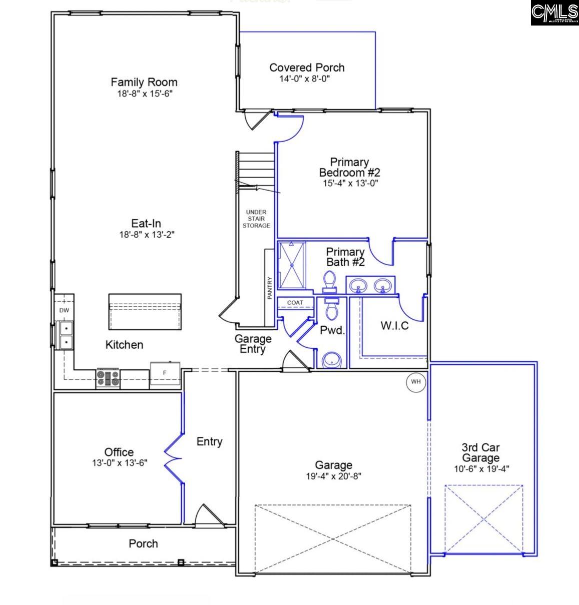
Welcome to Nazareth, Lexington's exclusive three-car garage community that sits on some of the largest homesites in the area! The Wilkinson is a two-story plan featuring five bedrooms, and three and one-half bathrooms. Immediately upon entry, you are greeted by an office space.
Further down the hallway, you will find the open concept kitchen, eat-in and great room. Upstairs, the second primary suite features a walk-in closet and boxed ceiling, dual vanities, and tiled separate tub and shower. There are four additional bedrooms upstairs that all feature private walk-in closets.
Two of the bedrooms share access to a Jack and Jill bathroom, and there is an additional full bathroom convenient to the other two bedrooms. A loft space sits upstairs for even more living space. We've added a roomy covered porch out back for enjoying the cool Carolina nights!
COL MLS # 625151
Quick Facts
Time on Site
3 months ago
Property Type
Residential
Year Built
2026
Lot Size
35,719 sqft
Price/Sq.Ft.
$120
Property Details
Schools
Features & Amenities
Features:
- Smoke Detector
- Attic Pull-Down Access
Location & Map
Map View
Loading map...
Additional Information
Lot & Land
Room Details
- Island
- Counter Tops-Quartz
- Floors-Luxury Vinyl Plank
Primary Suite
- Double Vanity
- Tub-Garden
- Separate Shower
- Ceilings-Box
- Closet-Private
- Separate Water Closet
- Floors-Luxury Vinyl Plank
Interior Details
- Smoke Detector
- Attic Pull-Down Access
Parking & Garage
- Garage Attached
- Front Entry
Exterior Features
Property Overview
Utilities & Systems
- Central
- Zoned
- Electric
- Heat Pump 2nd Lvl
- Split System
- Zoned
Listing Agent Information
Details provided by Consolidated MLS and may not match the public record. Learn more. The information is being provided by Consolidated Multiple Listing Service, Inc. Information deemed reliable but not guaranteed. Information is provided for consumers' personal, non-commercial use, and may not be used for any purpose other than the identification of potential properties for purchase. © 2025 Consolidated Multiple Listing Service, Inc. All Rights Reserved.


