




$349,000
1079 Nazareth Road
Lexington, SC 29073
About This Property
Welcome to Nazareth, Lexington's exclusive three-car garage community that sits on some of the largest homesites in the area! The Gwinnett II is a one-and-a-half-story home featuring four bedrooms and two bathrooms. The kitchen is open to the great room and eat-in area and features an island with breakfast bar, as well as a spacious pantry.
The primary suite is located just off the great room and includes a large walk-in closet, two linen closets in the bathroom, and a water closet. This specific home offers an added feature—a snore room! The snore room connects to the primary bathroom and could be used as a nursery, second sleeping area, or bedroom.
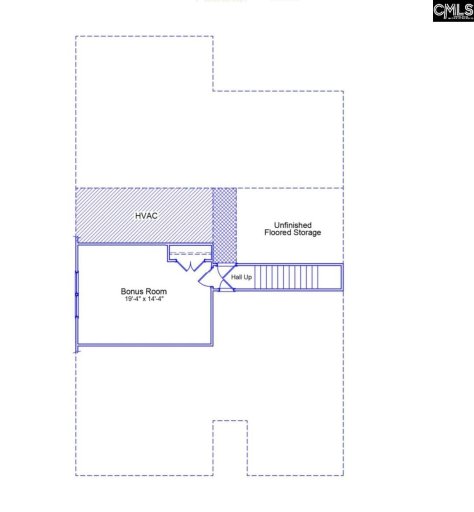
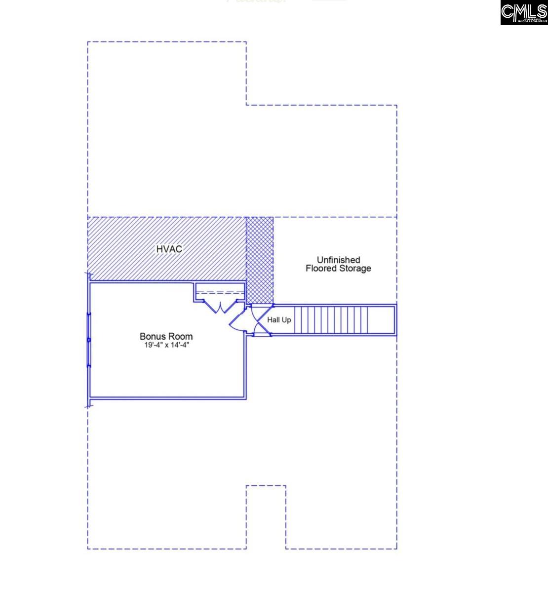
Upstairs is a finished bonus room which can be used as a 4th bedroom. Outside, a patio awaits! Call for more info.
COL MLS # 625160
Quick Facts
Time on Site
3 months ago
Property Type
Residential
Year Built
2026
Lot Size
27,878 sqft
Price/Sq.Ft.
$141
Property Details
Schools
Features & Amenities
Features:
- Smoke Detector
- Attic Pull-Down Access
Location & Map
Map View
Loading map...
Additional Information
Lot & Land
Room Details
- Island
- Counter Tops-Quartz
- Floors-Luxury Vinyl Plank
Miscellaneous
- Cable TV Available
- Warranty (Home 12-month)
Primary Suite
- Double Vanity
- Separate Shower
- Ceilings-Box
- Closet-Private
- Separate Water Closet
- Floors-Luxury Vinyl Plank
Interior Details
- Smoke Detector
- Attic Pull-Down Access
Parking & Garage
- Garage Attached
- Front Entry
Exterior Features
- Patio
- Sprinkler
- Brick-Partial-AbvFound
- Vinyl
H O A & Association
Property Overview
Utilities & Systems
- Central
- Zoned
- Electric
- Heat Pump 2nd Lvl
- Split System
- Zoned
Listing Agent Information
Details provided by Consolidated MLS and may not match the public record. Learn more. The information is being provided by Consolidated Multiple Listing Service, Inc. Information deemed reliable but not guaranteed. Information is provided for consumers' personal, non-commercial use, and may not be used for any purpose other than the identification of potential properties for purchase. © 2025 Consolidated Multiple Listing Service, Inc. All Rights Reserved.


