




$315,000
104 Katmai Court
Lexington, SC 29073
About This Property
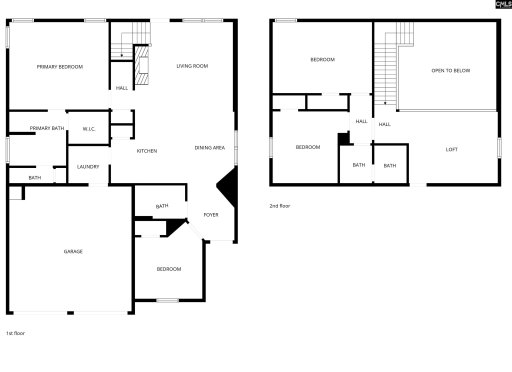
This beautifully maintained home is in an up and coming area of Lexington. Built as a unique and limited floor plan with 4 bedrooms and 3 full baths, making it a standout opportunity in a neighborhood. This property offers a rare combination of design, functionality, and charm.
As you enter through the front door, you’re welcomed into a bright, open-concept floor plan that seamlessly connects the kitchen, dining area, and living room. The kitchen showcases stained cabinetry and flows effortlessly into the great room with vaulted ceilings, where a cozy gas fireplace creates an inviting gathering space. The primary suite, conveniently located on the main level, offers a private retreat complete with double vanities, a relaxing garden tub, a separate shower and a walk-in closet.
Additional features include a water closet and a linen closet for added convenience. Also on the main floor is the laundry room and a secondary bedroom with a nearby full bathroom. Upstairs, you’ll find an open loft, two additional bedrooms as well as a shared full bathroom featuring double vanities.
COL MLS # 630418
Quick Facts
Time on Site
16 days ago
Property Type
Residential
Year Built
2014
Lot Size
7,840 sqft
Price/Sq.Ft.
$158
Property Details
Schools
Features & Amenities
Location & Map
Map View
Loading map...
Additional Information
Fireplace
Lot & Land
Room Details
- Fireplace
- Ceiling-Vaulted
- Ceiling Fan
Primary Suite
- Double Vanity
- Tub-Garden
- Bath-Private
- Closet-Walk in
- Tub-Shower
- Separate Water Closet
Parking & Garage
- Garage Attached
- Front Entry
Exterior Features
- Privacy Fence
- Rear Only Wood
Property Overview
Utilities & Systems
- Central
- Gas 1st Lvl
Listing Agent Information
Details provided by Consolidated MLS and may not match the public record. Learn more. The information is being provided by Consolidated Multiple Listing Service, Inc. Information deemed reliable but not guaranteed. Information is provided for consumers' personal, non-commercial use, and may not be used for any purpose other than the identification of potential properties for purchase. © 2025 Consolidated Multiple Listing Service, Inc. All Rights Reserved.


