




$690,000
5366 Low Country Road 822
Lenoir, NC 28645
About This Property
This Property Has Been Sold
This property sold 6 months ago and is no longer available for purchase.
View active listings in The Coves Mountain River Club →This thoughtfully crafted home design brings together modern comforts and classic craftsmanship. With vaulted ceilings, a striking two-way fireplace, and a wraparound porch, it invites cozy gathering spaces and panoramic views of your hardwood forest.
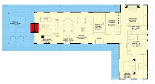
Enjoy the balance of a compact footprint (1,709 sqft.) with purposeful covered outdoor living area(1020 sqft.) and a covered parking area with extra storage space for your outdoor games and activities. Function-packed with a mudroom, butler pantry, and flexible layout — it's efficient and entertaining-ready.
Located in the heart of The Coves Mountain River Club, a private, amenity-rich mountain community in Western North Carolina. The property highlights a close proximity to the community lodge, with pool, fitness area, billiards, ping pong, and foosball tables and a ton of community gatherings. Set on beautiful 2.7 wooded acres offering privacy, mature trees, a natural spring fed creek, all in a serene mountain setting. Ideal for nature lovers and those seeking a tranquil retreat.
CAR MLS # 286027721
Quick Facts
Time on Site
9 months ago
Property Type
Residential
Year Built
2026
Price/Sq.Ft.
$404
Property Details
Schools
Features & Amenities
Location & Map
Address
5366 Low Country Road 822, Lenoir, NC 28645
Community
The Coves Mountain River Club
Map View
Loading map...
Additional Information
Utilities
- Septic Installed
- Electricity Connected
- Fiber Optics
- Well
Lot And Land
- Rolling Slope
- Creek/Stream
- Wooded
Agent Contacts
- Palmetto Park Realty Team Fort Mill: 803.548.6123
Interior Details
- ENERGY STAR Qualified Equipment
- Mud Room
- Living Room
- Outside
- Porch
Exterior Features
- Aluminum
- Architectural Shingle
- Cedar Shake
- Fiber Cement
- Stone
- Stone Veneer
Parking And Garage
- Detached Carport
Financial Information
Dwelling And Structure
- Arts and Crafts
- Cabin
- Contemporary
- Modern
- Post and Beam
- Ranch
Basement And Foundation
- Crawl Space
Zoning And Restrictions
Square Footage And Levels
- One
Additional C A R Information
IDX information is provided exclusively for consumers' personal, non-commercial use only; it may not be used for any purpose other than to identify prospective properties consumers may be interested in purchasing. Data is deemed reliable but is not guaranteed accurate by the MLS GRID. Use of this site may be subject to an end user license agreement. Based on information submitted to the MLS GRID as of Fri, Dec 5, 2025. All data is obtained from various sources and may not have been verified by broker or MLS GRID. Supplied Open House Information is subject to change without notice. All information should be independently reviewed and verified for accuracy. Properties may or may not be listed by the office/agent presenting the information. Some IDX listings have been excluded from this website. Any use by you of search facilities of data on the site, other than by a consumer looking to purchase real estate, is prohibited. DMCA Notice: Palmetto Park Realty respects the intellectual property rights of others. If you believe that your work has been copied in a way that constitutes copyright infringement, please provide our designated agent with written notice containing the following information: (1) identification of the copyrighted work claimed to have been infringed; (2) identification of the material that is claimed to be infringing; (3) your contact information; (4) a statement that you have a good faith belief that use of the material is not authorized; and (5) a statement that the information in the notification is accurate and you are authorized to act on behalf of the copyright owner. Please send DMCA notices to: [email protected]
You Might Also Like...
Interested in selling in The Coves Mountain River Club?