




$677,900
1387 River Club Ridge
Lenoir, NC 28645
About This Property
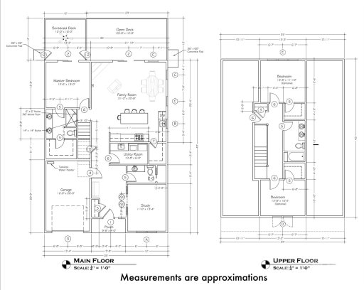
New construction 3 Bedroom 2-1/2 bath home with fantastic long range views, at The Coves Mountain River Club. Built by Moss Marlow Building Co. The Cottages at The Coves is a cluster of 12 patio homes, located just below the clubhouse. This home is one of two remaining lots at The Cottages. Ensuite Primary Bedroom and laundry on main level. Open concept living room and kitchen with beautiful stone fireplace and a large kitchen island. The screened porch is a sweet spot to relax and take in views across the valley to mountains beyond. Upstairs, 2 BR, 1 BA. Enjoy views from anywhere in the home, including the screened porch and large concrete deck facing the dramatic views. Lawn maintenance at The Cottages is included with your annual HOA fee. Walk to the clubhouse, only 400 yards away via Overlook trail. The Coves is a 3,200 acre gated community in the Blue Ridge Mountains of North Carolina. There are miles of community exclusive trails to hike, bike, ride horses, or UTVs. There are 5 miles of frontage on the Johns River, with areas to put in and take out your kayak, wade and fish, picnic, or gather round a stone fire pit. The crown jewel of The Coves is the magnificent post and beam constructed clubhouse, Pisgah Lodge, located on one of the highest peaks. There, you'll enjoy a saline pool, fitness center, locker rooms, full kitchen, lending library, pool table, fire pits, wrap around porches, decks, and overlooks to take in 360º views of the Blue Ridge Mountains, South Mountains, and Brushy Mountains. The Coves is a Dark Sky Community, which minimizes light pollution and provides breathtaking star-gazing. Down by the river you can garden your private plot at the Community Garden or join your neighbors to care for and harvest the community cooperative vineyard. Pickle-ball and shuffleboard courts, putting green, and a picnic pavilion are located at another Coves's park, Wyatt's Landing. Additional amenities include 2 Equestrian Centers and a Dog Park. Join your neighbors for social events, excursions, hiking, travel, yoga. *500K acre Pisgah National Forest and the Wilson Creek Wild and Scenic River Area are across the road! 1.25 hour drive to Charlotte or Asheville, minutes to Lenoir, Blowing Rock, Morganton, and the Blue Ridge Parkway.
*****This home is the next to the last patio home build at The Coves. The last will be Lot C6, which is the same plan with the exception of a walkout basement instead of a second story. Lot C6 is also available - Canopy MLS # 4291006.
CAR MLS # 218564214
Quick Facts
Time on Site
2 years ago
Property Type
Residential
Year Built
2024
Price/Sq.Ft.
$329
Property Details
Schools
Features & Amenities
Features:
- Kitchen Island
- Open Floorplan
- Pantry
- Walk-In Closet(s)
- Walk-In Pantry
Location & Map
Map View
Loading map...
Additional Information
Utilities
- Shared Septic
- Cable Available
- Fiber Optics
- Propane
- Shared Well
Lot And Land
- Open Lot
- Views
- Barn
- Boarding Facilities
- Equestrian Facilities
- Hay Storage
- Horses Allowed
- Paddocks
- Pasture
- Riding Trail
- Round Pen
- Run in Shelter
- Stable(s)
- Tack Room
- Wash Rack
Pool And Spa
- Fenced
- In Ground
- Outdoor Pool
- Salt Water
Agent Contacts
- Palmetto Park Realty Team Fort Mill: 803.548.6123
Interior Details
- Central
- Heat Pump
- Pocket Doors
- Screen Door(s)
- Sliding Doors
- Laundry Room
- Sink
- Kitchen Island
- Open Floorplan
- Pantry
- Walk-In Closet(s)
- Walk-In Pantry
- Gas Log
- Great Room
- Propane
Exterior Features
- Architectural Shingle
- Hardboard Siding
- Stone Veneer
- Deck
- Front Porch
Parking And Garage
- Driveway
- Attached Garage
Waterfront And View
- Long Range
- Mountain(s)
- Year Round
- Paddlesport Launch Site - Community
Financial Information
Dwelling And Structure
- Cottage
- Traditional
- Concrete Construction
Basement And Foundation
- Slab
Zoning And Restrictions
Square Footage And Levels
- Two
Additional C A R Information
- Architectural Review
- Building
- Deed
- Livestock Restriction
- Manufactured Home Not Allowed
- Rental – See Restrictions Description
- Signage
- Square Feet
- Subdivision
- Coves owners may rent
- Short or long term
- To each other. Many property owners who do not yet have a home at The Coves or are building their home at The Coves
- Rent from other Coves home owners for vacations or during their home construction. Rentals to non- Coves property owners must be a lease on 1 year or more. Covenants & Restrictions and Architectural & Site Guildelines and Standards are available upon request.
IDX information is provided exclusively for consumers' personal, non-commercial use only; it may not be used for any purpose other than to identify prospective properties consumers may be interested in purchasing. Data is deemed reliable but is not guaranteed accurate by the MLS GRID. Use of this site may be subject to an end user license agreement. Based on information submitted to the MLS GRID as of Wed, Apr 29, 2026. All data is obtained from various sources and may not have been verified by broker or MLS GRID. Supplied Open House Information is subject to change without notice. All information should be independently reviewed and verified for accuracy. Properties may or may not be listed by the office/agent presenting the information. Some IDX listings have been excluded from this website. Any use by you of search facilities of data on the site, other than by a consumer looking to purchase real estate, is prohibited. DMCA Notice: Palmetto Park Realty respects the intellectual property rights of others. If you believe that your work has been copied in a way that constitutes copyright infringement, please provide our designated agent with written notice containing the following information: (1) identification of the copyrighted work claimed to have been infringed; (2) identification of the material that is claimed to be infringing; (3) your contact information; (4) a statement that you have a good faith belief that use of the material is not authorized; and (5) a statement that the information in the notification is accurate and you are authorized to act on behalf of the copyright owner. Please send DMCA notices to: [email protected]