



$284,000
324 Talbert Trail
Landrum, SC 29356
About This Property
This Property Has Been Sold
This property sold 8 months ago and is no longer available for purchase.
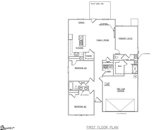
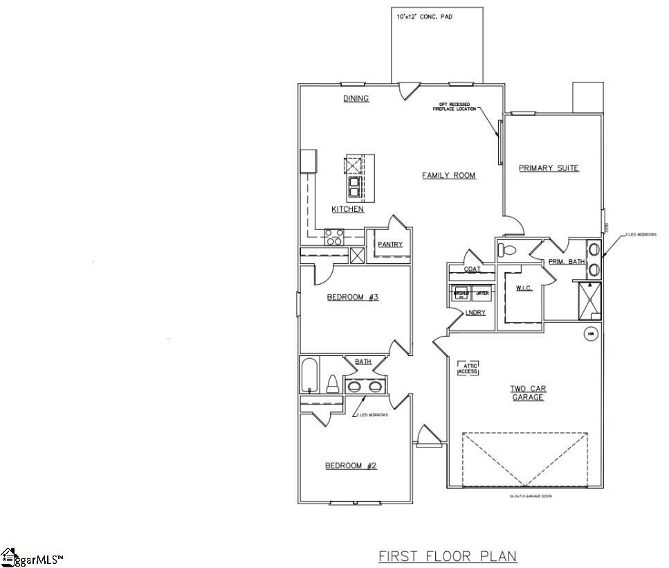
View active listings in Sherwood Gardens →UNDER CONSTRUCTION ** INCLUDED: James Hardi Fiber Cement front, vinyl sides and rear. Vinyl floors in foyer, extended foyer, kitchen, breakfast, and family room. Kitchen comes with recessed lighting pendent lights, 42” cabinets w/crown molding, Stainless Appliance Package with glass cooktop, garbage disposal & granite counters with single bowl sink.
Master bath includes tiled shower, free standing tub, dual sinks w/adult height vanity, Bluetooth LED Mirrors, granite countertops and tiled floor. Other features include: covered porch, ceiling fan in family room and owner suite, prewires in all bedrooms; Smart Home Features - Panel, Front door lock & Thermostat, 9’ smooth ceilings on the 1st floor, Pre-wire for electric vehicle charging, and whole house blinds.
GVL MLS # 1562360
Quick Facts
Time on Site
10 months ago
Property Type
Residential
Year Built
2024
Lot Size
7,840 sqft
Price/Sq.Ft.
$172
HOA Fees
$475/yr
Property Details
Schools
Features & Amenities
Features:
- High Ceilings
- Ceiling Fan(s)
- Ceiling Smooth
- Granite Counters
- Open Floorplan
- Walk-In Closet(s)
- Pantry
Location & Map
Map View
Loading map...
Additional Information
Community
- Common Areas
- Pool
Lot & Land
- 1/2 Acre or Less
Tax Information
Interior Details
- Carpet
- Ceramic Tile
- Vinyl
- Electric Oven
- Free-Standing Electric Range
- Microwave
- Electric Water Heater
- 1st Floor
- Walk-in
- Electric Dryer Hookup
- Washer Hookup
- High Ceilings
- Ceiling Fan(s)
- Ceiling Smooth
- Granite Counters
- Open Floorplan
- Walk-In Closet(s)
- Pantry
- Circulating
- Ventless
Parking & Garage
- Attached
- Paved
Exterior Features
- Composition
- Attached
- Paved
- Slab
- Patio
- Rear Porch
- Brick Veneer
- Concrete
- Vinyl Siding
H O A & Association
- Common Area Ins.
- Pool
- By-Laws
Property Overview
- One
- Ranch
- Craftsman
Utilities & Systems
- Public Sewer
- Electric
- Electric
- Heat Pump
- Underground Utilities
- Cable Available
- Public
Listing Agent Information
The information is being provided by Greater Greenville MLS. Information deemed reliable but not guaranteed. Information is provided for consumers' personal, non-commercial use, and may not be used for any purpose other than the identification of potential properties for purchase. Copyright 2025 Greater Greenville MLS. All Rights Reserved.
You Might Also Like...
Interested in selling in Sherwood Gardens?


