




$319,190
313 Talbert Trail
Landrum, SC 29356
About This Property
This Property Has Been Sold
This property sold 27 days ago and is no longer available for purchase.
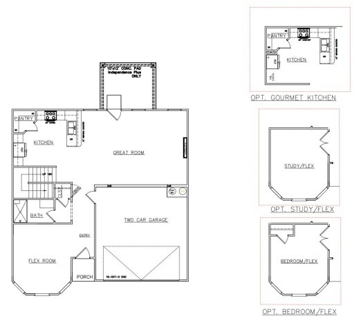
View active listings in Sherwood Gardens →UNDER CONSTRUCTION ** INCLUDED: James Hardi Fiber Cement front, vinyl sides and rear. Vinyl floors in foyer, extended foyer, kitchen, breakfast, and family room. Kitchen comes with recessed lighting pendent lights, 42” cabinets w/crown molding, Stainless Appliance Package with glass cooktop, garbage disposal & granite counters with single bowl sink.
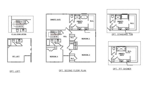
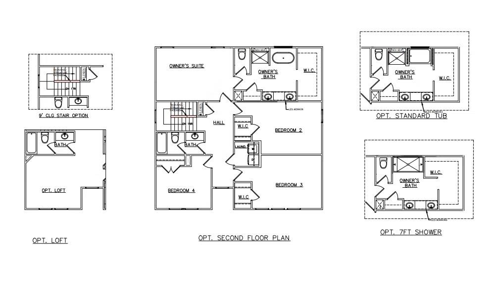
Master bath includes tiled shower, free standing tub, dual sinks w/adult height vanity, Bluetooth LED Mirrors, granite countertops and tiled floor. Other features include: covered porch, ceiling fan in family room and owner suite, prewires in all bedrooms; Smart Home Features - Panel, Front door lock & Thermostat, Pre-wire for electric vehicle charging, and whole house blinds.
SPN MLS # 333264
Quick Facts
Time on Site
2 months ago
Property Type
Residential
Year Built
2025
Lot Size
6,969 sqft
Price/Sq.Ft.
$139
Property Details
Schools
Features & Amenities
Features:
- Ceiling Fan(s)
- Attic Stairs Pulldown
- Fireplace
- Walk-In Closet(s)
- Ceiling - Smooth
- Split Bedroom Plan
- Walk-In Pantry
Location & Map
Map View
Loading map...
Additional Information
Basement
Community
- Playground
- Pool
Lot & Land
- Level
Primary Suite
- Bath - Full
- Double Vanity
- Shower-Separate
- Tub-Separate
- Walk-in Closet
Interior Details
- Carpet
- Ceramic Tile
- Vinyl
- Electric Cooktop
- Cooktop
- Dishwasher
- Microwave
- Double Oven
- Wall Oven
- 1st Floor
- Walk-In
- Ceiling Fan(s)
- Attic Stairs Pulldown
- Fireplace
- Walk-In Closet(s)
- Ceiling - Smooth
- Split Bedroom Plan
- Walk-In Pantry
New Construction
Parking & Garage
- Attached
- Driveway
- Garage
Additional Living
Exterior Features
- Composition
- Slab
- Covered Patio
H O A & Association
Property Overview
- Two
- Craftsman
Utilities & Systems
- Public Sewer
- Public
Listing Agent Information
You Might Also Like...
Interested in selling in Sherwood Gardens?


