




$874,900
12 Hideaway Hill Way
About This Property
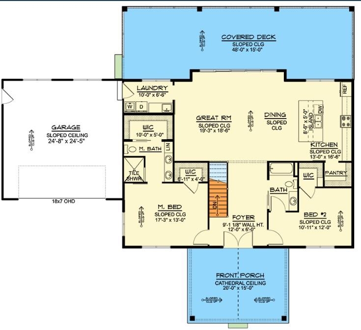
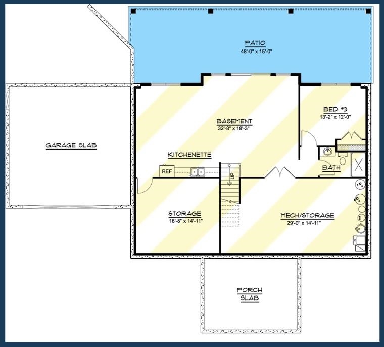
Rare opportunity to own 5.1 private acres in the sought-after Landrum area featuring a 3 bedroom, 3 bathroom modern mono-style home perfectly positioned to blend contemporary design with natural surroundings. This thoughtfully designed residence offers open-concept living, clean architectural lines, and a seamless connection to the outdoors.
Generous acreage provides privacy, space to explore, and endless possibilities for outdoor living or future enhancements. Located within a peaceful mountain community while still convenient to Landrum, Tryon, and scenic Upstate attractions. Ideal for a primary residence, mountain retreat, or investment property.
SPN MLS # 333231
Quick Facts
Time on Site
24 days ago
Property Type
Residential
Year Built
2026
Lot Size
22,215 sqft
Price/Sq.Ft.
$371
Property Details
Schools
Features & Amenities
Location & Map
Address
12 Hideaway Hill Way, Landrum, SC 29356
Community
Hidden Hills of Glassy Mountain
Map View
Loading map...
Additional Information
Basement
- Bathroom
- Partially Finished
- See Remarks
Security
- Smoke Detector(s)
Lot & Land
- Mountain View
- Wooded
Primary Suite
- Bath - Full
- Double Vanity
- Multiple Closets
- Other/See Remarks
- Owner on Main Level
- Shower-Separate
- Tub-Garden
- Walk-in Closet
Interior Details
- Luxury Vinyl
- Dishwasher
- Microwave
- See Remarks
- Built-In Range
- Range
- Refrigerator
- 1st Floor
- Walk-In
- Washer Hookup
- Walk-In Closet(s)
- Soaking Tub
- See Remarks
- Solid Surface Counters
- Open Floorplan
- Walk-In Pantry
Parking & Garage
- 2 Car Attached
Exterior Features
- Architectural
- Basement
- Garage
- Other/See Remarks
- See Remarks
- Basement
- Vinyl Siding
H O A & Association
Property Overview
- One
- See Remarks
Utilities & Systems
- Septic Tank
- Heat Pump
- Heat Pump
- Well
