




$429,999
4540 Dusty Orchard Road
Kannapolis, NC 28081
About This Property
This Property Has Been Sold
This property sold 1 year ago and is no longer available for purchase.
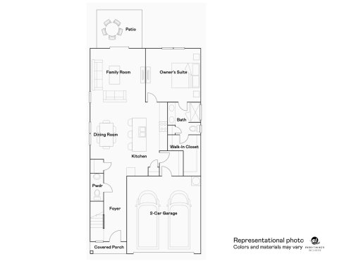
View active listings in Summerlyn Village →The Sweetbay floorplan provides space for the whole family to thrive. The first floor features an open design among the kitchen, breakfast nook and family room, which provides sliding-glass doors to the patio. The owner’s suite is tucked in a back corner of the home for maximum privacy.
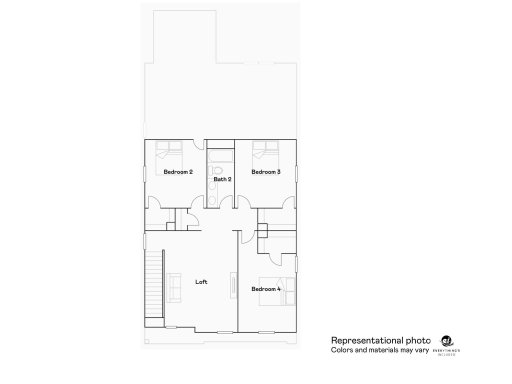
Upstairs are a versatile loft and three secondary bedrooms, which all have walk-in closets. Plus, our signature Everything's Included program means you will get quartz or granite kitchen countertops, subway tile backsplash, ceramic tile, and luxury vinyl plank flooring at no extra cost! Summerlyn Village is a master-planned community offering single-family homes and townhomes.
Future resort-style amenities include a clubhouse, swimming pool and winding trails. Just three miles away is downtown Kannapolis and within 12 miles of Charlotte and Concord for unique shopping, dining and entertainment options.
CAR MLS # 265145064
Quick Facts
Time on Site
1 year ago
Property Type
Residential
Year Built
2024
Price/Sq.Ft.
$195
Property Details
Schools
Features & Amenities
Features:
- Attic Stairs Pulldown
- Cable Prewire
- Entrance Foyer
- Open Floorplan
- Pantry
- Storage
- Walk-In Closet(s)
Location & Map
Map View
Loading map...
Additional Information
Utilities
- Public Sewer
- Cable Available
- Fiber Optics
- Gas
- City
Lot And Land
Agent Contacts
- Palmetto Park Realty Team Fort Mill: 803.548.6123
Interior Details
- Forced Air
- Natural Gas
- Zoned
- Carpet
- Vinyl
- Insulated Door(s)
- Electric Dryer Hookup
- Upper Level
- Washer Hookup
- Attic Stairs Pulldown
- Cable Prewire
- Entrance Foyer
- Open Floorplan
- Pantry
- Storage
- Walk-In Closet(s)
- Carbon Monoxide Detector(s)
Exterior Features
- Shingle
- Fiber Cement
- Stone Veneer
Parking And Garage
- Attached Garage
Financial Information
Basement And Foundation
- Slab
Zoning And Restrictions
Square Footage And Levels
- Two
Additional C A R Information
IDX information is provided exclusively for consumers' personal, non-commercial use only; it may not be used for any purpose other than to identify prospective properties consumers may be interested in purchasing. Data is deemed reliable but is not guaranteed accurate by the MLS GRID. Use of this site may be subject to an end user license agreement. Based on information submitted to the MLS GRID as of Thu, Mar 27, 2025. All data is obtained from various sources and may not have been verified by broker or MLS GRID. Supplied Open House Information is subject to change without notice. All information should be independently reviewed and verified for accuracy. Properties may or may not be listed by the office/agent presenting the information. Some IDX listings have been excluded from this website. Any use by you of search facilities of data on the site, other than by a consumer looking to purchase real estate, is prohibited. DMCA Notice: Palmetto Park Realty respects the intellectual property rights of others. If you believe that your work has been copied in a way that constitutes copyright infringement, please provide our designated agent with written notice containing the following information: (1) identification of the copyrighted work claimed to have been infringed; (2) identification of the material that is claimed to be infringing; (3) your contact information; (4) a statement that you have a good faith belief that use of the material is not authorized; and (5) a statement that the information in the notification is accurate and you are authorized to act on behalf of the copyright owner. Please send DMCA notices to: [email protected]
You Might Also Like...
Interested in selling in Summerlyn Village?