




$699,990
617 Du Bois Drive
Johns Island, SC 29455
About This Property
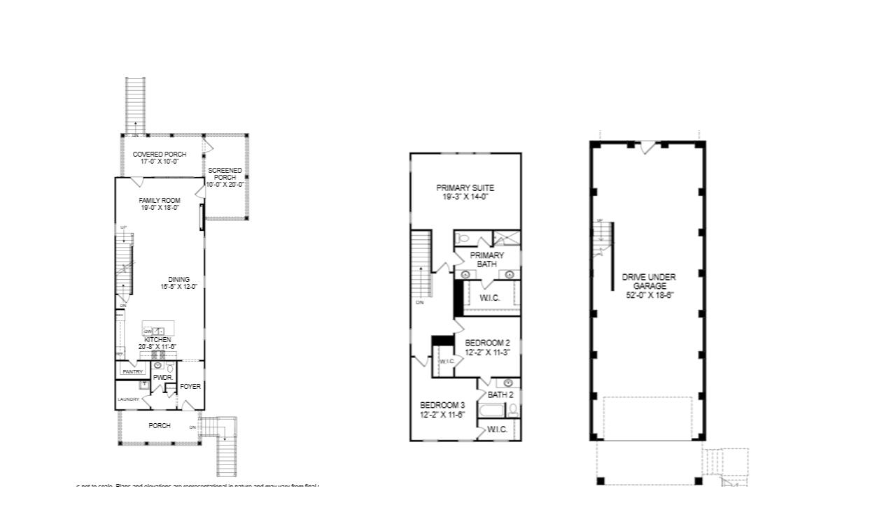
Welcome to 617 Du Bois Johns Island, SC 29455 at Indigo Grove. This brand new Stanley Martin home is on a gorgeous lot backing to woods with a large wrap around porch to take in the views! List price includes lot premium, all structural options and one of our ''Tailored'' design collections.
INCLUDED INSIDE: 10ft ceilings on main level, Fireplace, Gourmet gas kitchen, tile backsplash, Quartz counters in kitchen & baths, hard surface flooring throughout main living areas, tile floors in all baths, fully tiled Primary shower & wood treads on stairs. NO CARPET- hard surface flooring throughout! INCLUDED OUTSIDE: Wrap around Porch, ground level patio, Irrigation system, Gutters, and tankless water heater.
Indigo Grove offers modern living just 15 miles from beaches and minutes from downtown Charleston. Enjoy beautiful community amenities including: pool, covered pavilion, walking trails, and easy access to shopping and dining. Experience the charm of Johns Island, where a vibrant culinary scene, scenic parks, and lively community events create an inviting lifestyle.
Quick Facts
Time on Site
1 month ago
Property Type
Residential
Year Built
2026
Lot Size
6,534 sqft
Property Details
Schools
Features & Amenities
Location & Map
Map View
Loading map...
Additional Information
Lot And Land
Agent Contacts
Green Features
Community & H O A
Room Dimensions
Property Details
Exterior Features
Interior Features
Systems & Utilities
Financial Information
Additional Information
- IDX
- -80.030749
- 32.74766
- Raised


